
Pronájem bytu 3+1 • 88 m² bez realitkyRutesheimerstr. 12, , Bádensko-Württembersko
Rutesheimerstr. 12, , Bádensko-WürttemberskoMHD 3 minuty pěšky • Výtah • ParkováníNíže naleznete překlad textu označeného XML tagem do češtiny:
Diese lichtdurchflutete, moderne, hochenergieeffiziente 3-Zimmer-Neubauwohnung in der Rutesheimer Straße 12 (Erstbezug) bietet ein außergewöhnliches Wohngefühl: hochwertige Ausstattung, großzügige Raumaufteilung und eine ruhige Lage mit bester Anbindung und Infrastruktur.
Tento světlý, moderní a energeticky velmi účinný byt s 3 pokoji v novostavbě na adrese Rutesheimer Straße 12 (první obsazení) nabízí výjimečný pocit z bydlení: prvotřídní vybavení, prostorné uspořádání a klidnou lokalitu s vynikající dostupností a infrastrukturou.
Bezugsfertig und Vermietung ab 15.12.2025.
Připraven k nastěhování a k pronájmu od 15. prosince 2025.
Ausstattung – durchdacht & hochwertig
Vybavení – promyšlené a kvalitní
• QNG-zertifizierte KfW-40 Bauweise mit Wärmepumpe und Solaranlage – besonders energieeffizient und nachhaltig
• Konstrukce podle normy KfW-40 s certifikací QNG, vybavená tepelným čerpadlem a solárním systémem – mimořádně energeticky úsporná a udržitelná
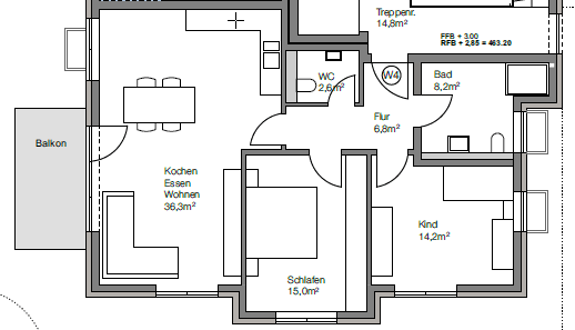
• Großzügiger Wohn-/Ess-/Kochbereich mit ca. 36,64 m² – offen, hell und ideal für moderne Wohnkonzepte
• Prostorný obývací/jídelní/kuchyňský prostor o přibližně 36,64 m² – otevřený, světlý a ideální pro moderní životní styl
• ca. 8 m² großer Südwest-Balkon (anteilig ca. 4 m²) – sonnig bis in den späten Abend
• Jihozápadně orientovaný balkón o rozloze cca 8 m² (z toho využitelných cca 4 m²) – slunný až do pozdního večera
• Hochwertige Nobilia Hochglanzküche (3,05 m × 3,05 m) mit Induktionsherd, Pyrolyse-Backofen, Kühl-/Gefrierkombi, Spülmaschine, Waschbecken & Dunstabzug
• Prémiová kuchyň od Nobilia s vysoce lesklým povrchem (3,05 m × 3,05 m) vybavená indukční deskou, pyrolytickou troubou, kombinací chladničky s mrazákem, myčkou, dřezem a digestoří
• Schlafzimmer mit ca. 15,03 m² und Kinder-/Arbeitszimmer mit ca. 14,17 m² – beide mit angenehmer Raumwirkung
• Ložnice o rozloze cca 15,03 m² a pokoj pro děti/pracovní místnost o rozloze cca 14,17 m² – oba s příjemnou atmosférou
• Tageslichtbad mit ca. 8,17 m² und separates Gäste-WC mit ca. 2,61 m² – stilvoll gefliest und hochwertig ausgestattet
• Koupelna s přirozeným denním světlem o rozloze cca 8,17 m² a samostatná toaleta pro hosty o rozloze cca 2,61 m² – elegantně obložená a vybavená na vysoké úrovni
• Diele mit ca. 6,78 m² – ideal für Garderobe und Stauraum
• Chodba o rozloze cca 6,78 m² – ideální pro umístění šatní skříně a úložného prostoru
• Südausrichtung und u.a. bodentiefe Fenster sorgen für außergewöhnlich helle Räume
• Jižní orientace a mimo jiné okna sahající až ke stropu zajišťují mimořádně světlé prostory
• Zweites Arbeits-/Kinder-/Schlafzimmer mit Fernblick ins Waldgebiet
• Druhý pokoj pro kancelář/děti nebo ložnici s výhledem do lesní oblasti
• Edles Eicheechtholzparkett mit Fußbodenheizung in allen Wohnräumen
• Luxusní parkety z masivního dubového dřeva s podlahovým vytápěním ve všech obytných místnostech
• Elektrische Rollläden, High-Speed Internetanschlussvorbereitung mit LAN in jedem Wohnraum
• Elektrická žaluzie, příprava na vysokorychlostní internetové připojení s LAN v každé místnosti
• Kellerraum (ca. 8,96 m²) mit Stromanschluss, Fahrradstellplätze, überdachter Carport (zzgl. 80 €/Monat)
• Suterénní úložný prostor o rozloze cca 8,96 m² s elektrickou přípojkou, úložištěm pro kola a zastřešeným parkovacím kobyla (příplatek 80 €/měsíc)
• Vermietung erfolgt unmöbliert (hochwertige Küche vorhanden)
• Pronájem probíhá bez nábytku (k dispozici je vysoce kvalitní kuchyň)
• Hinweis: Bilder sind teilweise KI-optimiert und dienen zur Illustration
• Poznámka: Obrázky jsou částečně optimalizovány pomocí umělé inteligence a slouží pouze jako ilustrace
----------------------------------------------------------------
This bright, modern, energy-efficient 3-room new-build apartment at Rutesheimer Straße 12 (first occupancy) offers an exceptional living experience: high-quality features, spacious layout, and a quiet location with excellent connectivity and infrastructure.
Světlý, moderní a energeticky efektivní byt s 3 pokoji v novostavbě na adrese Rutesheimer Straße 12 (první obsazení) nabízí výjimečný zážitek z bydlení: prvotřídní vybavení, prostorné uspořádání a klidnou lokalitu s vynikající dostupností a infrastrukturou.
Available and ready for rental from 15 December 2025.
K dispozici a připraven k pronájmu od 15. prosince 2025.
Features – Thoughtful & Premium
Vlastnosti – promyšlené a prémiové
• QNG-certified KfW-40 construction with heat pump and solar system – especially energy-efficient and sustainable
• Konstrukce dle normy KfW-40 s certifikací QNG, vybavená tepelným čerpadlem a solárním systémem – mimořádně energeticky úsporná a udržitelná
• Spacious living/dining/kitchen area of approx. 36.64 m² – open, bright, and ideal for modern living concepts
• Prostorný obývací/jídelní/kuchyňský prostor o přibližně 36,64 m² – otevřený, světlý a ideální pro moderní životní koncepty
• Approx. 8 m² southwest-facing balcony (approx. 4 m² allocated) – sunny until late evening
• Jihozápadně orientovaný balkón o cca 8 m² (z toho využitelných cca 4 m²) – slunný až do pozdního večera
• Premium Nobilia high-gloss kitchen (3.05 m × 3.05 m) with induction stove, pyrolysis oven, fridge-freezer, dishwasher, sink & extractor hood
• Prémiová lesklá kuchyň od Nobilia (3,05 m × 3,05 m) vybavená indukční deskou, pyrolytickou troubou, ledničkou s mrazákem, myčkou, dřezem a digestoří
• Bedroom (approx. 15.03 m²) and children’s/office room (approx. 14.17 m²) – both with a pleasant ambience
• Ložnice o rozloze cca 15,03 m² a pokoj pro děti/pracovní místnost o rozloze cca 14,17 m² – oba s příjemnou atmosférou
• Daylight bathroom (approx. 8.17 m²) and separate guest WC (approx. 2.61 m²) – stylishly tiled and fitted to a high standard
• Koupelna propojená s denním světlem o rozloze cca 8,17 m² a samostatná toaleta pro hosty o rozloze cca 2,61 m² – stylově obložená a vybavená na vysoké úrovni
• Hallway (approx. 6.78 m²) – ideal for wardrobe and storage
• Chodba o rozloze cca 6,78 m² – ideální pro šatník a úložné prostory
• South-facing with floor-to-ceiling windows ensures exceptionally bright rooms
• Jižní orientace s okny sahajícími až ke stropu zajišťuje výjimečně světlé místnosti
• Second office/children’s/bedroom with distant views over the woodland area
• Druhý pokoj určený jako kancelář, dětský pokoj nebo ložnice s výhledem do lesní krajiny
• Fine real oak parquet flooring with underfloor heating in all living areas
• Kvalitní skutečné dubové parkety s podlahovým vytápěním ve všech obytných prostorech
• Electric blinds, high-speed internet connection ready with LAN in each living room
• Elektrické žaluzie, příprava na vysokorychlostní internetové připojení s LAN v každé místnosti
• Basement storage room (approx. 8.96 m²) with power outlet, bicycle storage, covered carport (additional €80/month)
• Úložný prostor v suterénu o rozloze cca 8,96 m² s elektrickou zásuvkou, úložným prostorem pro kola a zastřešeným parkovacím prostorem (příplatek 80 €/měsíc)
• Rental is unfurnished (high-quality kitchen included)
• Pronájem probíhá bez nábytku (k dispozici je vysoce kvalitní kuchyň)
• Note: Pictures are partially AI-optimized and for illustration purposes only
• Poznámka: Obrázky jsou částečně optimalizovány pomocí umělé inteligence a slouží pouze k ilustraci
----------------------------------------------------------------
Ruhig, grün & sehr gut angebunden
Klidná, zelená a velmi dobře dostupná lokalita
• Ruhige Wohngegend mit überwiegend Einfamilienhäusern
• Klidná obytná čtvrť převážně s rodinnými domy
• Bushaltestelle: ca. 2 Min zu Fuß
• Zastávka autobusu: cca 2 minuty pěšky
• S-Bahn Sindelfingen: ca. 1,5 km – 6 Min mit dem Rad
• S-Bahn Sindelfingen: cca 1,5 km – 6 minut na kole
• Innenstadt: ca. 1 km – 15 Min zu Fuß
• Centrum města: cca 1 km – 15 minut pěšky
• REWE, Lidl, dm in der Nähe
• Obchody REWE, Lidl, dm v blízkosti
• Naherholung: Dronfieldpark & Sommerhofenpark
• Možnosti rekreace: parky Dronfieldpark a Sommerhofenpark
• Arbeitgeber: Mercedes-Benz Tor 3 (1,5 km), Bosch, IBM
• Hlavní zaměstnavatelé: Mercedes-Benz Gate 3 (1,5 km), Bosch, IBM
• Diverse Schulen sehr nahe ca. 8 Min zu Fuß
• Řada škol je velmi blízko, cca 8 minut pěšky
• Kinderspielplatz: ca. 400 Meter
• Dětské hřiště: cca 400 metrů
• sehr gut angebunden
• Velmi dobře dostupné
----------------------------------------------------------------
Quiet, green & superbly connected
Klidná, zelená a výjimečně dobře napojená
• Quiet residential area with mostly detached houses
• Klidná obytná oblast převážně s rodinnými domy
• Bus stop: approx. 2 min walk
• Zastávka autobusu: cca 2 minuty chůze
• Sindelfingen S-Bahn: approx. 1.5 km – 6 min by bike
• S-Bahn Sindelfingen: cca 1,5 km – 6 minut na kole
• City center: approx. 1 km – 15 min walk
• Centrum města: cca 1 km – 15 minut chůze
• REWE, Lidl, dm nearby
• V blízkosti najdete obchody REWE, Lidl, dm
• Recreation areas: Dronfieldpark & Sommerhofenpark
• Rekreační oblasti: parky Dronfieldpark a Sommerhofenpark
• Nearby employers: Mercedes-Benz Gate 3 (1.5 km), Bosch, IBM
• V okolí sídlí zaměstnavatelé jako Mercedes-Benz Gate 3 (1,5 km), Bosch, IBM
• Various schools very close by, approx. 8 min walk
• Řada škol se nachází velmi blízko, cca 8 minut chůze
• Playground: approx. 400 meters
• Dětské hřiště: cca 400 metrů
• Very well connected
• Velmi dobře dostupné
----------------------------------------------------------------
Eicheechtholzparkett, Fußbodenheizung, hochwertige große Badfliesen, 3-fach verglaste Fenster teilweise bodentief, großer Balkon, Carport (zzgl. €80)
Dubové parkety ze skutečného masivního dřeva, podlahové vytápění, prémiové velkoformátové koupelnové obklady, částečně až ke stropu trojitě zasklená okna, velký balkón, carport (příplatek €80)
----------------------------------------------------------------
• Oak real wood parquet, underfloor heating, premium large-format bathroom tiles
• Skutečné dubové parkety, podlahové vytápění, prémiové velkoformátové dlaždice do koupelny
• Triple-glazed windows, partly floor-to-ceiling
• Trojitě zasklená okna, částečně až ke stropu
• Large balcony, carport (add. €80/month)
• Velký balkón, carport (příplatek €80/měsíc)
----------------------------------------------------------------
Erstbezug – ideal für Singles, Paare oder kleine Familien, die Wert auf Qualität, Komfort und ein gepflegtes Wohnumfeld legen.
První obsazení – ideální pro jednotlivce, páry nebo malé rodiny, které si cení kvality, komfortu a udržovaného bydlení.
V okolí nemovitosti najdete
Stále hledáte to pravé?
Nastavte si hlídacího psa. Nabídky vybrané na míru dostanete souhrnně 1× denně e-mailem. S Premium profilem máte k ruce hlídačů rovnou 5 a když se něco objeví, informují vás obratem.
















