
Prodej domu 6+1 • 179 m² bez realitky, Dolní Sasko
, Dolní SaskoMHD 4 minuty pěšky • Parkování • GarážPopis objektu
V rodinně přátelské lokalitě Syke-Barrien se v jedné uličce představuje tento půvabný rodinný dům jako ideální domov pro rodiny, které chtějí propojit prostorné bydlení s atraktivní lokalitou.
Dům postavený v roce 1977 zaujme svým udržovaným celkovým stavem a nedávnou renovací v roce 2024, která umožňuje rychlé nastěhování.
S obytnou plochou přibližně 179 m², rozloženou na dvou podlažích, nabízí dům šest prostorně řešených místností, které lze různě využít – například jako ložnice, dětské pokoje či pracovnu. Dvě moderně vybavené koupelny se sprchou a vanou poskytují komfort a funkčnost pro každodenní rodinný život.
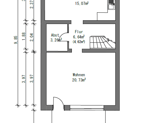
V přízemí vstoupíte do domu a ocitnete se v prostorné hale, odkud vedou schodiště do půdního podlaží a sklepa.
Na této úrovni se nachází kuchyň, koupelna, ložnice, obývací pokoj a jídelna, z nichž všechny mají velké okenní fasády s výhledem do zahrady. Před domem se nachází terasa v celé šíři domu.
Zvláštním lákadlem je světlá půda: Prostorná okna a střešní okna Velux vytvářejí světlou a přívětivou atmosféru – ideální pro využití jako samostatný byt, ateliér, hostinský pokoj nebo útočiště pro kreativní koníčky.
Velkorysý pozemek o rozloze přibližně 1 000 m² zve ke klidnému posezení, hraní a úpravě dle vlastních představ. Udržovaná travnatá plocha nabízí četné možnosti individuální úpravy zahrady. Slunečná terasa láká k odpočinku a společným chvilkám s rodinou a přáteli.
Atraktivní celek doplňuje plně využitelný suterén, který poskytuje další úložný prostor, dále garáž, dílna s topením a silnou elektřinou a venkovní parkovací místo pro pohodlné parkování.
________________________________________
Vybavení – Vaše výhody na první pohled
• Atraktivní lokalita v oblíbené části Syke-Barrien – ideální pro vlastníky i investory
• Velkorysý pozemek s cca 1 000 m² zahradní plochou a několika slunečnými terasami a balkonem
• Udržovaný stav – poslední renovace v roce 2024
• Flexibilní využití: samostatný byt, ateliér, hostinský nebo hobby prostor
• Plně využitelný suterén s dodatečným úložným prostorem
• Garáž a venkovní parkovací místo pro pohodlné parkování
• Ústřední topení (plyn) – zdroj tepla obnoven v roce 2024
Popis lokality
Nemovitost se nachází v oblíbené a rodinně přátelské ulici Nelkenstraße v městské části Barrien města Syke. Obytná čtvrť se vyznačuje klidným a udržovaným sousedstvím převážně rodinných domů a hojnou zelení.
Infrastruktura a vzdělání:
Barrien disponuje výbornou infrastrukturou. V bezprostřední blízkosti se nacházejí tři jesle a základní škola Barrien, kterou lze dojít pěšky. Nadstavbové školy, včetně hlavní a reálné školy Syke a gymnázia Syke, jsou vzdáleny jen několik minut autem a jsou rovněž snadno dostupné na kole nebo školním autobuse či linkovém autobuse.
Volný čas a sport:
Nabídka aktivit ve volném čase v Barrien a ve městě Syke je různorodá. Řada sportovních klubů nabízí aktivity jako fotbal, tenis, tělocvik, jízdu na koni a atletiku. Zvláště oblíbený je TSV Barrien, který svou širokou nabídkou osloví všechny věkové kategorie. Okolní příroda s lukami, poli a malými lesy láká k procházkám, běhání či cyklistickým výletům.
Dopravní spojení a nákupní možnosti:
Barrien má vlastní nádraží s napojením na regionální trať Bremen–Osnabrück, díky čemuž lze dosáhnout Bremenu přibližně za 20 minut. Navíc je zde dobré spojení s Bundesstraße 6, která propojuje Syke s centrem Bremenu i s Nienburgem. Nákupy pro každodenní potřeby, lékaři, lékárny a restaurace jsou v bezprostřední blízkosti a většinou snadno dostupné pěšky nebo na kole.
Závěr:
Ulice Nelkenstraße v Syke-Barrien nabízí ideální kombinaci atraktivního bydlení v zeleném prostředí a výborné infrastruktury – perfektní pro rodiny, dojíždějící pracovníky i milovníky přírody.
Vybavení – Vaše výhody na první pohled
• Atraktivní lokalita v oblíbené části Syke-Barrien – ideální pro vlastníky i investory
• Velkorysý pozemek s cca 1 000 m² zahradní plochou a několika slunečnými terasami a balkonem
• Udržovaný stav – poslední renovace v roce 2024
• Flexibilní využití: samostatný byt, ateliér, hostinský nebo hobby prostor
• Plně využitelný suterén s dodatečným úložným prostorem
• Garáž a venkovní parkovací místo pro pohodlné parkování
• Ústřední topení (plyn) – zdroj tepla obnoven v roce 2024
V okolí nemovitosti najdete
Stále hledáte to pravé?
Nastavte si hlídacího psa. Nabídky vybrané na míru dostanete souhrnně 1× denně e-mailem. S Premium profilem máte k ruce hlídačů rovnou 5 a když se něco objeví, informují vás obratem.






























