
Prodej domu 6+1 • 125 m² bez realitkyBremen Obervieland Bremen 28277
Už při vstupu do tohoto modernizovaného řadového domu ihned pocítíte úspěšné spojení moderního komfortu bydlení a útulné atmosféry. Upravená předzahrádka a četné parkovací možnosti přímo u dveří vás srdečně vítají – ideální pro každodenní život s rodinou nebo prací.
Uvnitř dům zaujme otevřeným půdorysem, vysoce kvalitními materiály a kompletní renovací v roce 2023. Světlý obývací a jídelní kout je srdcem domu. Velké okno a terasová vrata vedoucí na slunnou jižní terasu vytvářejí přívětivou atmosféru. Pečlivě zrekonstruovaná zahrada zve k odpočinku – ať už u snídaně, při grilování nebo jako místo pro relaxaci po náročném dni.
Je třeba vyzdvihnout vzácné soukromí v zadní, chráněné zahradě – opravdové plus u řadového domu.
Vestavěná kuchyně byla vyrobena na míru a vybavena spotřebiči značky Neff, mezi něž patří velká indukční varná deska a trouba se Slide&Hide-dvířky ve výšce pracovní plochy.
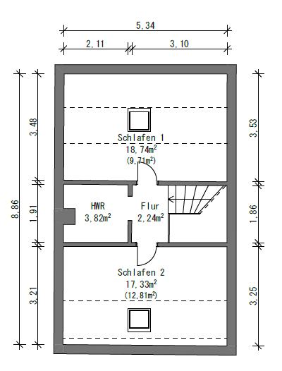
V horním patře vás čeká několik flexibilně využitelných místností – jako ložnice, pracovna nebo pokoj pro hosty. Elektrické rolety ve všech místnostech a kvalitní koberce z dlaždic napříčině zajišťují komfort a útulnost.
Půda byla rovněž kompletně připravena: elektroinstalace a podlahové vytápění jsou zrekonstruovány – zbývá pouze finální úprava podlahy a zdí.
Zahrada s orientací na jih, zahradní domek a přímý přístup do garáže poskytují ty nejlepší podmínky. Kabel vedený domem umožní pozdější připojení wallboxu v garáži. Byly rovněž provedeny úpravy pro instalaci fotovoltaické elektrárny, takže ji lze bez problémů dodatečně zařídit.
Promyšlené bydlení s moderní technikou, s dostatkem prostoru a vysokou kvalitou života.
Tento dům se nachází v klidné a zelené lokalitě v oblíbené čtvrti Kattenesch, která je součástí Obervielandu – nalevo od Weseru. Ulice je klidová a rodinám přátelská. Mateřská škola, základní a střední školy i velké hřiště s prvky dobrodružství jsou v bezprostřední blízkosti – dosažitelné pěšky během několika minut.
Dopravní dostupnost je ideální: do centra Bremenu se dostanete autobusem nebo vlakem za cca 20 minut. Dálnice A1 (východisko Bremen-Brinkum) je dosažitelná během několika minut – ideální pro pendlery směřující do Hamburku nebo Osnabrücku.
V oblasti volného času nabízí nedaleká řeka Ochtum se svými potoky četné trasy pro jogging a procházky přímo za dveřmi. Ani jezero Werdersee a Weser nejsou daleko – ideální útočiště pro milovníky přírody. Rozlehlý veřejný park s procházkovými trasami se nachází jen pár metrů od domu a dále zvyšuje hodnotu lokální rekreace.
Sportovní kluby jako TuS Komet Arsten nebo ATSV Habenhausen nabízejí širokou škálu aktivit pro všechny věkové kategorie.
Možnosti nákupu jsou velmi rozmanité: v krátké vzdálenosti naleznete obchody jako Rewe, Marktkauf, Penny, Aldi, Lidl a také týdenní trh. Pro rozsáhlejší nákupní zájezdy je Ochtum Park Outlet-Center s více než 50 značkami, stejně jako IKEA a Toom Baumarkt, dosaženo během několika minut jízdy.
Nastěhujte se, cítíte se dobře a žijte moderně – tento dům je dokonalým domovem pro rodiny, páry nebo kohokoli, kdo si přeje spojit moderní komfort bydlení s klidnou lokalitou.
Obecné:
+ Podlahové vytápění ve všech třech podlažích
+ Vysoce kvalitní vinylová podlaha v přízemí
+ Kvalitní koberce z dlaždic (Interface) v patře
Kuchyně a koupelny:
+ Vestavěná kuchyň vyrobená na míru (2023) s:
+ Spotřebiči značky Neff (velká indukční varná deska, trouba, myčka)
+ Kvalitní koupelny s:
+ Regénovací sprchou
+ Keramickými dlaždicemi (120x60 cm)
+ Vyměněné vodovodní a kanalizační potrubí (2023)
Technika a elektroinstalace:
+ Elektroinstalace revidována (2023):
+ Více než 120 zásuvek po celém domě
+ Každý obytný prostor vybaven 4 LAN porty
+ Síťový rozvaděč s UniFi Dream Machine SE
+ WLAN zajištěno přes UniFi Access Point (perfektní připojení v celém domě i zahradě)
+ Smart Home systém pro řízení osvětlení, rolet a mnoha dalších funkcí
+ Automatizace, jako je otevírání a zavírání rolet při východu slunce nebo při návratu domů, je umožněna pomocí smart-home systému
+ Kabel vedený domem je připraven pro budoucí instalaci wallboxu v garáži
+ Příprava pro fotovoltaickou elektrárnu
+ Optické připojení k internetu (fiber)
Okna a dveře:
+ Okna: postupně renovována až do roku 2019
+ Elektrické rolety v celém přízemí a horním patře
Venkovní prostory:
+ Slunná zahrada s orientací na jih
+ Zahradní domek se zrekonstruovanou střechou
+ Garáž se zrekonstruovanou střechou a přímým přístupem do zahrady
+ Předzahrádka, četná parkovací místa v přímém okolí domu
+ Zahrada se na zadní straně nedotýká další řady řadových domů, což zajišťuje výrazně vyšší úroveň soukromí
Speciální vlastnosti:
+ Integrace smart home pro osvětlení a rolety s automatizacemi (např. při východu/západu slunce, detekce nepřítomnosti)
+ Podlahové vytápění ve všech patrech
+ Půda s technickou přípravou dvou místností – zbývá pouze podlahová úprava a úprava zdí
+ Velmi vysoký standard vybavení díky kompletní renovaci v roce 2023
+ Budoucnost zajištěna: síťové kabeláže, příprava pro fotovoltaiku, kabel pro wallbox již veden
V okolí nemovitosti najdete
Stále hledáte to pravé?
Nastavte si hlídacího psa. Nabídky vybrané na míru dostanete souhrnně 1× denně e-mailem. S Premium profilem máte k ruce hlídačů rovnou 5 a když se něco objeví, informují vás obratem.























