
Pronájem bytu 1+kk • 27 m² bez realitkyMíšovická, Praha - Zličín
Máte o nabídku zájem?
Ušetřete 15 000 Kč na provizi a komunikujte se všemi majiteli.
Nabízím k pronájmu byt 1+kk, nacházející se v budově o sedmi podlažích. Byt je situován v přízemí, což zaručuje snadnou dostupnost díky výtahu a bezbariérovému přístupu. Nemovitost je ve velmi dobrém stavu a částečně vybavená, což umožňuje rychlé nastěhování bez zbytečných starostí.
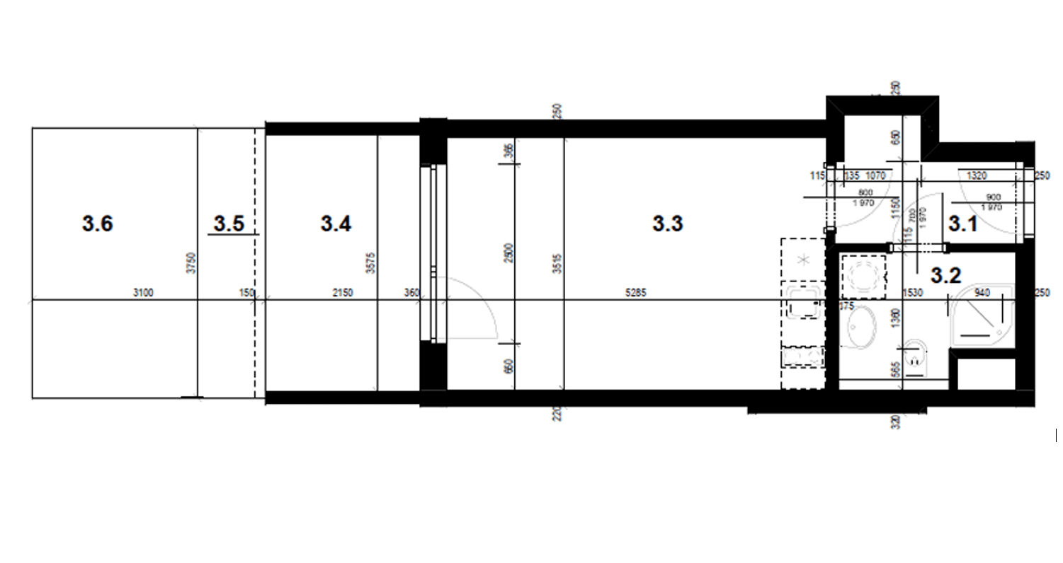
Byt o rozloze 27 m² nabízí pestrobarevný a funkční prostor vhodný pro jednotlivce či pár, kteří hledají komfort a klidné bydlení. Součástí bytu je také terasa o rozloze 8 m² a předzahrádka o rozloze 12 m², ideální k odpočinku na čerstvém vzduchu, a rovněž praktický sklep o rozloze 4 m², který poskytuje další úložné prostory.
V případě zájmu o tuto nemovitost mne můžete kontaktovat přes zprávy na komunikační platformě. Rád Vám poskytnu další informace a domluvím prohlídku této atraktivní nabídky.
I am offering a 1+kk apartment for rent, located in a seven-story building. The apartment is situated on the ground floor, ensuring easy access thanks to the elevator and barrier-free entry. The property is in very good condition and partially furnished, which allows for a quick move-in without unnecessary hassle.
The 27 m² apartment offers a vibrant and functional space suitable for an individual or a couple seeking comfortable and peaceful living. The apartment also includes an 8 m² terrace and a 12 m² front garden, ideal for outdoor relaxation, as well as a practical 4 m² cellar that provides additional storage space.
If you are interested in this property, you can contact me through messages on the communication platform. I will be happy to provide you with further information and arrange a viewing of this attractive offer.
Parametry nemovitosti
| Dostupné od | 31. 10. 2025 |
|---|---|
| Konstrukce budovy | Cihla |
| Vybaveno | Částečně |
| Číslo inzerátu | 959898 |
| Užitná plocha | 27 m² |
| Stav | Velmi dobrý |
|---|---|
| Dispozice | 1+kk |
| Podlaží | 1. podlaží z 7 |
| Umístění | Klidná část |
| Cena za jednotku | 556 Kč / m2 |
Co tato nemovitost nabízí?
| Bezbariérový přístup | |
| Předzahrádka 12 m² | |
| Výtah | |
| Terasa 8 m² |
| Sklep 4 m² | |
| Parkování |
V okolí nemovitosti najdete
Máte o nabídku zájem?
Ušetřete 15 000 Kč na provizi a komunikujte se všemi majiteli.
Stále hledáte to pravé?
Nastavte si hlídacího psa. Nabídky vybrané na míru dostanete souhrnně 1× denně e-mailem. S Premium profilem máte k ruce hlídačů rovnou 5 a když se něco objeví, informují vás obratem.














