
Pronájem bytu 2+1 • 50 m² bez realitkyLassallestraße 8, , Sasko
Lassallestraße 8, , SaskoMHD 3 minuty pěšky • VybavenoPerfektní pro 1–2 osoby.
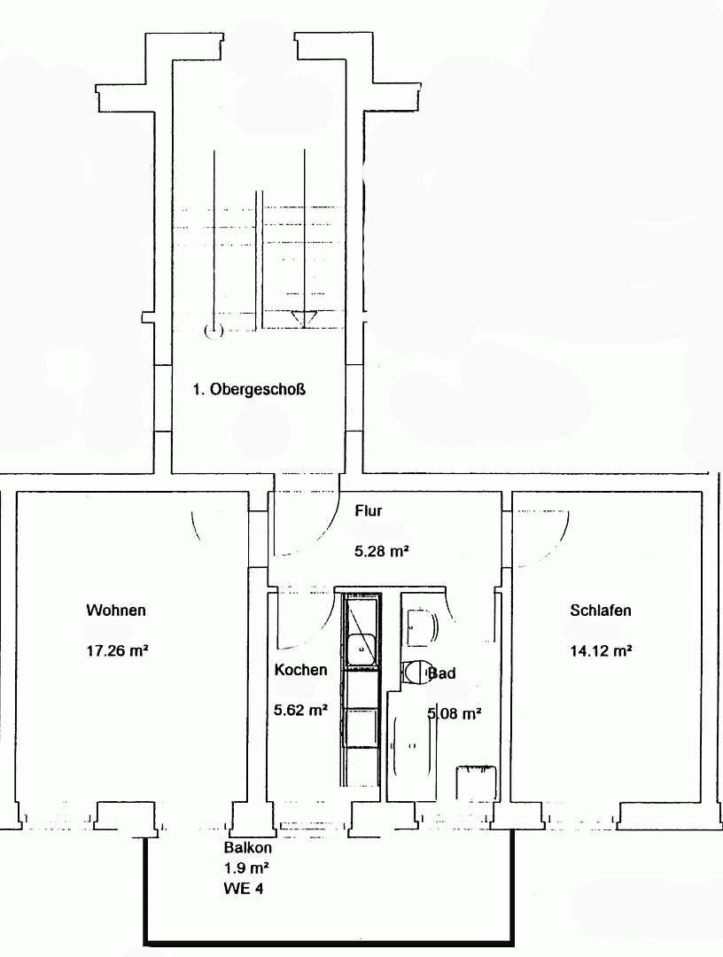
Tento dvoupokojový byt se nachází v zrekonstruované budově, která je zapsána jako památka, v klidné části severní části města. V bytě je moderní vestavěná kuchyň se všemi spotřebiči. Z kuchyně i obývacího pokoje vede vstup na krásný balkon. Byt je vybaven vysoce kvalitním, kompletním vybavením. Koupelna byla nedávno kompletně zrekonstruována (všechno je úplně nové) a je vybavena vanou, toaletou a pračkou.
Podlahové krytiny v bytě jsou laminátové a v kuchyňském prostoru je dlažba.
Náklady:
Byt je k dispozici od 01.12.2025 a pronajímá se na dobu neurčitou kompletně zařízený.
Paušální nájemné včetně kompletního vybavení: 800 €/měsíc.
Provozní náklady: 200 €/měsíc (paušálně nebo jako záloha na služby)
Internet/TV: 50,00 €/měsíc.
Celkové nájemné: 1 050 €/měsíc.
Vybavení je naprosto kompletní.
Prohlídka bytu je možná po předchozí domluvě.
Byt se nachází v klidné obytné čtvrti s historickými budovami. Dopravní spojení MHD je velmi dobré.
Parkovací místa jsou k dispozici přímo ulice. Jen pár minut chůze od bytu najdete malé parky (Schlobigpark), Johannisbad a promenádu u řeky Mulde s cyklostezkou.
Laminátová podlaha, balkon, sklep,
vestavěná kuchyň s myčkou, kompletní vybavení/zařízení (dodatečný seznam vybavení je k dispozici na vyžádání).
Před pronájmem je třeba předložit:
- Přehled o sobě (selbstauskunft)
- Kopii občanského průkazu
- Potvrzení o bezdlužnosti nájemného
- Úvěrovou způsobilost (u soukromých osob)
- Doklady o příjmu
V okolí nemovitosti najdete
Stále hledáte to pravé?
Nastavte si hlídacího psa. Nabídky vybrané na míru dostanete souhrnně 1× denně e-mailem. S Premium profilem máte k ruce hlídačů rovnou 5 a když se něco objeví, informují vás obratem.


















