
Prodej bytu 3+1 • 79 m² bez realitky, Hessen
Byt se nachází ve 2. patře velmi upraveného domu se 8 byty, v blízkosti radnice, ale v klidné okrajové lokalitě. Ihned vedle Ahneparku.
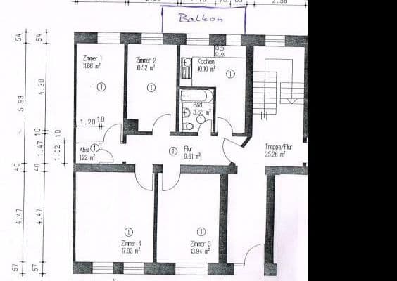
Vstoupíte do bytu a ocitnete se v chodbě s lamelovou podlahou. Po levé straně se nachází kuchyně včetně vestavěné kuchyňské linky, bez elektrospotřebičů. Dále vlevo za rohem pokračuje dětský/hostinský pokoj nebo kancelář. Vedle něj je WC se sprchou. Po pravé straně za rohem je koupelna s vanou a ložnice s oknem vedoucím na balkon. Vrchol bytu představuje velký obývací/jídelní pokoj s parketovou podlahou, balkonem a velkou prosklenou fasádou, který se nachází naproti kuchyni, vpravo po vstupu. Je velmi světlý díky západní orientaci. Balkon s velkou vysouvací markýzou zve k odpočinku a užívání slunce. Nabízí výhled do přírody a za pěkného počasí až k Herkulovi.
Všechna okna mají ručně ovládané rolety.
Ve všech obytných pokojích a ložnicích je parketová podlaha.
Koupelna se sprchou a WC je moderně a světlým dlažebním obkladem. Koupelna s vanou je nová a tmavým obkladem. V ní je také připojení pro druhé WC, které může být opět aktivováno.
K bytu náleží sklep. Dále je zde sklep na kola a zvláštní prostor pro praní a sušení.
Minulý rok byla instalována nová plynová topení, čímž se výrazně sníží energetická náročnost! Aktuální energetický štítek tedy zatím nelze předložit, bude však výrazně lepší!
Domovní řád, zimní údržba a péče o zahradu jsou zajišťovány dodavatelem a jsou již zahrnuty v poplatcích.
Většinu bytů obývají majitelé. Na každém patře se nacházejí 2 byty.
Byt se nachází v centrální části Vellmaru. Ihned v blízkosti radničního náměstí se všemi možnostmi nákupů a lékaři. V sobotu se koná tržnice. V docházkové vzdálenosti je také základní škola, TRAM a sportoviště (5 minut), krytý bazén je 10 minut chůze. Ahnepark je též přímo před dveřmi a v docházkové vzdálenosti. Malé dětské hřiště je vzdáleno jen 50 metrů a je z bytu dohlednutelné.
Vjezd na silnici Bundesstraße B27/B3 je vzdálen pouhých 1 km.
- Upravené vybavení
- Vestavěná kuchyňská linka
- Střecha zrekonstruována (2013)
- Fasáda natřena
- Okna v schodišti obnovena (2015)
- Nové topení (od roku 2024)
- Koupelna nově obložena (2025)
- Byt ihned k nastěhování
- Nepronajato
- Dům velmi udržovaný
- Energetický štítek vyhotovený pro staré topení
Pro prohlídku je nutné přinést následující doklady:
- platný průkaz totožnosti
- kupní sebeuvědomění (bude zasláno po navázání kontaktu).
Bez těchto dokladů není možná žádná prohlídka.
V okolí nemovitosti najdete
Stále hledáte to pravé?
Nastavte si hlídacího psa. Nabídky vybrané na míru dostanete souhrnně 1× denně e-mailem. S Premium profilem máte k ruce hlídačů rovnou 5 a když se něco objeví, informují vás obratem.


































