
Pronájem bytu 2+kk • 52 m² bez realitkyČakovická, Praha - Prosek
Máte o nabídku zájem?
Ušetřete 22 200 Kč na provizi a komunikujte se všemi majiteli.
SLUNNÝ BYT S VÝHLEDEM DO ZELENĚ A NADSTANDARDNÍ TERASOU V BLÍZKOSTI METRA C
K dlouhodobému pronájmu nabízíme slunný byt 2+kk o celkové ploše 52,8 m², který se nachází v právě zkolaudaované novostavbě s výtahem. Dům se nachází jen několik minut chůze od metra C, díky kterému jste během chvíle v centru Prahy. Přímo před domem je také zastávka autobusu. V blízkosti se nachází veškerá občanská vybavenost, včetně obchodů (LIDL, Billa, DM drogerie), restaurací a kaváren. Okolí vybízí i k příjemným procházkám v Sadech na Klíčově nebo kolem proseckých skal.
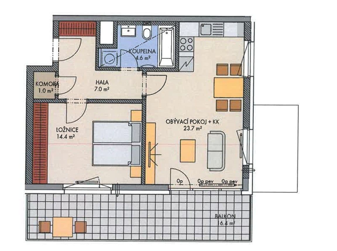
Dispozice bytu se skládá z prostorné předsíně, ze které se vstupuje do praktické komory, ložnice, koupelny s vanou a obývací části s kuchyňským koutem.
Součástí nové kuchyňské linky je vestavěná lednice, horkovzdušná trouba, indukční deska, digestoř a myčka. Byt je kompletně osazen úsporným osvětlením, kdy v koupelně i chodbě je možnost regulace barvy osvětlení (pozn. na bytě ještě probíhají poslední dodělávky, proto prosím berte fotografie s rezervou :) ).
Výjimečnost bytu podtrhuje prostorná terasa o rozloze 16,5 m² orientovaná na západní stranu, která nabízí možnost relaxace a posezení s výhledy na západ slunce.
Poplatky související s užíváním bytu jsou zúčtovatelné; na nájemce bude převedena elektřina.
Byt je vhodný pro jednotlivce či pár.
Pokud Vás nabídka zaujala, rádi Vás přivítáme na prohlídce. Prosím doplňte několik slov o sobě. Budeme se těšit.
V okolí nemovitosti najdete
Máte o nabídku zájem?
Ušetřete 22 200 Kč na provizi a komunikujte se všemi majiteli.
Stále hledáte to pravé?
Nastavte si hlídacího psa. Nabídky vybrané na míru dostanete souhrnně 1× denně e-mailem. S Premium profilem máte k ruce hlídačů rovnou 5 a když se něco objeví, informují vás obratem.















