
Prodej domu • 335 m² bez realitkyVinkratherstr. 22, , Severní Porýní-Vestfálsko
Vinkratherstr. 22, , Severní Porýní-VestfálskoMHD 2 minuty pěšky • ParkováníNíže naleznete překlad textu označeného XML tagem do češtiny:
Stylový obytný komplex přímo v srdci Grefrathu s výnosem.
Druh objektu: Výnosový objekt
Typ objektu: Vícebytový dům
Účel využití: Bydlení
Obytná plocha: cca 335 m²
Užitná plocha: cca 48 m² Pozemek: 359 m²
Pronajímatelná plocha: 335 m²
Počet pokojů: 12
Počet ložnic: 6
Počet koupelen: 6
Počet samostatných WC: 1
Patra: 2,5
Žaluzie: Ano
Druh vytápění: Ústřední topení
Palivo: Plyn
Koupelna: Bidet, okno, rohová sprcha, rohová vana, parní sauna
Hostinské WC: Ano (byt 4,5)
Podlahové krytiny: Laminát, přírodní kámen, dlaždice
Balkon: Ano
Terasa: Ano Krb: Ano
Kuchyň: Otevřená kuchyně
Kabelová/satelitní TV: Ano
Rok výstavby: 2006
Stav: Udržovaný
Energetický štítek: Spotřební štítek
Konečná energetická potřeba: 109 kWh/(m²·rok)
Energetický štítek platný do: 10.10.2027
Rok výstavby dle energetického štítku: 2017
Primární energetický zdroj: Plyn
Kupní cena: 799.000,00 €
Roční čistý nájem (aktuálně): 39.700,00 €
Roční čistý nájem (cílový): 40.900,00 €
Provize kupujícího: Bez provize
Popis
Mladý obytný komplex v historickém hávu – kompletně nově vybudován a vybaven dle moderních požadavků v roce 2006 v rámci rozsáhlého přestavby a novostavby podle KfW standardu.
Jedná se o velmi individuální soubor pěti bytových jednotek, z toho tři maisonetové byty.
Vnitřní dvůr vyzařuje středomořský půvab a vybízí ke konverzaci se sousedy.
Hlavní budova byla kompletně demontována a znovu postavena v období 2004 až 2006 – sklep i schodiště byly nové odlité a postavené, a přístavba s bočním křídlem byly rovněž nově postaveny.
K dispozici je potvrzení o samostatném právním postavení (Abgeschlossenheitsbescheinigung).
K čtyřem bytovým jednotkám (byty 1 až 4) náleží samostatná skladovací místnost ve sklepě. K dispozici je také společná prádelna se sušárnou pro všechny strany.
Byty v bočním křídle (byt 4) a v přístavbě (byt 5) mají samostatné vchody, přičemž jejich terasy jsou situovány v dvoře. Obě byty rozprostřené ve dvou patrech mají charakter řadových domů.
Terasu za hlavní budovou využívá nájemník v přízemí.
Optimální dispozice a moderní, částečně luxusní vybavení bytů zaručují jejich snadnou pronajímatelnost.
Všechny byty jsou vybaveny měřidly, což umožňuje správnou a přesnou úhradu provozních nákladů.
Existuje zápis „Nízkoenergetický dům v provozu“.
Všechny bytové jednotky jsou pronajaty a vykazují velmi dobrou nájemnickou strukturu.
Nájemné činí do konce roku 2025 měsíčně 3.310 €, což odpovídá ročním čistým příjmům z nájemného ve výši 39.720 €.
ZÁVĚR: Jedná se o bezpečnou a dlouhodobou investici na optimálním místě.
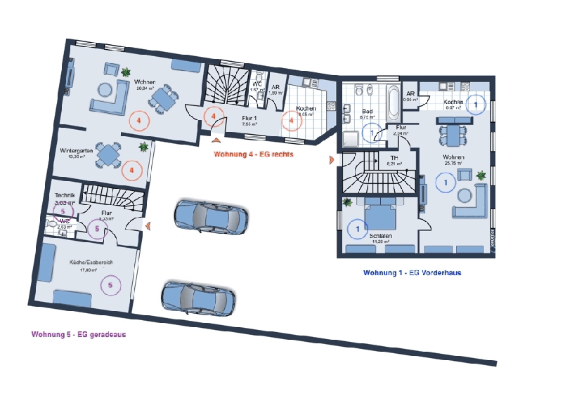
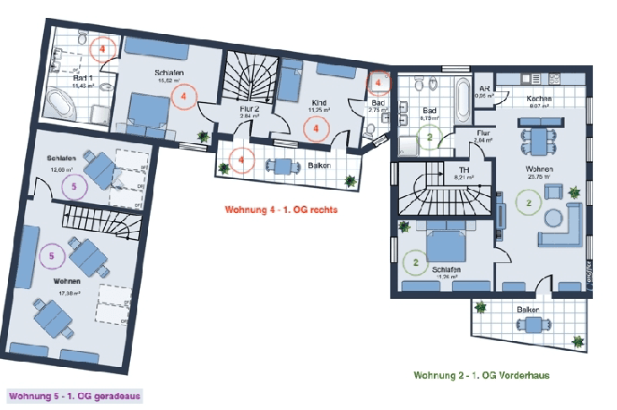
Přehled bytů:
• Přízemí + podkroví přístavby (Maisonette – byt 5): 58,84 m² – 2 pokoje, kuchyň, vstupní chodba, sprchová koupelna
• Přízemí napravo + podkroví bočního křídla (Maisonette – byt 4): 105,65 m² – 4 pokoje, kuchyň, vstupní chodba, 2 koupelny, hostinské WC, sklad, balkon
• Přízemí hlavní budovy (byt 1): 56,82 m² – 2 pokoje, kuchyň, vstupní chodba, koupelna, sklad
• 1. patro hlavní budovy (byt 2): 55,12 m² – 2 pokoje, kuchyň, vstupní chodba, koupelna, sklad
• 2. patro + podkroví hlavní budovy (Maisonette – byt 3): 58,18 m² – 2 pokoje, kuchyň, vstupní chodba, koupelna, balkon/střešní terasa
Vybavení – Popis
Přitažlivé, vkusné a převážně vysoce kvalitní vybavení v detailech:
Grefrath je půvabná obec, která nabízí dobrou infrastrukturu pro každodenní potřeby. Obchodní možnosti, školy a volnočasová zařízení jsou dobře dostupné. Doprava je na vysoké úrovni, s dobrým propojením na regionální silniční síť, což ocení jak dojíždějící, tak cestující. Okolí vybízí k venkovním aktivitám a poskytuje příjemnou kvalitu bydlení.
Mladý obytný komplex v historickém hávu – kompletně nově vybudován a vybaven dle moderních požadavků v roce 2006 v rámci rozsáhlého přestavby a novostavby podle KfW standardu.
Jedná se o velmi individuální soubor pěti bytových jednotek, z toho tři maisonetové byty.
Vnitřní dvůr vyzařuje středomořský půvab a vybízí ke konverzaci se sousedy.
Hlavní budova byla kompletně demontována a znovu postavena v období 2004 až 2006 – sklep i schodiště byly nové odlité a postavené, a přístavba s bočním křídlem byly rovněž nově postaveny.
K dispozici je potvrzení o samostatném právním postavení.
K čtyřem bytovým jednotkám (byty 1 až 4) náleží samostatná skladovací místnost ve sklepě. K dispozici je také společná prádelna se sušárnou pro všechny strany.
Byty v bočním křídle (byt 4) a v přístavbě (byt 5) mají samostatné vchody, přičemž jejich terasy jsou situovány v dvoře. Obě byty rozprostřené ve dvou patrech mají charakter řadových domů.
Terasu za hlavní budovou využívá nájemník v přízemí.
Optimální dispozice a moderní, částečně luxusní vybavení bytů zaručují jejich snadnou pronajímatelnost.
Všechny byty jsou vybaveny měřidly, což umožňuje správnou a přesnou úhradu provozních nákladů.
Existuje zápis „Nízkoenergetický dům v provozu“.
Všechny bytové jednotky jsou pronajaty a vykazují velmi dobrou nájemnickou strukturu.
Nájemné činí do konce roku 2025 měsíčně 3.310 €, což odpovídá ročním čistým příjmům z nájemného ve výši 39.720 €.
ZÁVĚR: Bezpečná a dlouhodobá investice do kapitálu na optimálním místě.
Další vybavení:
▶ Nová přístavba a nová hlavní budova po úplném vyprázdnění (entkernung) v roce 2006
▶ Fasáda v tepelně izolačním SIPS (systém tepelně izolačního vazbového systému)
▶ Plyn ústředního topení z roku 2006
▶ Tepelná solární elektrárna (umístěná na střeše i ve sklepě)
▶ Koupelny částečně s granitovými deskami a detaily
– vybavené rohovou vanou, sprchou, bidetem a oknem
▶ Terasa orientovaná na jihozápad
▶ Klimatizace v bytě 3
▶ Krb v bytě 4
▶ Koupelna v bytě 4 s parní saunou, sprchou a rohovou vanou
▶ Centrální vysavač pro byt 4
▶ Podlahové vytápění v bytech 1, 2, 3, 4 a 5; druhý topný okruh s radiátorem v bytě 4 (vhodné pro alergiky)
▶ Otevřená architektura – otevřené kuchyňské prostory – obytné kuchyně
▶ Vysoce kvalitní granitové podlahy ve vstupních chodbách a schodišti
▶ Bezpečnostní dveře
▶ Vnitřní masivní dřevěné schody
▶ Přibližně 7 m² velká střešní terasa v bytě 3
Další fotografie:
https://photos.app.goo.gl/9GjXzWVenwoPxAWm7
Parametry nemovitosti
| Stáří | Nad 50 let | 
|---|---|
| Číslo inzerátu | 960699 | 
| Užitná plocha | 335 m² | 
| Celkem podlaží | 3 | 
| Stav | Dobrý | 
|---|---|
| PENB | E - Nehospodárná | 
| Plocha pozemku | 359 m² | 
| Cena za jednotku | 2 385 € / m2 | 
Co tato nemovitost nabízí?
| Balkón | |
| Sklep | |
| Parkování | |
| Terasa | 
| Bezbariérový přístup | |
| MHD 2 minuty pěšky | 
V okolí nemovitosti najdete
Stále hledáte to pravé?
Nastavte si hlídacího psa. Nabídky vybrané na míru dostanete souhrnně 1× denně e-mailem. S Premium profilem máte k ruce hlídačů rovnou 5 a když se něco objeví, informují vás obratem.

























































