
Prodej bytu 4+1 • 104 m² bez realitkyWilhelm-Leuschner-Str., 40 Darmstadt Darmstadt Hessen 64293
Wilhelm-Leuschner-Str., 40 Darmstadt Darmstadt Hessen 64293MHD 3 minuty pěškyRenovovaný 4,5-pokojový byt ve vlastnictví, situovaný na půdě sedmirodinného domu.
- Oblíbená lokalita v Johannesviertelu Darmstadtu
- Výborná dopravní dostupnost do všech směrů
+ Krb
+ Parkety
+ Sluneční balkon
+ Koupelna se dvěma umyvadly
+ Vana
+ Koupelna s přirozeným denním světlem
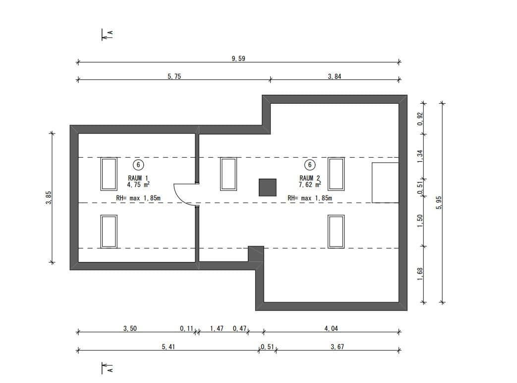
Po prodeji ještě obnovíme příčku s dveřmi, která byla dříve odstraněna – na naše náklady – a tím se byt stane 4-pokojovým.
+ Navíc malý pokoj na podkroví.
+ Na pozemku je možné dokoupit i několik garáží.
Byt je v současné době ještě pronajatý. Lze se dohodnout s nájemníky... možná bude volný přibližně za rok.
V okolí nemovitosti najdete
Stále hledáte to pravé?
Nastavte si hlídacího psa. Nabídky vybrané na míru dostanete souhrnně 1× denně e-mailem. S Premium profilem máte k ruce hlídačů rovnou 5 a když se něco objeví, informují vás obratem.






































