
Pronájem bytu 3+1 • 95 m² bez realitky, Dolní Sasko
, Dolní SaskoMHD do minuty pěškyHodně slunný byt v podkroví v centrální lokalitě Hildesheimu. Díky straně od ulice s nádherným výhledem přes střechy Hildesheimu byt nabízí absolutní klid. Obývací prostor má velká atelier okna na jižní straně, a proto je uspořádán tak, aby byl obzvláště světlý.
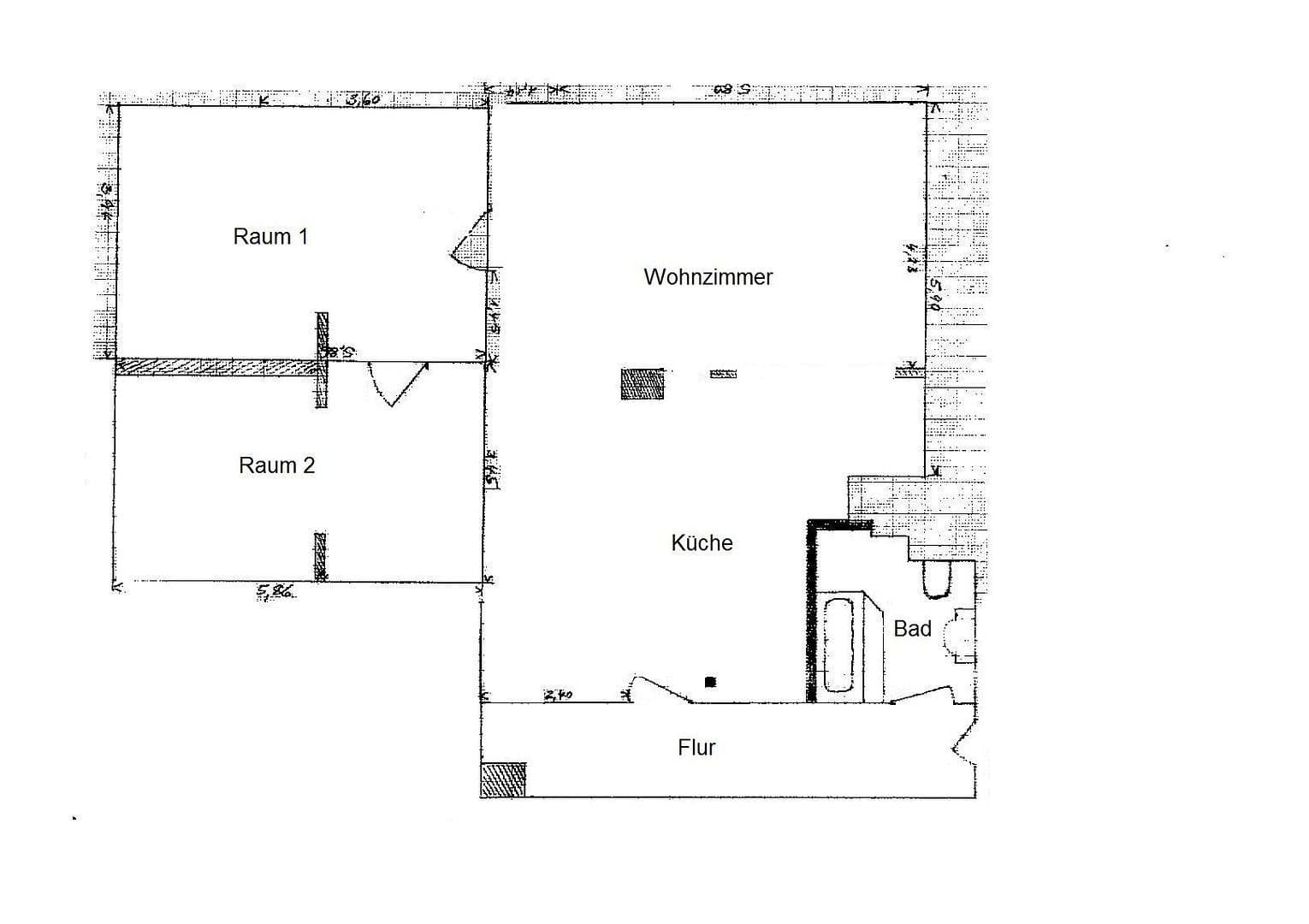
Byt se skládá ze tří velkých místností a malé, útulné koupelny s vanou a oknem.
Byt se nachází v klidné vedlejší ulici v centru Hildesheimu.
Veškerá doprava, školy a možnosti nákupu jsou v bezprostřední blízkosti. V okolí je k dispozici několik parkovacích míst.
- Laminátové podlahy ve všech obytných prostorách
- Vestavěná kuchyň se sporákem, troubou a myčkou nádobí
- Koupelna s vanou a oknem, dlažba v italsko-toskánském stylu s mušlovým vzorem
- Pračka
- Laminát v celém bytě
- Vzájemná domovní interkomová soustava
První kontakt prosím e-mailem s uvedením Vašeho telefonního čísla.
Uveďte prosím informace o Vaší soukromé a profesní situaci včetně čistého příjmu a počtu osob.
V okolí nemovitosti najdete
Stále hledáte to pravé?
Nastavte si hlídacího psa. Nabídky vybrané na míru dostanete souhrnně 1× denně e-mailem. S Premium profilem máte k ruce hlídačů rovnou 5 a když se něco objeví, informují vás obratem.









