
Prodej domu 5+1 • 217 m² bez realitkyGroß St.Florian Steiermark 8522
Groß St.Florian Steiermark 8522MHD 2 minuty pěškyPOINT 217 S – ARCHITEKTURNÍ PROHLÁŠENÍ
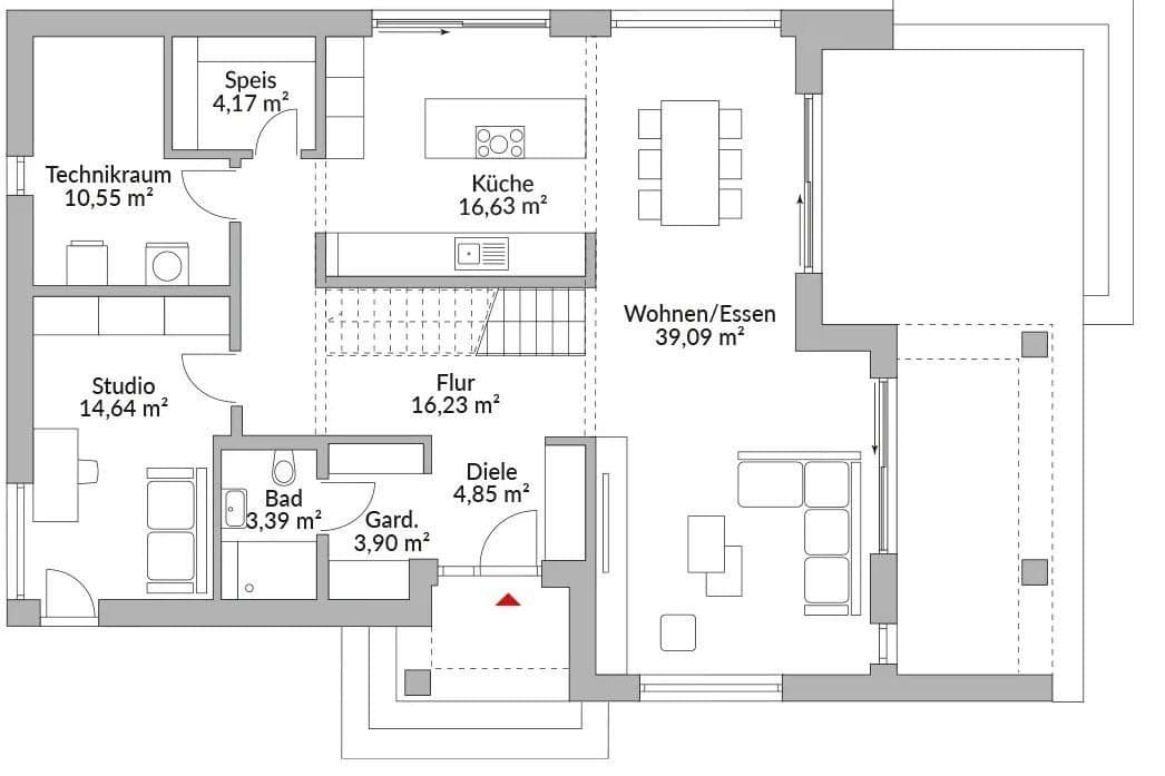
Jako kulisa vás tento dům přivítá se zvýšenou vstupní partií a dveřmi, které vytvářejí prostor pro očekávání. Střešní okna – upoutávka, slib.
Okna, která se dotýkají země, propouštějí světlo a nechávají místnosti dýchat. Kuchyně – otevřená, přívětivá – se spojuje s obytným prostorem, zatímco posuvné dveře otevírají cestu na terasu.
Studio v přízemí – útočiště, ateliér, pokoj pro hosty. Prostory, které usnadňují každodenní život, aniž by v něm dominovaly.
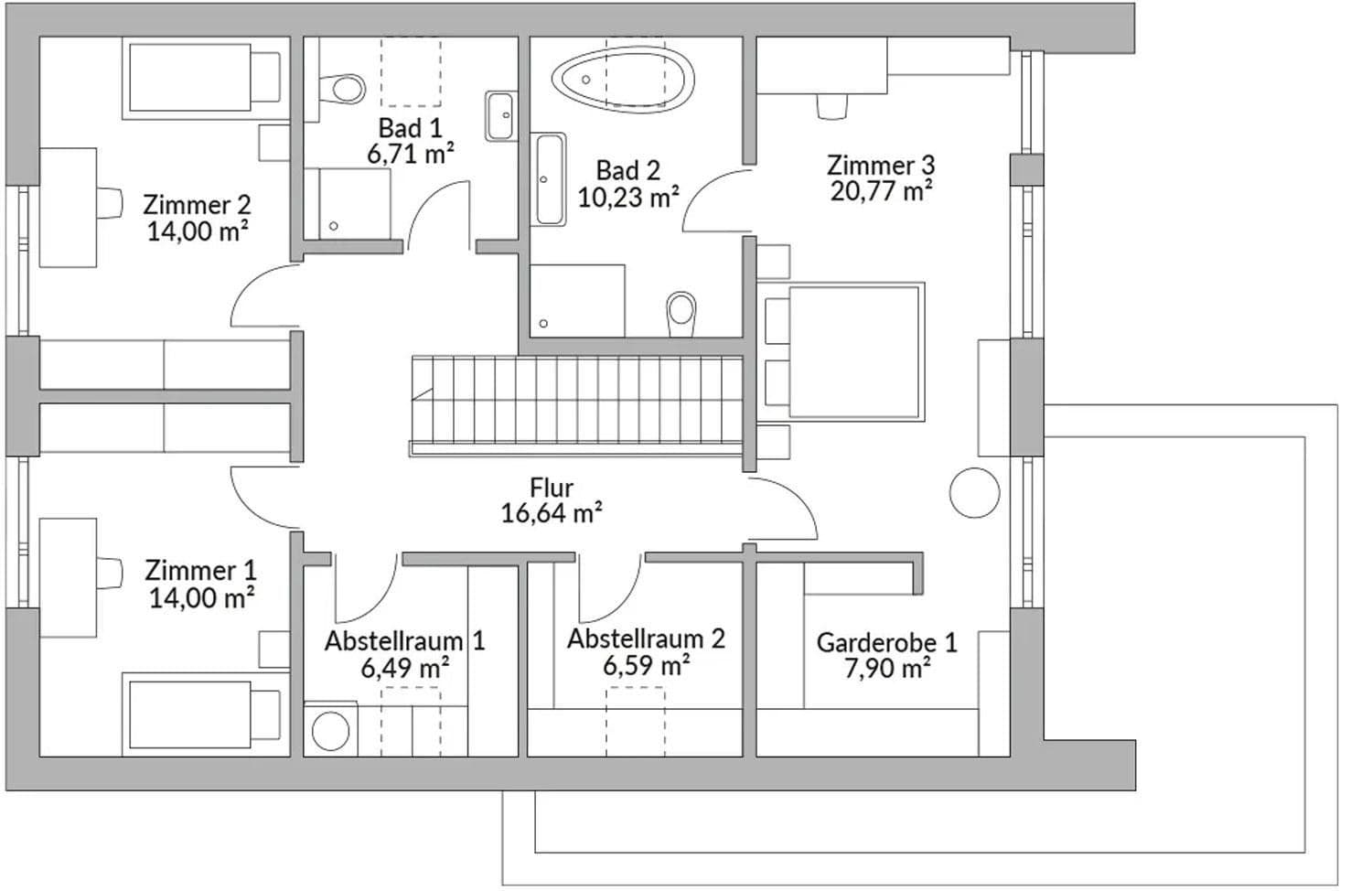
A nahoře? Ložnice jako útočiště. S choditelnou šatnou, exkluzivní koupelnou, dvojitým umyvadlem – a s možností volně stojící vany. Místo, které inspiruje.
Na vašem pozemku nebo …
Následující pozemky momentálně nabízíme:
Güssing: Přibližně 2 600 m² – velikost pozemku a jeho umístění lze volně zvolit
-----------------------------------------------------------------------------------------
Pichling u Stainz: cca 7 500 m² stavebního pozemku – velikost pozemku a jeho umístění lze volně zvolit
-----------------------------------------------------------------------------------------
Kraubath ve Velkém St. Florian: Přibližně 5 000 m² stavebního pozemku – velikost pozemku a jeho umístění lze volně zvolit
-----------------------------------------------------------------------------------------
8530 Deutschlandsberg: Přibližně 2180 m² stavebního pozemku. Schválený projekt se 4 obytnými jednotkami
Vlastník je stále otevřen dalším nabídkám; velikost pozemku a jeho umístění lze volně zvolit
-----------------------------------------------------------------------------------------
Oberer Bahnweg 14, 8523 Frauental: 1000 m² stavebního pozemku se schváleným projektem dvojdomu, volba dle vlastního uvážení
-----------------------------------------------------------------------------------------
Vlastník pozemku a stavitel domu nejsou v úzkém ekonomickém vztahu!
Exkluzivní rodinné domy – dodané v klíčovém provedení – PŘESNĚ CENOVĚ VÝHODNÉ – INDIVIDUÁLNÍ
DAN-WOOD – domová série S-Line – klíčové ceny
Rodinný dům s 5 pokoji, 2 koupelnami, šatnou
Pozemek o rozloze 500 m², 1000 m², 1500 m² – dle přání k dispozici!
V ceně je zahrnuto:
• Dodání v klíčovém provedení (stačí nastěhovat se s nábytkem!)
• Dodávka a montáž od horní hrany základu
• Střešní konstrukce posílená proti sněhové zátěži
• Vzduch-voda tepelná čerpadla, podlahové vytápění
• Centrální větrání obytných prostor s rekuperací tepla (v létě chlazení)
• Elektrické rolety v celém domě
• Veškeré podlahové krytiny dle vašeho výběru
• Všechny sanitární zařízení dle vašeho výběru
• Příprava pro fotovoltaiku
• Kompletní balíček bez starostí
VOLITELNĚ: Vlastní práce samozřejmě možná!
Okamžitá informace – první konzultace!
Poradenství – prodej
Paní Tatjana Wyss
+43 676553 77 47
tatjana.wyss@danwood.at
DAN-WOOD staví po celé Rakousku!
Další nabídky
https://qr.scan.page/uploads/pdf/1752425788820_67fe2f4050367.pdf
Požádejte o stavební popis a katalogy!
Pro to je nutné uvést vaše telefonní číslo, e-mailovou adresu a adresu.
Mnohokrát děkujeme!
V okolí nemovitosti najdete
Stále hledáte to pravé?
Nastavte si hlídacího psa. Nabídky vybrané na míru dostanete souhrnně 1× denně e-mailem. S Premium profilem máte k ruce hlídačů rovnou 5 a když se něco objeví, informují vás obratem.














