
Prodej domu 5+1 • 217 m² bez realitkyPichling bei Stainz Steiermark 8510
Pichling bei Stainz Steiermark 8510MHD 1 minuta pěškyPOINT 217 S ARCHITEKTONICKÝM PROHLÁŠENÍM
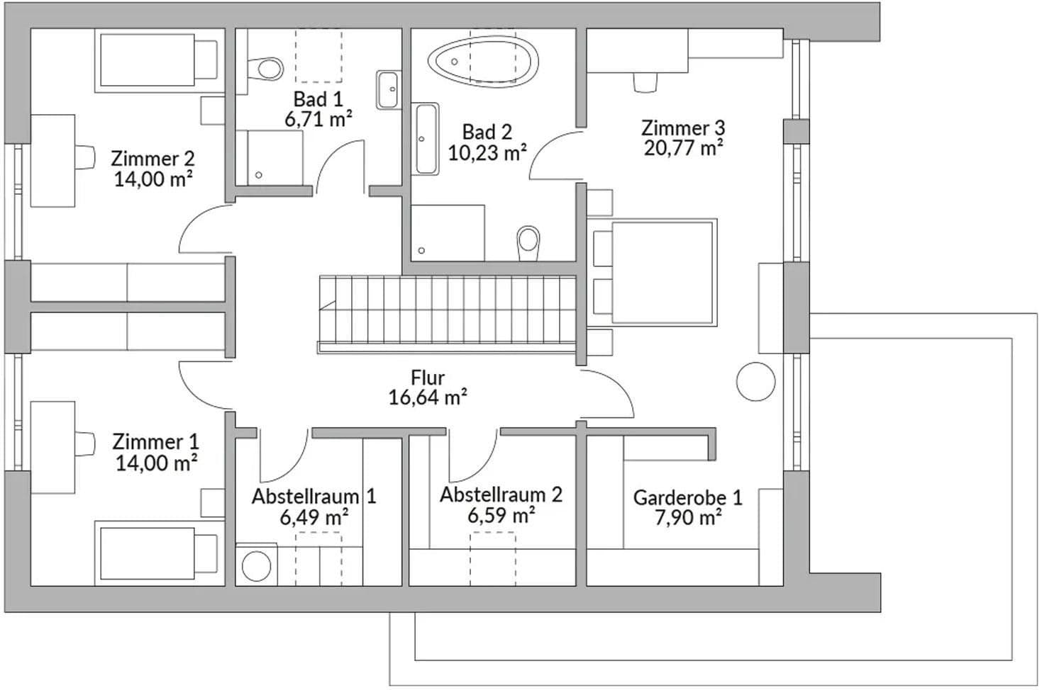
Jako divadelní kulisa vás tento dům přivítá se zvýšeným vstupem a dveřmi, které otevírají prostor pro očekávání.
Okna ve štítě – okouzlující, slibující.
Okna sahající až k podlaze nechávají proudit světlo a dýchají do prostoru.
Kuchyně – otevřená, přívětivá – se spojuje s obývacím prostorem, zatímco posuvné dveře otevírají cestu na terasu.
Studio v přízemí – místo úkrytu, ateliér, pokoj pro hosty.
Prostory, které zjednodušují každodenní život, aniž by ho ovládaly.
A nahoře? Ložnice jako útočiště. S přístupnou šatnou, exkluzivní koupelnou, dvojitým umyvadlem – a s možností volně stojící vany. Místo, které inspiruje.
Na vašem pozemku nebo …
Nyní vám nabízíme následující pozemky:
Güssing: přibližně 2 600 m² – rozměry a umístění pozemku dle vašeho přání
-----------------------------------------------------------------------------------------
Pichling u Stainz: přibližně 7 500 m² stavebního pozemku – rozměry a umístění pozemku dle vašeho přání
-----------------------------------------------------------------------------------------
Kraubath v Groß St. Florian: přibližně 5 000 m² stavebního pozemku – rozměry a umístění pozemku dle vašeho přání
-----------------------------------------------------------------------------------------
8530 Deutschlandsberg: přibližně 2 180 m² stavebního pozemku. Schválený projekt se 4 obytnými jednotkami
Majitel je ještě otevřený dalším nabídkám – rozměry a umístění pozemku dle vašeho přání
-----------------------------------------------------------------------------------------
Oberer Bahnweg 14, 8523 Frauental: 1 000 m² stavebního pozemku se schváleným projektem dvojrodinného domu – detaily dle vašeho přání
-----------------------------------------------------------------------------------------
Vlastník pozemku a stavitel domu nejsou v úzkém ekonomickém vztahu!
Exkluzivní rodinné domy – realizace na klíč, přesný poměr ceny a hodnoty, individuálně
DAN-WOOD domová série S-Line – ceny na klíč
Rodinný dům: 5 pokojů, 2 koupelny, šatna
Pozemek: 500 m², 1 000 m², 1 500 m² – dle přání k dispozici!
V ceně zahrnuto:
• Klíčové řešení (stačí vsunout nábytek a můžete ihned bydlet!)
• Doručení a montáž od horní hrany základu
• Konstrukce střechy zesílená proti sněhové zátěži
• Tepelné čerpadlo vzduch-voda a podlahové vytápění
• Centrální větrání obytných prostor s rekuperací tepla (v létě ochlazuje)
• Elektrické rolety po celém domě
• Veškeré podlahové krytiny dle vašeho výběru
• Veškeré sanitární vybavení dle vašeho výběru
• Příprava na fotovoltaický systém
• Kompletní balíček bez starostí
VOLITELNĚ: Možnost vlastní účasti je samozřejmě možná!
Okamžité informace – první konzultace!
Poradenství – prodej
Paní Tatjana Wyss
+43 676553 77 47
tatjana.wyss@danwood.at
DAN-WOOD staví po celé Rakousku!
Další nabídky:
https://qr.scan.page/uploads/pdf/1752425788820_67fe2f4050367.pdf
Požádejte o popis stavebního plánu a katalogy!
K tomu je nutné uvést vaše telefonní číslo, e-mailovou adresu a adresu.
Děkujeme vám!
V okolí nemovitosti najdete
Stále hledáte to pravé?
Nastavte si hlídacího psa. Nabídky vybrané na míru dostanete souhrnně 1× denně e-mailem. S Premium profilem máte k ruce hlídačů rovnou 5 a když se něco objeví, informují vás obratem.














