
Pronájem bytu 3+1 • 98 m² bez realitkyMerseburger Straße 95 Leipzig Altlindenau Sachsen 04177
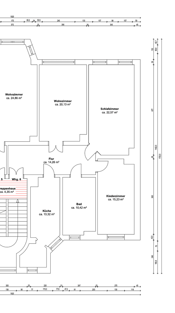
Merseburger Straße 95 Leipzig Altlindenau Sachsen 04177MHD 2 minuty pěškyTento třípokojový byt ve 3. nadzemním podlaží budovy chráněné jako památka byl zrenovován a je nyní k dispozici k prvotnému nastěhování. Na přibližně 98 m² obytné plochy vás očekávají světlé místnosti s vysokými stropy a štukovými prvky, prostorný obývací pokoj a koupelna s vanou a oddělenou sprchou.
Zvláštní pozornost si zasluhuje prostorný obývací pokoj a praktické uspořádání místností, které vyhovuje jak rodinám, tak párům s potřebou většího prostoru.
Byt se nachází v centrální části Lipska, s přímým spojením tramvají a autobusy přímo před domem. Obchody, kavárny, restaurace a kulturní zařízení jsou v bezprostřední blízkosti. Parky a zelené plochy jsou také rychle dostupné.
- Prvotní nastěhování po rekonstrukci
- cca 98 m², 3 pokoje, 3. patro
- Prostorná koupelna s vanou a oddělenou sprchou
- Kvalitní, voděodolné podlahové krytiny s dřevěným vzhledem
- Nové kliky na dveřích a oknech, zrestaurované dveře
- Budova chráněná jako památka s reprezentativním schodištěm
V okolí nemovitosti najdete
Stále hledáte to pravé?
Nastavte si hlídacího psa. Nabídky vybrané na míru dostanete souhrnně 1× denně e-mailem. S Premium profilem máte k ruce hlídačů rovnou 5 a když se něco objeví, informují vás obratem.











