
Pronájem bytu 3+kk • 78 m²Ohradní, Praha - Michle
Ohradní, Praha - MichleMHD 1 minuta pěškyPoznámka k ceně
+ poplatky 3.251 Kč/měsíc/2 os. (každá další osoba za příplatek) + elektřina, která bude převedena na nájemníkaMáte o nabídku zájem?
Ušetřete 28 990 Kč na provizi a komunikujte se všemi majiteli.
Vzhledem k vysokému zájmu o námi inzerované nemovitosti žádáme všechny vážné zájemce o prohlídky, aby nás pro rychlý a efektivní postup kontaktovali výhradně skrze formulář níže. Následně Vám emailem zašleme krátký osobní dotazník, ve kterém bude třeba uvést několik základních informací. Po vyplnění tohoto dotazníku obdržíte informaci o dalším postupu. Než se setkáme na prohlídce, podívejte se prosím na výhody bydlení s námi na webu Dokonalý nájemník v sekci „Hledám bydlení“. Tuto sekci najdete přímo v horním menu našich internetových stránek.
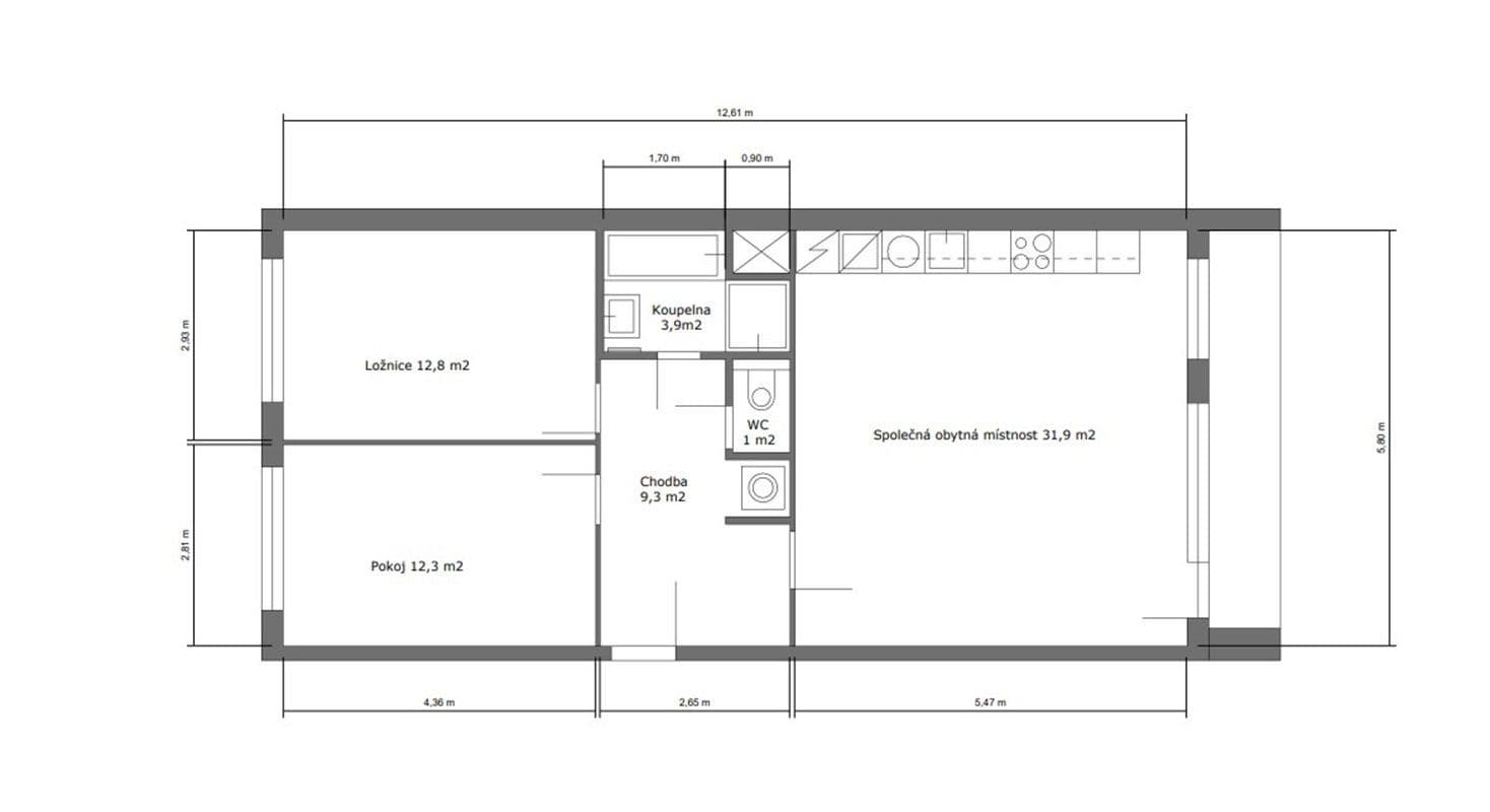
Nabízíme podnájem hezkého bytu 3+kk po rekonstrukci, o celkové výměře 78 m², v 9. nadzemním podlaží domu s výtahem, na Praze 4 – Michle. Byt je podnajímán nezařízený nábytkem a interiér si tak můžete přizpůsobit vlastnímu vkusu. Výjimkou je pouze jídelní stůl se židlemi, který je součástí obývacího pokoje s moderní kuchyňskou linkou, vybavenou spotřebiči (lednice, trouba, varná deska, digestoř, myčka, mikrovlnná trouba). Koupelna nabízí jak vanu, tak sprchový kout, přičemž toaleta je samostatná. Součástí bytu je také pračka umístěná na chodbě a zastřešená lodžie přístupná z obývacího pokoje. K dispozici je také sklepní kóje, která Vám poskytne spoustu úložného prostoru.
Nabídka je určena k dlouhodobému podnájmu a je k nastěhování od 31.1.2026.
Dům se nachází v oblíbené části Prahy 4 – Michle, která spojuje klidné bydlení s výbornou dostupností do centra. V blízkosti je zastávka tramvaje i autobusu, které vás během několika minut dovezou na stanici metra C – Pankrác. V okolí najdete veškerou občanskou vybavenost včetně obchodů, restaurací a škol. Milovníci zeleně ocení nedaleký park Jezerka, který nabízí možnosti pro procházky a relaxaci.
Poznámka k ceně: Poplatky za služby vč. pojištění domácnosti a odpovědnosti činí 3.251 Kč/měsíc + elektřina, která bude převedena na nájemníka. Při podpisu smlouvy nájemník hradí první nájemné, dále rezervaci a vratnou kauci ve výši jedné měsíční platby.
Pokud se nemůžete na prohlídku bytu dostavit osobně, je možné domluvit prohlídku formou videohovoru. V reakci na tento inzerát o sobě prosím uvádějte alespoň základní informace (počet osob, zaměstnání, od kdy hledáte bydlení, zda máte domácího mazlíčka). Děkujeme.
Parametry nemovitosti
| Dostupné od | 31. 1. 2026 |
|---|---|
| Konstrukce budovy | Panel |
| Vybaveno | Nevybaveno |
| Číslo inzerátu | 961781 |
| PENB | C - Úsporná |
| Užitná plocha | 78 m² |
| Cena za jednotku | 372 Kč / m2 |
| Stav | Po rekonstrukci |
|---|---|
| Dispozice | 3+kk |
| Podlaží | 9. podlaží |
| Vlastnictví | Družstevní |
| Odpad | Veřejná kanalizace |
| Voda | Z veřejného zdroje |
Co tato nemovitost nabízí?
| MHD 1 minuta pěšky |
V okolí nemovitosti najdete
Poznámka k ceně
+ poplatky 3.251 Kč/měsíc/2 os. (každá další osoba za příplatek) + elektřina, která bude převedena na nájemníkaMáte o nabídku zájem?
Ušetřete 28 990 Kč na provizi a komunikujte se všemi majiteli.
Stále hledáte to pravé?
Nastavte si hlídacího psa. Nabídky vybrané na míru dostanete souhrnně 1× denně e-mailem. S Premium profilem máte k ruce hlídačů rovnou 5 a když se něco objeví, informují vás obratem.




























