
Prodej bytu 2+1 • 90 m² bez realitkyBreite Straße 116 Hamburg Altona-Altstadt Hamburg 22767
Penthouse je vybaven luxusním a kvalitním zařízením v celkové hodnotě přibližně 40 000 €, které je jen několik let staré a v bezvadném stavu. Patří mezi něj plně automatické, neprůhledné plisované rolety s integrovaným hlasovým ovládáním (cca 10 000 €), vysoce kvalitní keramická kuchyň se skleněnou frontou a značkovými vestavěnými spotřebiči, propojený chytrý světelný systém a bezdotykové infračervené kohoutky pro maximální komfort a hygienu.
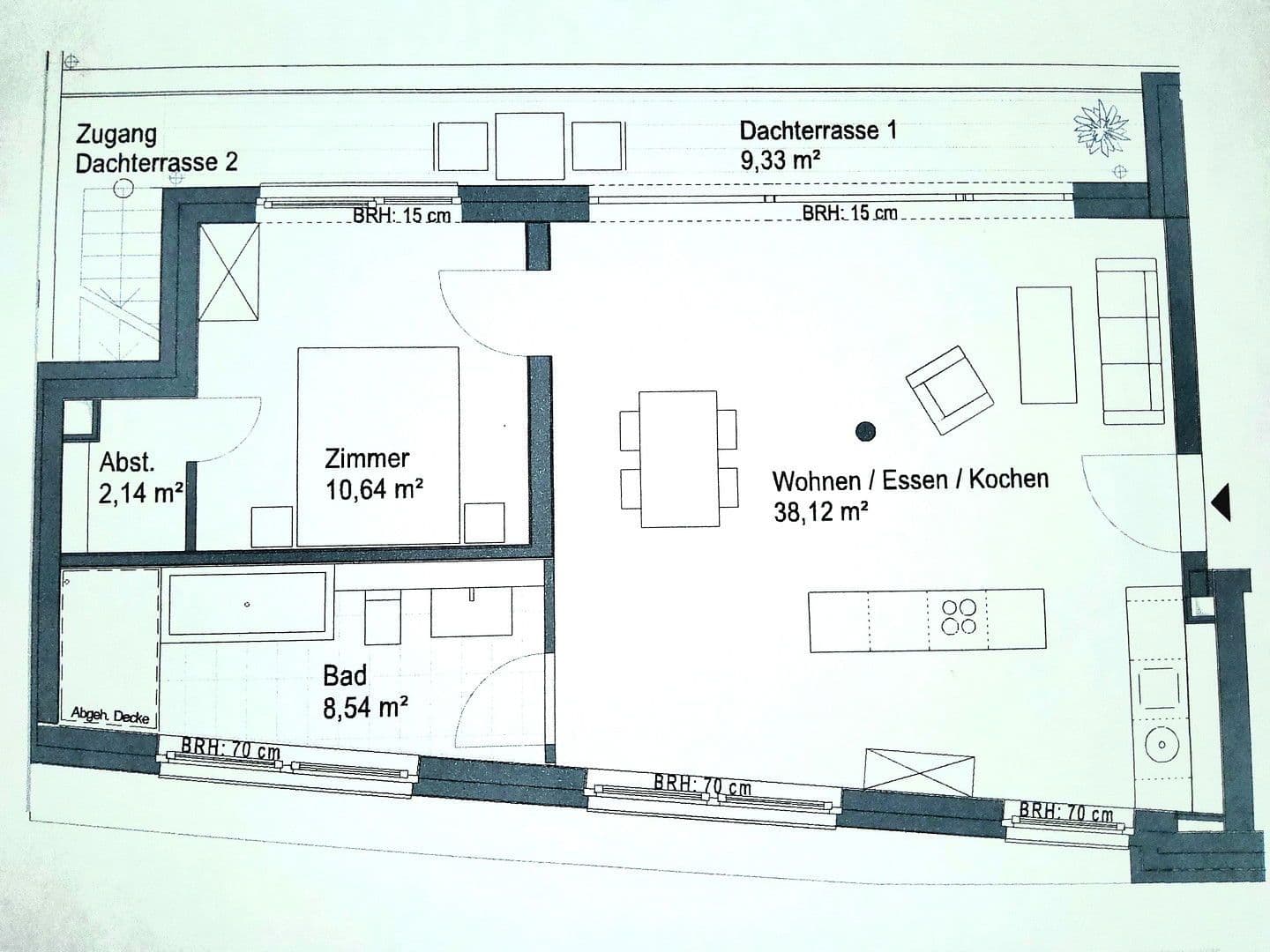
Podle platného výpočtového předpisu se terasa započítává do obytné plochy ze 50 % na základě její povahy, vybavení, polohy, výhledu a slunečního záření.
Z parkovacího místa, které k bytu patří, se pohodlně dostanete výtahem přímo do 5. patra. Moderní budova je postavena teprve před několika lety a přidružený penthouse disponuje vysoce kvalitním a pečlivě udržovaným vybavením. Vrcholem bytu je však prostorná střešní terasa o rozloze přes 50 m², která je optimálně řešená a nabízí dechberoucí panoramatický výhled na město Hamburk i okolní vodní plochy.
V docházkové vzdálenosti se nachází Reeperbahn, hamburský přístav, rybí trh, nákupní centrum Altona a řada restaurací, kaváren a cukráren, což zajišťuje vynikající infrastrukturu v přímém okolí.
- Parketová podlaha s podlahovým vytápěním
- Vysoce kvalitní keramická kuchyň se skleněnou frontou a vestavěnými spotřebiči / vinotéka
- Elektrické plisované rolety
V okolí nemovitosti najdete
Stále hledáte to pravé?
Nastavte si hlídacího psa. Nabídky vybrané na míru dostanete souhrnně 1× denně e-mailem. S Premium profilem máte k ruce hlídačů rovnou 5 a když se něco objeví, informují vás obratem.












