
Pronájem domu 4+1 • 97 m² bez realitkyGerasdorf bei Wien (Oberlisse) Oberlisse Niederösterreich 2201
Gerasdorf bei Wien (Oberlisse) Oberlisse Niederösterreich 2201MHD 1 minuta pěšky • ParkováníHledáte útulný domov v klidném prostředí, obklopeném zelení, a přitom jen kousek od Vídně?
V Gerasdorf-Oberlisse, na severním okraji Vídně, v klidné čtvrti s rodinnými domky, na vás čeká světlý, bezbariérový bungalov postavený v roce 2025.
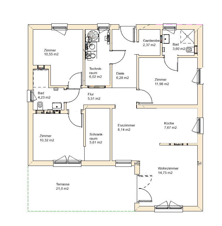
Na téměř 100 m² obytné plochy najdete – díky perfektnímu uspořádání místností – obývací/jídelnu, polootevřenou kuchyň, ložnici s šatní skříní, dvě další místnosti, dvě koupelny s WC a technickou místnost.
Bungalov je již vybaven vestavěnou kuchyní (s elektrickou varnou deskou a digestoří, troubou, mikrovlnnou troubou s grilem, myčkou nádobí a kombinovanou chladničkou s mrazákem, všechny spotřebiče značky SIEMENS). V technické místnosti se – kromě tepelného čerpadla – nachází i plně automatická pračka a sušička prádla.
V zimě zajišťuje podlahové topení rovnoměrné teplo, v létě zase klimatizace a venkovní rolety instalované u všech oken příjemné ochlazení.
Z prosvětleného obývacího pokoje se dostanete na velkou terasu orientovanou na jihovýchod, která může být před sluncem zastíněna markýzou.
Přibližně 500 m² velká zahrada vás zve k opalování a hraní. Malá zahradní chatka nabízí úložný prostor pro zahradní nářadí a jízdní kola. Díky zavlažovacímu systému a sekačce s robotickým řízením je péče o trávník hračkou.
Za pár minut se dostanete k Gerasdorfer Badeteich a k Marchfeldkanal, oblíbené oblasti pro rekreaci, procházení, pěší túry a cyklistiku.
Do centra Vídně se nejlépe dostanete veřejnou dopravou; stanice metra Leopoldau je snadno dostupná autem i na kole.
Zaujala vás nabídka a chcete si domluvit prohlídku?
Těším se na vaši odezvu.
Klidná poloha na okraji Vídně. Veřejná doprava nabízí dobré spojení metrem do centra.
Rekreační oblasti jako Marchfeldkanal a přírodní Badeteich se nacházejí v bezprostřední blízkosti a jsou dobře dostupné pěšky i na kole.
Vzdálenosti:
Supermarket – 900 m
Pekařství – 950 m
Nákupní centrum CITYGATE – 3,9 km
Lékař – 900 m
Lékárna – 900 m
Nemocnice – 5,8 km
Mateřská škola – 600 m
Základní škola – 600 m
Střední škola – 1 km
Gymnázium – 2,8 km
Banka – 250 m
Pošta – 800 m
Autobusová zastávka – 150 m
Stanice metra Wien U1 Leopoldau – 2 km
Přípojka na dálnici – 4 km
Gerasdorfer Badeteich – 1,4 km
Marchfeldkanal – 1,4 km
Domácí mazlíčci jsou povoleni na vyžádání.
V okolí nemovitosti najdete
Stále hledáte to pravé?
Nastavte si hlídacího psa. Nabídky vybrané na míru dostanete souhrnně 1× denně e-mailem. S Premium profilem máte k ruce hlídačů rovnou 5 a když se něco objeví, informují vás obratem.




















