
Pronájem kanceláře • 165 m² bez realitkyWuppertal Elberfeld Nordrhein-Westfalen 42103
Wuppertal Elberfeld Nordrhein-Westfalen 42103MHD 2 minuty pěšky • Výtah • Parkování • Garáž️ Reprezentativní komerční prostor s výtahem a parkovacím místem v podzemní garáži v nejlepší lokalitě ve Wuppertal-Elberfeld!
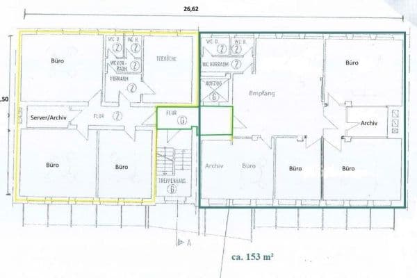
Popis objektu
K pronájmu je nabízena světlá, moderně vybavená kancelářská či ordinace plocha v oblíbené čtvrti Luisenviertel, jedné z nejžádanějších obchodních adres ve Wuppertalu.
Jednotka byla v roce 2024 kompletně zmodernizována, včetně podlah, stěn, stropů, osvětlení, kuchyně a sanitárních zařízení.
Péče o budovu se již osvědčila – sídlí zde lékaři, pojišťovny a poskytovatelé služeb, což vytváří profesionální prostředí s optimálním veřejným dojmem.
Dříve využívaná jako ORL ordinace, tato plocha nabízí široké možnosti využití – ideální pro lékařské, poradenské nebo kreativní obory.
Výtah zajišťuje bezbariérový přístup a parkovací místo v podzemní garáži přímo v budově dokonale doplňuje nabídku.
Lokalita
Nemovitost se nachází na ulici Untergrünewalder, přímo v srdci oblíbené čtvrti Luisenviertel ve Wuppertal-Elberfeld.
Čtvrť je známá svým půvabem historické architektury, stylovou gastronomií a vysokou frekvencí chodců – ideální pro přilákání zákazníků a zaměstnanců.
Dopravní spojení:
️ Hlavní nádraží ve Wuppertalu cca 5 minut
️ Autobusové zastávky v bezprostřední blízkosti
️ Veřejné parkovací možnosti v okolí
️ Přímé napojení na dálnici A46
Vhodné pro
• Ordinaci lékaře či pro terapii
• Advokátní kancelář, daňového poradce či pojišťovnu
• IT, marketing nebo administrativní kancelář
• Kreativní agenturu nebo start-up
ℹ️ Ostatní informace
Nájemné plus provozní náklady
Kauce: 2 chladné nájmy
1 parkovací místo v podzemní garáži je zahrnuto v ceně nájmu
Výtah k dispozici
Bez provize
Prohlídky jsou možné kdykoli po domluvě
Parametry nemovitosti
| Dostupné od | 22. 11. 2025 |
|---|---|
| Podlaží | 2. podlaží z 3 |
| Plocha kanceláře | 165 m² |
| Stav | Velmi dobrý |
|---|---|
| Číslo inzerátu | 963057 |
| Cena za jednotku | 15 € / m2 |
Co tato nemovitost nabízí?
| Garáž | |
| Výtah | |
| MHD 2 minuty pěšky |
| Parkování |
V okolí nemovitosti najdete
Stále hledáte to pravé?
Nastavte si hlídacího psa. Nabídky vybrané na míru dostanete souhrnně 1× denně e-mailem. S Premium profilem máte k ruce hlídačů rovnou 5 a když se něco objeví, informují vás obratem.












