
Prodej domu • 240 m² bez realitkyBonn Holzlar Nordrhein-Westfalen 53229
Bonn Holzlar Nordrhein-Westfalen 53229MHD 2 minuty pěšky • ParkováníGroßzügige Doppelhaushälften nach KFW-Effizienzhaus 55 Standard mit TOP-Ausstattung in grüner TOP-Lage von Bonn-Holzlar.
Prostorné poloduplexy dle standardu KFW-Effizienzhaus 55 s prvotřídním vybavením v zelené, mimořádné lokalitě Bonn-Holzlar.
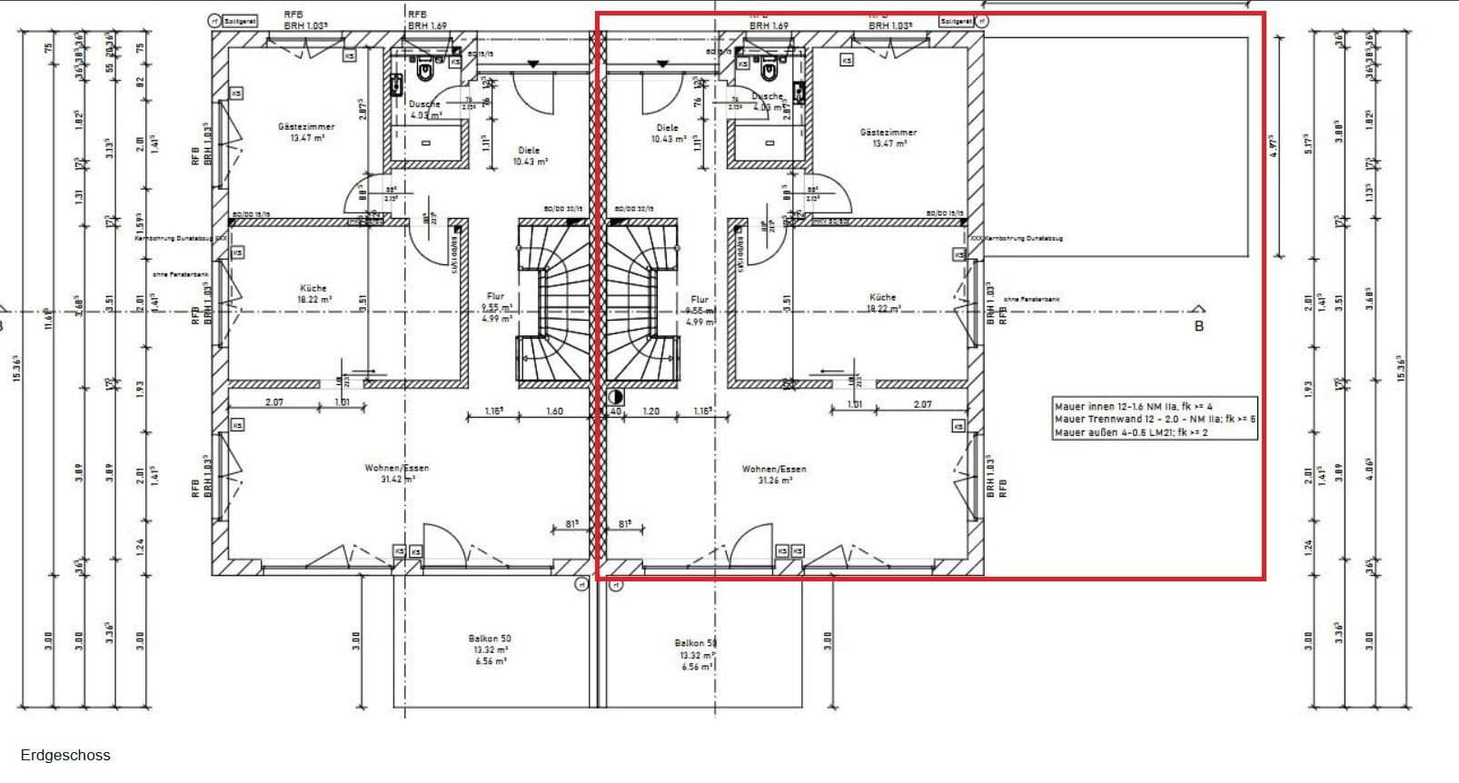
Die Doppelhaushälfte hat ca. 240 m² Wohnfläche, 432 m² Grundstück und verfügt über insgesamt 3 Geschosse, 8 schöne und helle Zimmer und 4 Badezimmer und bietet folgende gelungene Raumaufteilung (siehe Grundrissplan):
Poloduplex disponuje přibližně 240 m² obytné plochy, 432 m² pozemku a celkem 3 podlaží, 8 krásnými a světlými pokoji a 4 koupelnami a nabízí následující promyšlené dispozice (viz půdorys):
Erdgeschoss:
- geräumige Diele/Flur
Přízemí:
- prostorná hala/chodba
- großes und helles Wohnzimmer mit Essbereich mit Zugang zum Balkon (Süd-West)
- velký a světlý obývací pokoj s jídelnou a přístupem na balkon (jihozápad)
- große Einbauküche mit Küchengeräten
- velká vestavěná kuchyně s kuchyňskými spotřebiči
- tagesbelichtetes Badezimmer mit Dusche
- koupelna s denním světlem se sprchou
- geräumiges Büro / Schlafzimmer / Gäste-Zimmer
- prostorná kancelář / ložnice / pokoj pro hosty
- großer Balkon mit elektrischer Markise
- velký balkon s elektrickým markýzou
Dachgeschoss:
- Flur
Podkroví:
- chodba
- Elternschlafzimmer
- hlavní ložnice
- Ankleidezimmer
- šatna
- tagesbelichtetes Elternbad mit Dusche und Badewanne
- koupelna hlavních s denním světlem se sprchou a vanou
- Kinderzimmer 1
- dětský pokoj 1
- Kinderzimmer 2
- dětský pokoj 2
- Kinderbad mit Dusche
- dětská koupelna se sprchou
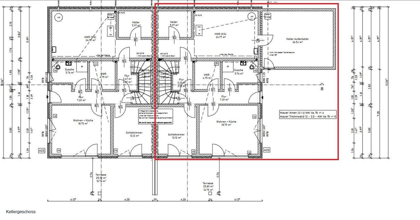
Untergeschoss:
- Hauswirtschaftsraum / Technikraum
Suterén:
- prádelna / technická místnost
- Vorratsraum / Kellerraum
- sklepní místnost / sklad
Extras:
- Photovoltaikanlage 5KW mit 22 KW Speicher, dadurch niedriger Stromverbrauch
Extra vybavení:
- fotovoltaická elektrárna 5 kW s 22 kW úložištěm, což zajišťuje nízkou spotřebu elektřiny
- Außenkeller ca. 25 m²
- vnější sklep cca 25 m²
- Kamin mit viel Kaminholz (Buche)
- krb s velkým množstvím dřeva (buk)
- Gartensauna mit Vorraum für bis zu 6 Personen
- venkovní sauna se vstupní halou pro až 6 osob
- Zusätzliche Terassenüberdachung mit elektrischer Markise
- další zastřešení terasy s elektrickým markýzou
Im Untergeschoss der Doppelhaushälfte befinden sich auch weitere Räume, die zum Beispiel als eine eigenständige Einliegerwohnung (ca. 65 m²) oder Büroräume mit eigener Terrasse und eigenem Eingang genutzt werden können.
V suterénu poloduplexu se nacházejí také další prostory, které mohou být například využity jako samostatný samostatný byt (cca 65 m²) nebo kancelářské prostory s vlastní terasou a vlastním vchodem.
Dazu gehören folgende Räume:
Tyto prostory zahrnují následující místnosti:
- großes Wohnzimmer mit Küchenanschlüssen mit Zugang zur Terrasse (Süd-West)
- velký obývací pokoj s kuchyňským přípojkami a přístupem na terasu (jihozápad)
- Schlafzimmer/Büro/ Gästezimmer mit Zugang zur Terrasse (Süd-West)
- ložnice/kancelář/pokoj pro hosty s přístupem na terasu (jihozápad)
- tagesbelichtetes Badezimmer mit Dusche
- koupelna s denním světlem se sprchou
- Hauswirtschaftsraum
- prádelna
- Vorratsraum / Abstellraum
- skladovací/skladištní místnost
Für Ihr Fahrzeug steht ein breiter Carport zur Verfügung. Zahlreiche Parkplätze finden Sie in unmittelbarer Nähe.
Pro vaše vozidlo je k dispozici široký přístřešek (carport). Řada parkovacích míst se nachází v bezprostřední blízkosti.
Die Doppelhaushälfte liegt im Bonner Stadtteil Holzlar. Der Ortsteil Holzlar liegt nah am Naturschutzgebiet Siebengebirge gelegen. Der Wald ist in 5 Minuten erreichbar.
Poloduplex se nachází v bonnské čtvrti Holzlar. Tato část Holzlar se nachází nedaleko chráněné přírodní oblasti Siebengebirge. Les je dosažitelný za 5 minut.
Einrichtungen des täglichen Bedarfs sind fußläufig erreichbar - zum Beispiel: Kindergarten, Grundschule, Bäcker, Supermärkte, Apotheke, Banken und Ärzte.
Zařízení pro každodenní potřeby jsou dosažitelná pěšky – například: mateřská škola, základní škola, pekárna, supermarkety, lékárna, banky a lékaři.
Flughafen Köln/Bonn: 21 km / ca. 20 Autominuten
Letiště Köln/Bonn: 21 km / cca 20 minut jízdy autem
Zentrale Telekom: 7,5 km / ca. 11 Autominuten
Centrála Telekom: 7,5 km / cca 11 minut jízdy autem
Post Tower: 9 km / ca. 15 Autominuten
Poštovní věž: 9 km / cca 15 minut jízdy autem
UN: 9 km / ca. 15 Autominuten
OSN: 9 km / cca 15 minut jízdy autem
ICE Bahnhof Siegburg: 7,5 km / ca. 10 Autominuten
Vlakové nádraží ICE Siegburg: 7,5 km / cca 10 minut jízdy autem
Mit öffentlichen Verkehrsmitteln sind Bonn, Siegburg und Köln gut zu erreichen. Die Autobahnen A3, A59, A560 und der Flughafen Köln-Bonn sind ebenfalls schnell erreicht.
Veřejnou dopravou jsou Bonn, Siegburg a Köln dobře dostupné. Také dálnice A3, A59, A560 a letiště Köln-Bonn jsou rychle dosažitelné.
Die hier angebotenen Doppelhaushälft verfügt über folgende bemerkenswerte Austattungsmerkmale:
Nabízený poloduplex disponuje následujícími pozoruhodnými vybaveními:
- familienfreundliche und sehr ruhige Wohnlage (eine Riesenwiese vor dem Haus begehbar aus dem Garten). Auf der Wiese darf laut Bebauungsplan nichts gebaut werden.
- rodinně přívětivá a velmi klidná lokalita (přímo před domem se nachází obrovská louka přístupná z zahrady). Podle územního plánu nesmí být na louce nic stavěno.
- moderne Großküchen mit Elektrogeräten
- moderní velké kuchyně s elektrickými spotřebiči
- Kamin
- krb
- Gartensauna
- venkovní sauna
- Photovoltaikanlage 10KW mit Speicher
- fotovoltaická elektrárna 10 kW s úložištěm
- LAN & TV-Anschluss in jedem Schlafzimmer und Wohnzimmer, Vodafone-Anschluss mit 1000 MB/s vorhanden (aktuell die schnellste Internet-Leitung)
- LAN a TV přípojka v každé ložnici a obývacím pokoji, připojení Vodafone s 1000 MB/s (aktuálně nejrychlejší internetové připojení)
- Satellitenschüssel
- satelitní parabola
- Insektenschutzgitter in fast jedem Zimmer
- síťky proti hmyzu téměř ve všech pokojích
- gemütlicher Balkon und Terrasse
- útulný balkon a terasa
- elektrische Rollläden an allen Fenstern
- elektricky ovládané rolety na všech oknech
- dreifach-verglaste weiße Fenster
- trojitě zasklená bílá okna
- Fußbodenheizung in allen Räumen
- podlahové vytápění ve všech místnostech
- hochwertiger Laminat im Wohn- und den Schlafzimmern sowie Küche
- kvalitní laminát v obývacím pokoji, ložnicích a kuchyni
- moderne Fliesen in Bädern
- moderní dlaždice v koupelnách
- schöne Treppe mit hochwertigen Holz-Stufen
- hezký schodiště s kvalitními dřevěnými schody
- hochwertige Türen und Türzargen (weiß)
- kvalitní dveře a obložení (bílé)
- hohe Decken mit Holzbalken
- vysoké stropy s dřevěnými trámy
- moderne Luft-Wärme-Pumpe für wohlige Wärme und warmes Wasser (hier wird Energieeffizienz großgeschrieben)
- moderní vzduch-vodní tepelné čerpadlo pro útulné teplo a teplou vodu (zde se klade velký důraz na energetickou účinnost)
Achtung: Der angegebene Preis ist für eine Doppelhaushälfte.
Pozor: Uvedená cena se vztahuje k jednomu poloduplexu.
Die andere Doppelhaushälfte steht ebenfalls zum Verkauf.
Druhý poloduplex je rovněž na prodej.
Parametry nemovitosti
| Stáří | Nad 50 let |
|---|---|
| Stav | Velmi dobrý |
| PENB | A - Mimořádně úsporná |
| Plocha pozemku | 432 m² |
| Cena za jednotku | 5 167 € / m2 |
| Dostupné od | 1. 3. 2026 |
|---|---|
| Číslo inzerátu | 963227 |
| Užitná plocha | 240 m² |
| Celkem podlaží | 3 |
Co tato nemovitost nabízí?
| Sklep | |
| Parkování | |
| Terasa |
| MHD 2 minuty pěšky |
V okolí nemovitosti najdete
Stále hledáte to pravé?
Nastavte si hlídacího psa. Nabídky vybrané na míru dostanete souhrnně 1× denně e-mailem. S Premium profilem máte k ruce hlídačů rovnou 5 a když se něco objeví, informují vás obratem.
































