
Prodej bytu 3+1 • 90 m² bez realitky, Hessen
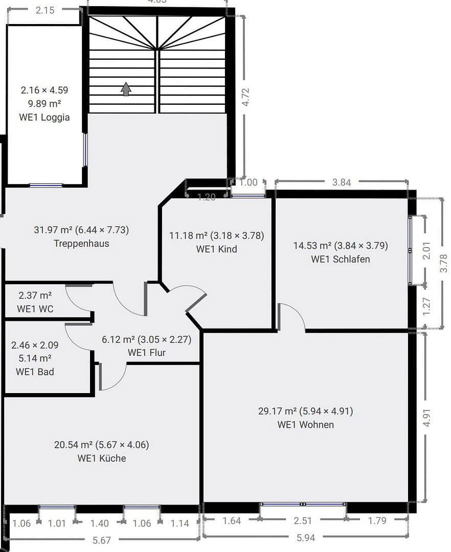
, HessenMHD 2 minuty pěškyNa prodej je krásný a světlý 3-pokojový byt (ve 2. patře) v Schöneck-Büdesheim, umístěný v domě se šesti bytovými jednotkami.
Byt je v současné době pronajatý, ale může být krátkodobě předán prázdný a je vhodný pro vlastní užití. Současné nájemné činí 700 € měsíčně – existuje vysoký potenciál pro zvyšování nájemného, protože obvyklá cena v regionu je 11,50–12,00 € za m².
Žádáme, aby nás kontaktovali pouze zájemci, kteří mají zajištěné financování, tj. s bankou nebo finančním poradcem již proběhly odpovídající rozhovory a úvěrová způsobilost/nečistý příjem postačuje pro financování nemovitosti.
Bez provize – přímo od majitele!
Poptávky od makléřů nejsou žádoucí a nebudou zodpovězeny!
Schöneck se nachází u železniční tratě Bundesbahn spojující Frankfurt/M, Bad Vilbel – Stockheim. Nádraží Büdesheim je dosažitelné pěšky během 5 minut. Vzdálenost do centra Frankfurtu činí přibližně 15 km.
Základní škola a školka jsou v pěší dostupnosti (300–400 m). Rozmanitý výběr obchodů pro každodenní potřeby, několik supermarketů, 5 řeznictví, 4 pekárny, sociální zařízení jako jesle a školy, lékaři a bohatá nabídka volnočasových a kulturních aktivit patří k vybavení rostoucí a živé obce Schöneck.
• Vestavěná kuchyň
• Parkety/laminát
• Balkon
• Hostinská toaleta
• Půda
Prosím, žádné makléřské poptávky!
V okolí nemovitosti najdete
Stále hledáte to pravé?
Nastavte si hlídacího psa. Nabídky vybrané na míru dostanete souhrnně 1× denně e-mailem. S Premium profilem máte k ruce hlídačů rovnou 5 a když se něco objeví, informují vás obratem.










