
Prodej domu • 159 m² bez realitkyLechenicher Straße 2, , Severní Porýní-Vestfálsko
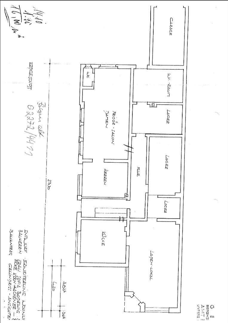
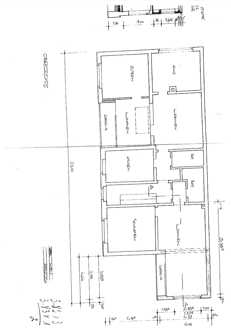
Lechenicher Straße 2, , Severní Porýní-VestfálskoMHD 1 minuta pěšky • Parkování • GarážJedná se o obytný a komerční dům v centrální části Bergheimu, Lechenicher Straße 2. Budova, postavená v roce 1950, zaujme svou solidní konstrukcí a dobrou obsazeností. Nabízí celkovou plochu cca 278 m² na pozemku o rozloze cca 404 m².
Přízemí zahrnuje dva dobře viditelné obchodní prostory s celkovou plochou cca 119 m². Výkladní okna poskytují ideální možnosti prezentace a zajišťují vysokou frekvenci zákazníků. Na horních patrech se nacházejí tři obytné jednotky s celkovou obytnou plochou cca 159 m² – dvoupokojový, třípokojový a jednopokojový byt s kuchyní a koupelnou.
Všechny jednotky jsou v současnosti pronajaty a zajišťují roční příjem z nájmu ve výši cca 37 000 €. Objekt se tak výborně hodí jako výnosná investice s stabilním příjmem. Topení je zajištěno pomocí centrálního plynového systému.
Budova je částečně sklepněná, což poskytuje dodatečnou využitelnou plochu. Za domem jsou k dispozici garáž a několik parkovacích míst pro automobily.
Poznámka:
K objektu jsou k dispozici dva oddělené energetické štítky – jeden energetický štítek pro obytnou část a druhý pro komerčně využívanou plochu. Oba štítky je možné si prohlédnout v případě zájmu. V inzerátu je uložen energetický štítek pro obytnou část.
Lokalita na ulici Lechenicher Straße se vyznačuje dobrou dostupností, zavedenou infrastrukturou a stabilní poptávkou po obytných a komerčních prostorách. Obchody, gastronomie, veřejná doprava a centrum města jsou dosažitelné pěšky.
Parametry nemovitosti
| Stáří | Nad 50 let |
|---|---|
| PENB | G - Mimořádně nehospodárná |
| Plocha pozemku | 404 m² |
| Cena za jednotku | 4 082 € / m2 |
| Číslo inzerátu | 963934 |
|---|---|
| Užitná plocha | 159 m² |
| Celkem podlaží | 2 |
Co tato nemovitost nabízí?
| Garáž | |
| Parkování |
| MHD 1 minuta pěšky |
V okolí nemovitosti najdete
Stále hledáte to pravé?
Nastavte si hlídacího psa. Nabídky vybrané na míru dostanete souhrnně 1× denně e-mailem. S Premium profilem máte k ruce hlídačů rovnou 5 a když se něco objeví, informují vás obratem.






