
Prodej domu 4+1 • 170 m² bez realitky, Dolní Sasko
Tento šarmantní dům se slámovou střechou se nachází v srdci Luhmühlen.
V roce 2007 byl dům přeměněn z dvojdomu na rodinný dům. Půdorys byl změněn a vznikly prostorné, rodinně orientované místnosti.
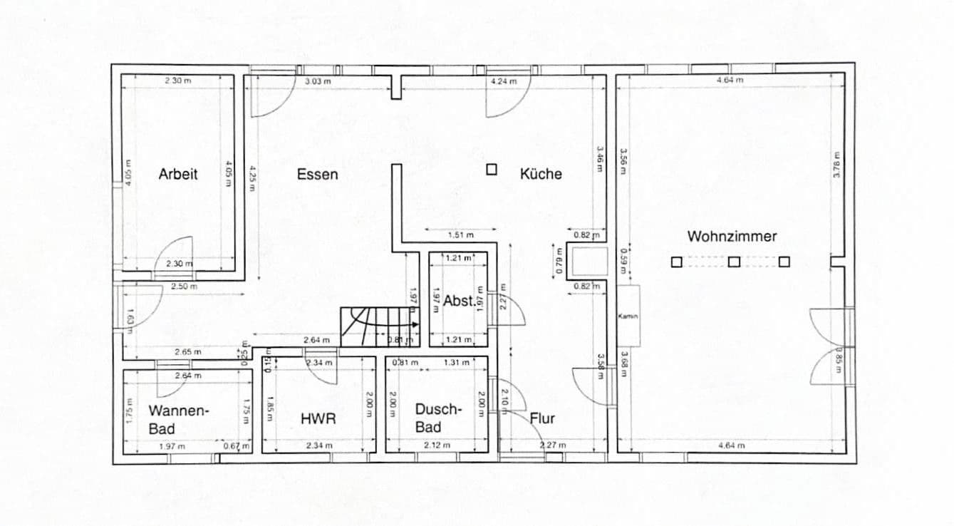
Uprostřed domu se nachází jeho srdce – velká obytná kuchyně. V roce 2018 byla zcela nově instalována vestavěná kuchyň v jemně zelené barvě, která nabízí velké úložné prostory. Odtud se dostanete přímo na jižní terasu a do krásné zahrady.
Kuchyň je vybavena sporákem s indukční deskou, myčkou a lednicí. Domácí hospodářská místnost poskytuje dostatek místa pro mrazák, pračku a sušičku.
V přízemí se nachází nádherná široká podlaha z dubových prken, s výjimkou koupelen a obývacího pokoje (kde jsou dlaždice a laminát). Ve většině přízemí, kromě obývacího pokoje, je podlahové vytápění.
Jak sprchový kout, tak vana jsou světlé a moderní.
Na šikmé straně domu směrem na západ se nachází velký a útulný obývací pokoj s krbem. Zde byla částečně instalována stěna až k podlaze.
Další malý pokoj, který je momentálně využíván jako šatna, se nachází na straně východní.
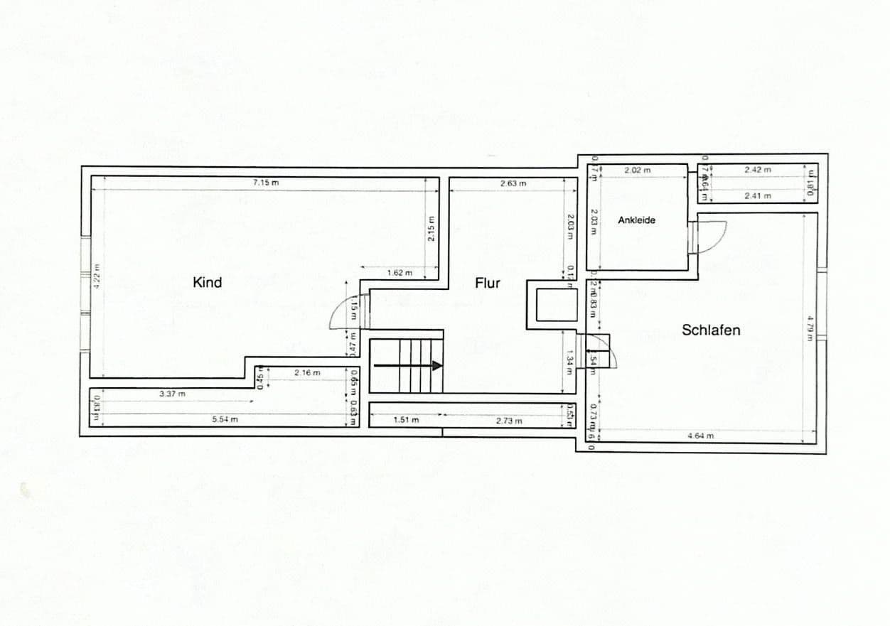
Přes hezké dřevěné schody se dostanete do patra, kde se nacházejí ještě další dvě prostorná místa a velká chodba. V patře jsou instalovány radiátory.
Na zahradě stojí dřevěná sauna, která byla postavena přibližně před sedmi lety.
Celý pozemek je oplocený. Na střeše se nachází bleskosvod.
Na začátku roku 2023 byl dům dodatečně vybaven alarmovým systémem. Na konci roku 2023 byla instalována nová plynová topení. Na začátku roku 2024 byla postavena velká nová krytá garáž (carport) se třemi parkovacími místy, malou místností pro odpadkové kontejnery a velkou místností pro zahradní nářadí a zahradní nábytek. Na začátku roku 2025 byla slámová střecha omítnuta a opravena.
Dům není chráněný jako památková rezervace.
Luhmühlen je malá venkovská obec, která patří do správní oblasti Salzhausen.
Centrum obce je vzdálené přibližně 2 km a nabízí mnoho nákupních možností, několik malých obchodů, lékaře i lékárny. Nedaleko na kole se nachází také venkovní bazén.
Salzhausen má školní centrum se základní a střední školou a také gymnázium.
Pro milovníky jízdy na koni je v Luhmühlen k dispozici AZL a několik dalších stájí, které jsou rovněž dostupné na kole.
V okolí nemovitosti najdete
Stále hledáte to pravé?
Nastavte si hlídacího psa. Nabídky vybrané na míru dostanete souhrnně 1× denně e-mailem. S Premium profilem máte k ruce hlídačů rovnou 5 a když se něco objeví, informují vás obratem.




















