
Pronájem bytu 2+1 • 44 m² bez realitkyHermine-von-Parish-Str. 49 München Obermenzing Bayern 81245
Hermine-von-Parish-Str. 49 München Obermenzing Bayern 81245MHD do minuty pěšky • Výtah • GarážVítejte ve vašem novém domově.
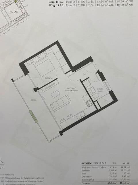
Tento okouzlující a klidně situovaný 2-pokojový byt ve 6. patře nabízí vše, po čem si srdce troufne. S přibližně 44 m² obytné plochy na vás čeká promyšlená dispozice s jednou ložnicí a otevřeným obývacím prostorem spojeným s kvalitně vybavenou vestavěnou kuchyní. Zvláštní pozornost si zasluhují podlahová okna a strop o výšce přibližně 2,60 m, které bytu dodávají světlou a vzdušnou atmosféru. Elektrické lamelové žaluzie v obývacím pokoji, ložnici i koupelně zajišťují komfort a soukromí. Celý byt je navíc vybaven podlahovým vytápěním.
Skutečným lákadlem je přibližně 10 m² velký západní balkon s výhledem do vnitřního nádvoří – při jasném počasí si dokonce můžete vychutnat výhled až na alpské masivy – ideální pro poklidné večery. Nabídku doplňuje koupelna s denním světlem, ze které vede bezbariérová sprcha, velký sklepní prostor, individuální parkovací místo v podzemní garáži a společná střešní terasa.
Prohlídky jsou možné od 03.12.2025. Lokalita zaujme svou blízkostí k parku zámku Nymphenburg, řece Würm a několika jezerům – ideálně pro procházky, běhání nebo prosté relaxování v přírodě.
Doprava a infrastruktura:
- Rychlé spojení s dálnicemi A8 a A99
- Veřejná doprava (autobus, S-Bahn, tramvaj) v bezprostřední blízkosti; autobusová zastávka se nachází přímo před domem
- Možnost nákupu, kavárny, škola a vše potřebné pro každodenní život v bezprostředním okolí
Vybavení:
- Přibližně 44 m² obytné plochy
- Dubový parket ve všech obytných místnostech
- Nová, kvalitní vestavěná kuchyň s odsavačem vzduchu, myčkou nádobí a dalším vybavením
- Integrovaný jídelní kout v kuchyni, který je ideální i jako pracovní prostor díky dalším zásuvkám
- Koupelna s denním světlem a oknem směřujícím k atriu
- Bezbariérová sprcha s připojením pro pračku
- Společná střešní terasa
- Prostorný sklep
- Individuální parkovací místo v podzemní garáži
- Oddělená místnost pro kola
- Výtah
Tento byt je ideální pro jednotlivce či páry a představuje perfektní útočiště pro všechny, kteří si cení kvality a komfortu.
Doplňující informace: postupné zvyšování nájemného – každé dva roky zvýšení základního nájemného o 50 EUR
Máte-li zájem, můžeme již nyní sjednat termín prohlídky na 03.12.2025. Těšíme se, až vás poznáme jako nového potenciálního nájemce či nájemkyni.
V okolí nemovitosti najdete
Stále hledáte to pravé?
Nastavte si hlídacího psa. Nabídky vybrané na míru dostanete souhrnně 1× denně e-mailem. S Premium profilem máte k ruce hlídačů rovnou 5 a když se něco objeví, informují vás obratem.


















