
Pronájem bytu 2+1 • 90 m² bez realitkyGrüne Aue 1, , Bádensko-Württembersko
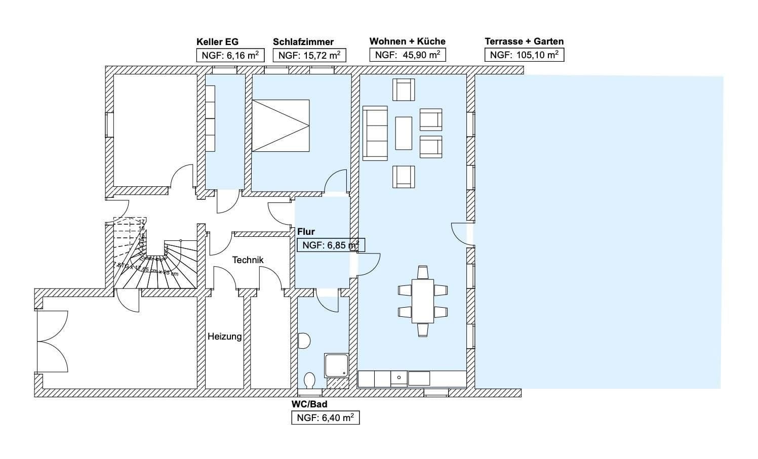
Grüne Aue 1, , Bádensko-WürttemberskoMHD 3 minuty pěšky • ParkováníByt se nachází v budově, která byla v roce 2025 kompletně zrekonstruována a kompletně renovována. Přízemní byt byl přizpůsoben potřebám seniorů (jen malý schod k terase). Koupelna je nově obložena dlaždicemi a vybavena sprchovým koutem. Prostorný obývací a jídelní pokoj s otevřenou kuchyní nabízí mnoho prostoru pro individuální úpravy. Kromě ložnice je k dispozici také skladovací místnost. Byt je vytápěn ústředním olejovým topením.
Nemovitost se nachází v centrální části Aglasterhausenu, přímo v centru města a přesto v zelené oblasti. Bytový komplex „Grüne Aue“ se nachází přímo u Bahnhofstraße, což zajišťuje vynikající dostupnost. Příměstská stanice S-Bahn Aglasterhausen je dosažitelná pěšky během několika minut a nabízí přímé spojení do Mosbachu a Heidelbergu.
V nedalekém Oberen Tal najdete četné možnosti nákupů, včetně supermarketů, pekáren a lékáren. Také lékaři, školy a mateřské školky se nachází v bezprostřední blízkosti. Okolí se zelenými loukami a procházkovými stezkami zve k odpočinku na čerstvém vzduchu.
Důležité: Byt se pronajímá bez kuchyně!
V okolí nemovitosti najdete
Stále hledáte to pravé?
Nastavte si hlídacího psa. Nabídky vybrané na míru dostanete souhrnně 1× denně e-mailem. S Premium profilem máte k ruce hlídačů rovnou 5 a když se něco objeví, informují vás obratem.










