
Pronájem bytu 2+kk • 55 m² bez realitkyČakovická, Praha - Prosek
Máte o nabídku zájem?
Ušetřete 25 000 Kč na provizi a komunikujte se všemi majiteli.
Nabízím ke svému pronájmu nový, moderní a útulný byt 2+kk, který se nachází v novostavbě předané k užívání v říjnu 2025.
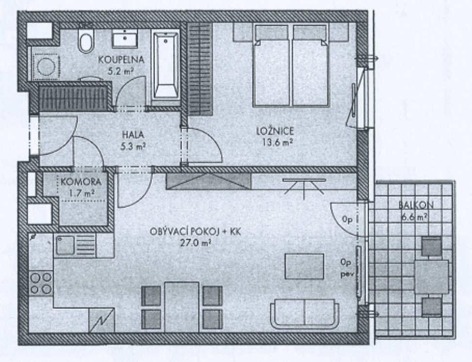
Byt o rozloze 55 m² se nachází v pětipodlažní budově na 5. podlaží s výtahem, což zaručuje pohodlný přístup. Nemovitost je vybavená kuchyňskou linkou se všemi spotřebiči (vestavěná lednice, trouba, mikrovlnná trouba, indukční deska a myčka).
Dále je ve vstupní hale umístěna na míru vyrobená vestavěná skříň.
Prostorná koupelna disponuje pračkou i topným žebříkem.
V bytě se dále nachází i prostorná komora, kterou lze využít např. jako šatnu.
Byt dále disponuje prostornou terasou o výměře 7 m², s výhledem do zeleně, kde se můžete těšit na chvíle odpočinku za čerstvého vzduchu, a také sklepem o rozloze 6 m², který poskytuje dostatek prostoru pro úložné potřeby.
K bytu náleží garážové stání, což je v Praze obecně velké plus. Garážové stání je možno pronajmout za 2 500 Kč / měsíc.
Ohledně nákladů na energie a další provozní náklady Vám rádi poskytneme více informací. Náklady na bydlení činí 4 500 Kč, přičemž elektřina je hrazena přímo nájemníkem.
Výborná dopravní dostupnost – metro C Prosek 7
minut chůze, metro B je dostupné 1 zastávku
autobusem. V okolí kompletní občanská vybavenost
(obchody, restaurace, parky).
V případě zájmu mě neváhejte kontaktovat a domluvíme si prohlídku, během které si můžete osobně ověřit výjimečnost tohoto bytu.
Byt je připraven k nastěhování ihned.
Podmínky:
Nájemné: 25 000 Kč/ měs.
Nájemné garážové stání: 2 500 Kč/ měs.
Poplatky: 4.500 Kč
Vratná kauce: 50.000 Kč
Volný k nastěhování: ihned
V okolí nemovitosti najdete
Máte o nabídku zájem?
Ušetřete 25 000 Kč na provizi a komunikujte se všemi majiteli.
Stále hledáte to pravé?
Nastavte si hlídacího psa. Nabídky vybrané na míru dostanete souhrnně 1× denně e-mailem. S Premium profilem máte k ruce hlídačů rovnou 5 a když se něco objeví, informují vás obratem.

















