
Pronájem bytu 3+1 • 86 m² bez realitkyGoethestr. 4, , Dolní Sasko
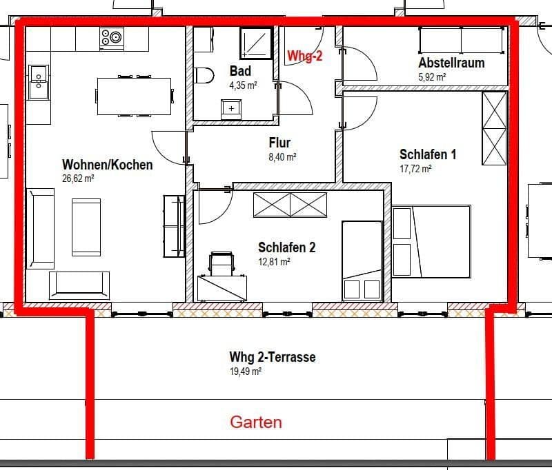
Goethestr. 4, , Dolní SaskoMHD 1 minuta pěšky • Výtah • ParkováníK pronájmu je světlý a moderní 3+kk byt v přízemí nově postaveného bytového domu v Sarstedtu.
Velkorysý, otevřený obývací a jídelní prostor s dostatkem denního světla a vlastním zahrádkou.
Dvě ložnice – ideální pro páry nebo home office.
Kvalitní koupelna s bezzdvižovým sprchovým koutem.
Kuchyň může být v případě zájmu odkoupena od předchozího nájemce.
V případě zájmu prosím kontaktujte s uvedením jména a telefonního čísla.
Byt je určen pro jednotlivce nebo páry, tedy max. 2 osoby.
Měli byste být zaměstnaní a schopní hradit nájemné sami.
Domácí zvířata nejsou v domě vítána.
Byt bude k dispozici od 01.03.2026.
Byt se nachází v klidné, ale centrální lokalitě v Sarstedtu. Obchody, školy, lékaři a veřejná doprava jsou dostupné během několika minut. Dobré napojení na Hannover a Hildesheim.
Infrastruktura (v okruhu 5 km):
Lékárna, diskont potravin, praktický lékař, mateřská školka, základní škola, hlavní škola, střední škola, gymnázium, kombinovaná škola
Balkón, výtah, sprchová koupelna, bezbariérový přístup, dlažba
Poznámky:
Vybavení bytu/ budovy:
- KFW 40 nízkoenergetický dům
- Podlahové topení
- Elektrické rolety
- Trojitě zateplená okna
- Bezzdvižné sprchy
- Videointerkom
- Tepelná čerpadla
- Výtah
- Vlastní vyrobená solární energie – zvýhodněný model pronájemního elektřiny
- Parkovací stání pod přístřeškem s přípravou pro vlastní nabíjecí stanici pro elektromobily
- Úložiště pro kola s oddělenou zásuvkou pro elektrokola
- Bezklicový vstup do budovy
- Připojení na optickou síť (v případě potřeby si můžete za zvýhodněnou cenu pronajmout internet od pronajímatele)
- Předinstalované LED osvětlení ve všech místnostech
- Podlahové krytiny v koupelně obklopené dlažbou, v ostatních místnostech kvalitní vinylová podlaha.
V okolí nemovitosti najdete
Stále hledáte to pravé?
Nastavte si hlídacího psa. Nabídky vybrané na míru dostanete souhrnně 1× denně e-mailem. S Premium profilem máte k ruce hlídačů rovnou 5 a když se něco objeví, informují vás obratem.




















