
Prodej domu • 216 m² bez realitkyKlammweg 11b Karlsruhe Neureut Baden-Württemberg 76149
Klammweg 11b Karlsruhe Neureut Baden-Württemberg 76149MHD do minuty pěškyNabízený dům pro 3 rodiny byl postaven v roce 1962 na pozemku o rozloze 219 m². V uplynulých letech již proběhla energetická rekonstrukce včetně izolace fasády a nové střechy. Díky současné poloze, která kombinuje městskou dostupnost a přírodní prostředí v Neureut-Heide, se nemovitost hodí k pronájmu rodinám, párům, jednotlivcům i studentům.
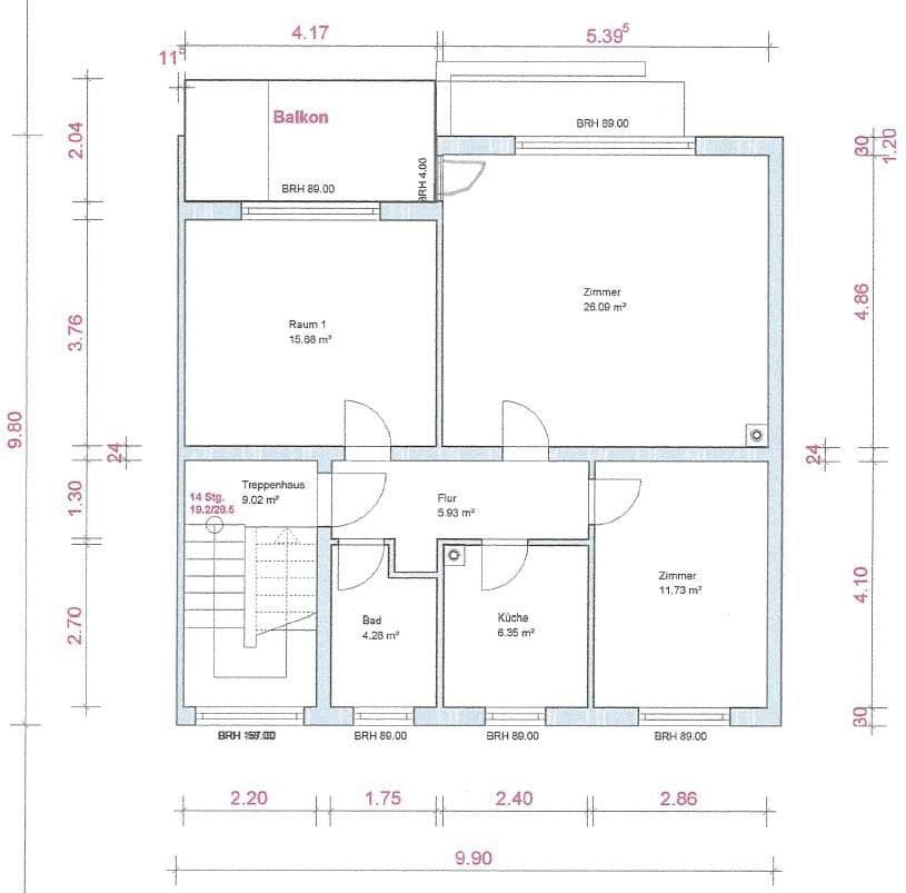
Obytná plocha činí 216,36 m².
Dělí se na tři obytné jednotky následovně:
• Přízemí: 74,31 m² obytné plochy, 3-pokojový byt s kuchyní, koupelnou a balkonem se vstupem do zahrady
• Patro: 74,31 m² obytné plochy, 3-pokojový byt s kuchyní, koupelnou a balkonem
• Půda: 67,74 m² obytné plochy, 3-pokojový byt s kuchyní, koupelnou a balkonem
Všechny tři obytné jednotky jsou pronajaty.
Aktuální roční čistý nájem činí 24 816,00 €. To odpovídá průměrnému nájmu 9,69 € za m² měsíčně. Díky tomu je zde stále značný potenciál pro další navyšování nájmů v nadcházejících letech.
Dům se nachází ve velmi výhodné lokalitě s perfektní dopravní dostupností v karlsruheské čtvrti Neureut-Heide. Tramvajová zastávka Neureut-Heide je vzdálena pouhých 300 m.
Na pozemku se nenacházejí žádná parkovací místa pro automobily, avšak v bezprostředním okolí je k dispozici dostatek veřejných parkovacích míst.
Všechny možnosti nákupu a městská infrastruktura (lékaři, školy, školky, ...) jsou dosažitelné během několika minut.
Pro relaxaci je k dispozici Heidesee, kde si můžete po náročném dni odpočinout pěknou procházkou.
Nemovitost se vyznačuje velmi dobrou konstrukcí a je ve vynikajícím, pečlivě udržovaném stavu na skvělé poloze.
Dům je kompletně zpodzemněný. Každý pronajatý byt má vlastní sklep, navíc je k dispozici společně užívaná prádelna.
Krásná, tichá zahrada je v současné době užívána nájemnicí bytu v přízemí.
Před budovou se na pozemku nachází dostatek cyklostání pro všechny obyvatele.
Majitel nemovitost neustále udržoval v perfektním stavu a všechny potřebné investice již provedl.
Podrobnosti o rekonstrukcích a modernizacích:
Byt v přízemí (2015):
• Modernizace koupelny (nové vodovodní a elektrické vedení, obklady stěn a podlah, sanitární vybavení, ruční ohřívače)
• Ložnice, chodba a obývací pokoj s kvalitními třívrstvými parketovými podlahami
• Ložnice a obývací pokoj s novými radiátory
• Všechny místnosti s novými okny, částečně až k podlaze
Byt v patře (2011):
• Modernizace koupelny (nové vodovodní a elektrické vedení, obklady stěn a podlah, sanitární vybavení, ruční ohřívače)
• Všechny místnosti s novými okny
Byt v půdním prostoru (novostavba z roku 2013):
• Nová střešní konstrukce s izolací a novým krytinovým materiálem
• Nový balkon
• Podlahy z masivního dřeva ve všech místnostech
• Obnova vnitřních stěn, koupelny, radiátorů a elektrické a vodovodní instalace
• Montáž nových oken
Další modernizace:
• 2020: Montáž nové plynové kondenzace
• 2024: Izolace fasády a sklepního stropu; výměna rolet za venkovní rolety
• 2024: Rekonstrukce balkónu v přízemí a patře
Energetický průkaz: Potřebový průkaz platný do 22. 8. 2035
Konečná energetická potřeba: 106,7 kWh/(m²a)
Hlavní zdroj energie: plyn
Energetická třídní: D
Parametry nemovitosti
| Stáří | Nad 50 let |
|---|---|
| Číslo inzerátu | 967990 |
| Užitná plocha | 216 m² |
| Celkem podlaží | 3 |
| Stav | Dobrý |
|---|---|
| PENB | D - Méně úsporná |
| Plocha pozemku | 219 m² |
| Cena za jednotku | 3 421 € / m2 |
Co tato nemovitost nabízí?
| MHD 0 minut pěšky |
V okolí nemovitosti najdete
Stále hledáte to pravé?
Nastavte si hlídacího psa. Nabídky vybrané na míru dostanete souhrnně 1× denně e-mailem. S Premium profilem máte k ruce hlídačů rovnou 5 a když se něco objeví, informují vás obratem.

















