
Pronájem bytu 3+kk • 71 m² bez realitkyNa Petřinách, Praha - Břevnov
Na Petřinách, Praha - BřevnovMHD 1 minuta pěšky • Částečně vybaveno • Balkón 4 m²Máte o nabídku zájem?
Ušetřete 25 000 Kč na provizi a komunikujte se všemi majiteli.
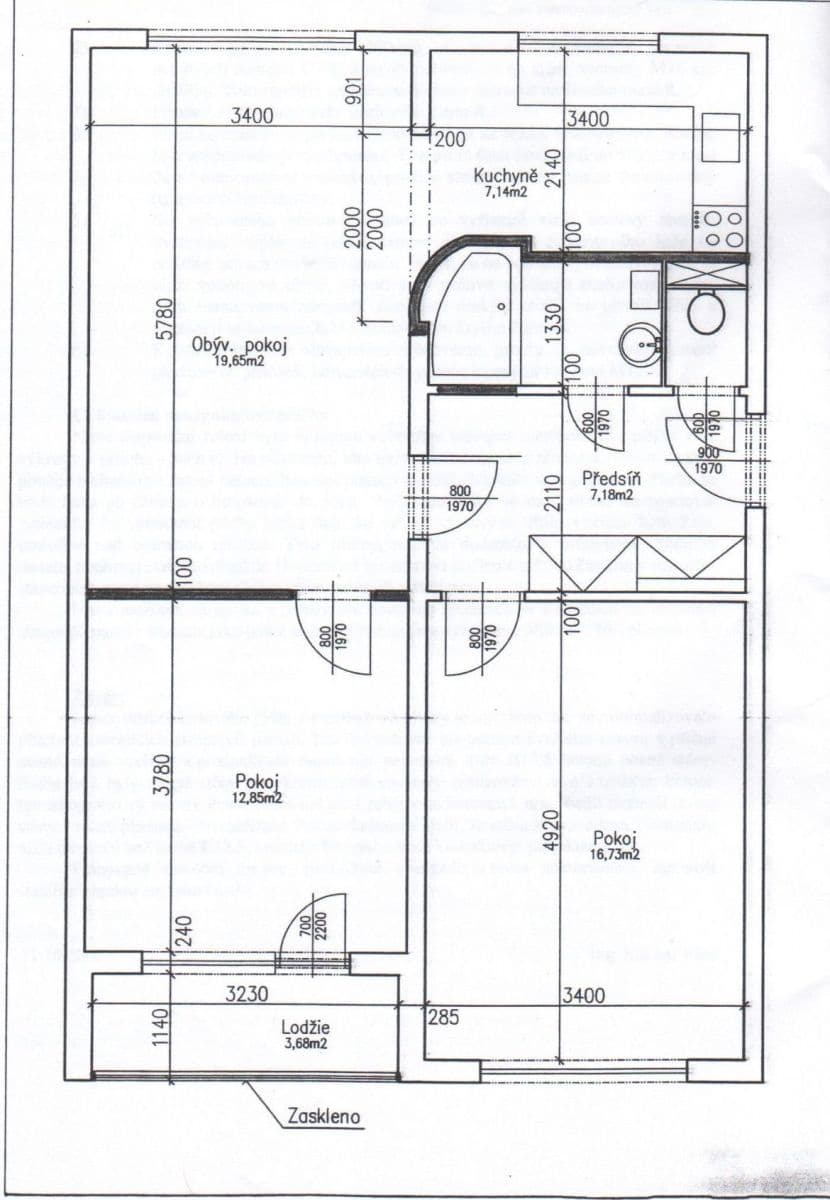
Nabízíme k pronájmu světlý tichý byt 3+kk po celkové rekonstrukci. Nachází se v panelovém domě ve zvýšeném přízemí . Byt o celkové obytné ploše 71 m² je částečně vybaven. Dispozice bytu nabízí kuchyni propojenou s obytným pokojem, dva samostatné pokoje, předsíň, záchod, koupelnu. K dispozici je zasklený balkon. Nájemné za byt činí 25 000 Kč, zálohová platba dle měsíčního předpisu pevných a zálohových plateb spojených s užíváním bytu je 5 900Kč (částka odpovídá 3 osobám v bytě, mírně se liší dle počtu bydlících osob). Energie - plyn, elektřina - možno přepsat na nájemce.
V případě zájmu mě prosím kontaktujte prostřednictvím zpráv na komunikační platformě Bezrealitky.cz
Parametry nemovitosti
| Dostupné od | 2. 12. 2025 |
|---|---|
| Konstrukce budovy | Panel |
| Vybaveno | Částečně |
| Vytápění | Ústřední |
| Vlastnictví | Osobní |
| Rekonstrukce | Kompletní |
| Užitná plocha | 71 m² |
| Stav | Velmi dobrý |
|---|---|
| Dispozice | 3+kk |
| Podlaží | 1. podlaží z 5 |
| Číslo inzerátu | 968219 |
| PENB | B - Velmi úsporná |
| Umístění | Sídliště |
| Cena za jednotku | 352 Kč / m2 |
Co tato nemovitost nabízí?
| Balkón 4 m² | |
| MHD 1 minuta pěšky |
V okolí nemovitosti najdete
Máte o nabídku zájem?
Ušetřete 25 000 Kč na provizi a komunikujte se všemi majiteli.
Stále hledáte to pravé?
Nastavte si hlídacího psa. Nabídky vybrané na míru dostanete souhrnně 1× denně e-mailem. S Premium profilem máte k ruce hlídačů rovnou 5 a když se něco objeví, informují vás obratem.

















