
Prodej bytu 3+kk • 76 m² bez realitkyTýřovická, Praha - Radotín
Využít program Bydlím hned, koupím později
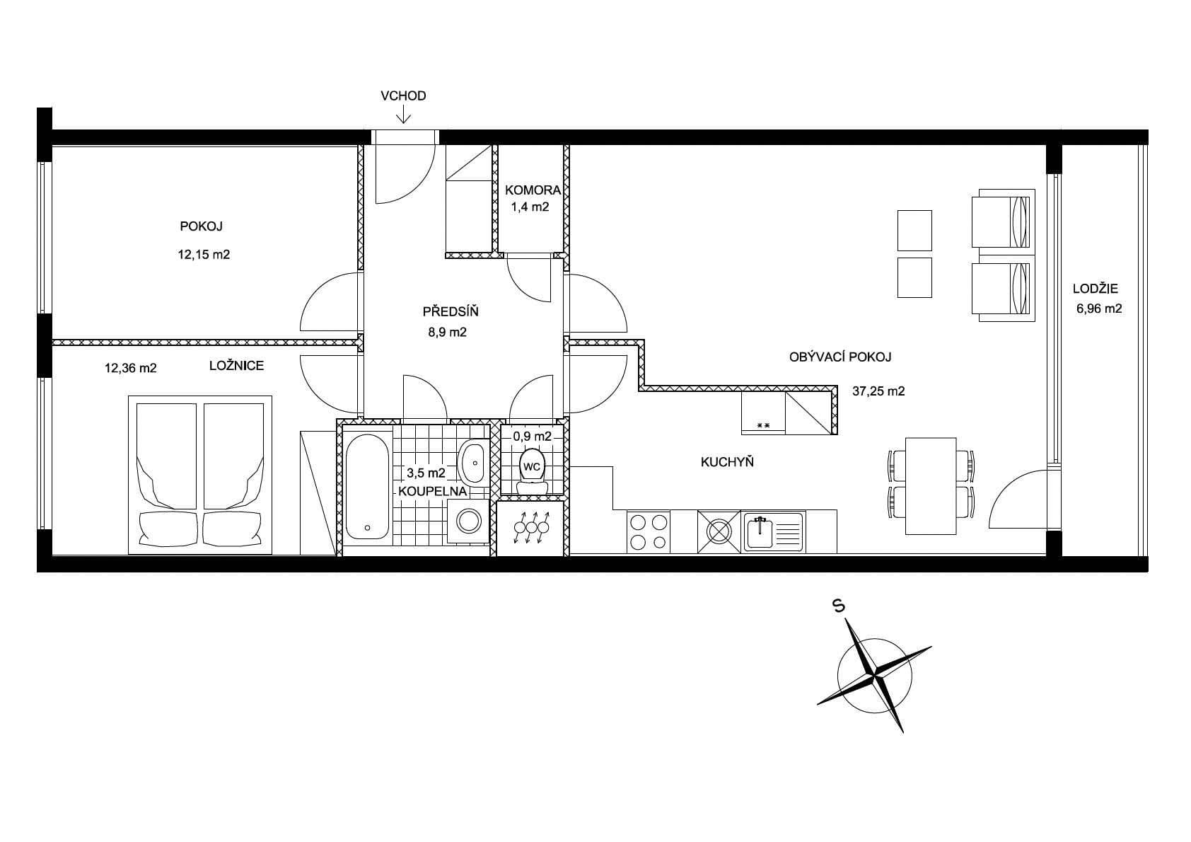
Nabízíme k prodeji světlý a prostorný byt 3+kk o velikosti 76,5 m² včetně vlastní plnohodnotné garáže v osobním vlastnictví.
Byt se nachází ve 2. patře čtyřpodlažního domu v klidné části Prahy – Radotíně. Dům prošel kompletní revitalizací (nový obvodový plášť, zasklená lodžie, nová střecha a vytápění tepelnými čerpadly) a je ve velmi dobrém stavu.
Dispozice bytu nabízí tři samostatné pokoje a kuchyňský kout, centrální chodbu s bezpečnostními dveřmi, koupelnu s vanou, samostatné WC a praktickou komoru. V celém bytě je vinylová podlaha. Díky velkým oknům je byt světlý, tichý a nabízí skvělý výhled.
K bytu náleží sklep, který poskytuje dostatek úložného prostoru.
Velikým benefitem je vlastní garáž (19,6m2) přímo v domě, která poskytuje nejenom pohodlné a bezproblémové parkování, ale i spoustu úložného prostoru.
Vzhledem k poloze domu je možné i bezproblémové parkování před domem.
V domě je také kočárkárna a přímo před domem oplocené dětské hřiště.
V docházkové vzdálenosti najdete školu, školku, polikliniku, obchody i sportovní areály, cyklostezku podél Berounky, plavecký bazén i koupaliště. V blízkosti je autobusová zastávka se spojením na Smíchovské nádraží a nedaleko se nachází také vlakové nádraží s výbornou dostupností do centra (Smíchov a Hlavní nádraží) Lokalita nabízí klid, výborné služby i přírodu v dosahu.
Prohlídky jsou možné po předchozí domluvě.
Pro více informací nás prosím kontaktujte.
Parametry nemovitosti
| Dostupné od | 26. 11. 2025 |
|---|---|
| Konstrukce budovy | Panel |
| Vybaveno | Částečně |
| Číslo inzerátu | 968505 |
| PENB | C - Úsporná |
| Užitná plocha | 76 m² |
| Cena za jednotku | 156 579 Kč / m2 |
| Stav | Velmi dobrý |
|---|---|
| Dispozice | 3+kk |
| Podlaží | 2. podlaží z 4 |
| Vlastnictví | Osobní |
| Umístění | Klidná část |
| Rizika | Prověřit » |
Co tato nemovitost nabízí?
| Sklep 3 m² | |
| Parkování |
| Garáž | |
| Lodžie 7 m² |
V okolí nemovitosti najdete
Využít program Bydlím hned, koupím později
Stále hledáte to pravé?
Nastavte si hlídacího psa. Nabídky vybrané na míru dostanete souhrnně 1× denně e-mailem. S Premium profilem máte k ruce hlídačů rovnou 5 a když se něco objeví, informují vás obratem.






















