
Pronájem bytu 2+kk • 54 m² bez realitkyAmbrožova, Praha - Žižkov
Máte o nabídku zájem?
Ušetřete 23 200 Kč na provizi a komunikujte se všemi majiteli.
Originální bydlení! Chcete zkusit bydlení v loftu?
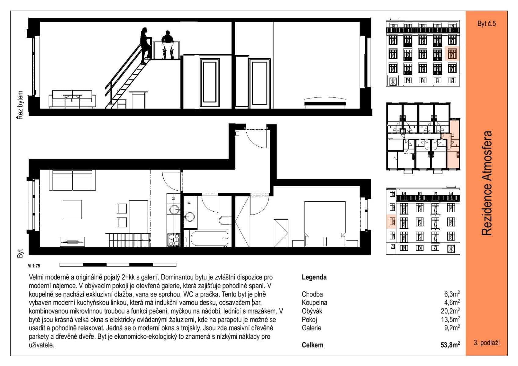
Přímý majitelé nabízí od 1. 2. 2026 nejpozději od 1. 3. 2026 k dlouhodobému pronájmu 2+kk s galerií v moderním areálu Rezidence Atmosféra s výhledem jak do ulice tak do klidného dvora. Krásný, velmi světlý prosluněný loft s velkými okny, o velikosti 2+kk s plochou 45 m² + galerie 9 m². Byt se nachází v 2. patře cihlového domu s možností pronájmu vlastního parkovacího stání ve vnitrobloku pod uzamčením za příplatek.
Při vstupu se nachází předsíň s místem pro zavěšení kabátů nebo prostorem na skříň. Dále se nachází koupelna s exkluzivní dlažbou, vanou se sprchou, pračkou a WC. Vcházíte do obývacího prostoru s krásným výhledem a moderní kuchyní se spotřebiči: indukční varnou deskou, odsavačem par, kombinovanou troubu a mikrovlnnou s funkcí pečení, myčkou na nádobí a lednicí s mrazákem. Nacházíte se ve velmi zajímavém obývacím prostoru s velkým oknem (trojsklo) a širokými parapety, které Vám umožní sedět u okna a nabízí tak krásný výhled, ale zároveň soukromí díky elektrickým žaluziím. Z obývacího pokoje je vstup na galerii po kovovém schodišti. Zde se nachází prostor pro Váši pracovnu, nebo kout pro relaxaci, čtení nebo co Vás osloví. Na straně do klidného dvora najdete útulnou ložnici s vysokým stropem a prostor pro šatní skříně. I tam najdete velké okno (trojsklo), které Vám přidá světlo.
Po celém bytě jsou masivní dřevěné parkety a dřevěné dveře.
Dům je ekonomicko-ekologický, to znamená s nízkými náklady pro uživatele. Provozní náklady jsou 3.500 Kč/měsíc včetně topení, vody a internetu. Výše záloh na elektřinu činí 1.200 Kč/měsíc Požadujeme kauci ve výši 2 nájmů.
Velká občanská vybavenost v okolí - restaurace, obchody, tramvaj (300 m), metro Jana Želivského (5 min.), obchodní centrum Flora (7 min.).
Pokud Vás tento byt zaujal, uvítáme krátkou informaci o Vás.
Parametry nemovitosti
| Dostupné od | 1. 2. 2026 |
|---|---|
| Konstrukce budovy | Cihla |
| Vybaveno | Částečně |
| Vytápění | Ústřední |
| Vlastnictví | Osobní |
| Rekonstrukce | Kompletní |
| Užitná plocha | 54 m² |
| Stav | Novostavba |
|---|---|
| Dispozice | 2+kk |
| Podlaží | 3. podlaží z 5 |
| Číslo inzerátu | 968555 |
| PENB | B - Velmi úsporná |
| Umístění | Klidná část |
| Cena za jednotku | 430 Kč / m2 |
Co tato nemovitost nabízí?
| Sklep 1 m² | |
| Parkování |
| Garáž | |
| Výtah | |
| MHD 1 minuta pěšky |
V okolí nemovitosti najdete
Máte o nabídku zájem?
Ušetřete 23 200 Kč na provizi a komunikujte se všemi majiteli.
Stále hledáte to pravé?
Nastavte si hlídacího psa. Nabídky vybrané na míru dostanete souhrnně 1× denně e-mailem. S Premium profilem máte k ruce hlídačů rovnou 5 a když se něco objeví, informují vás obratem.





















