
Prodej bytu 3+1 • 94 m² bez realitkySalzburg Gnigl Salzburg 5020
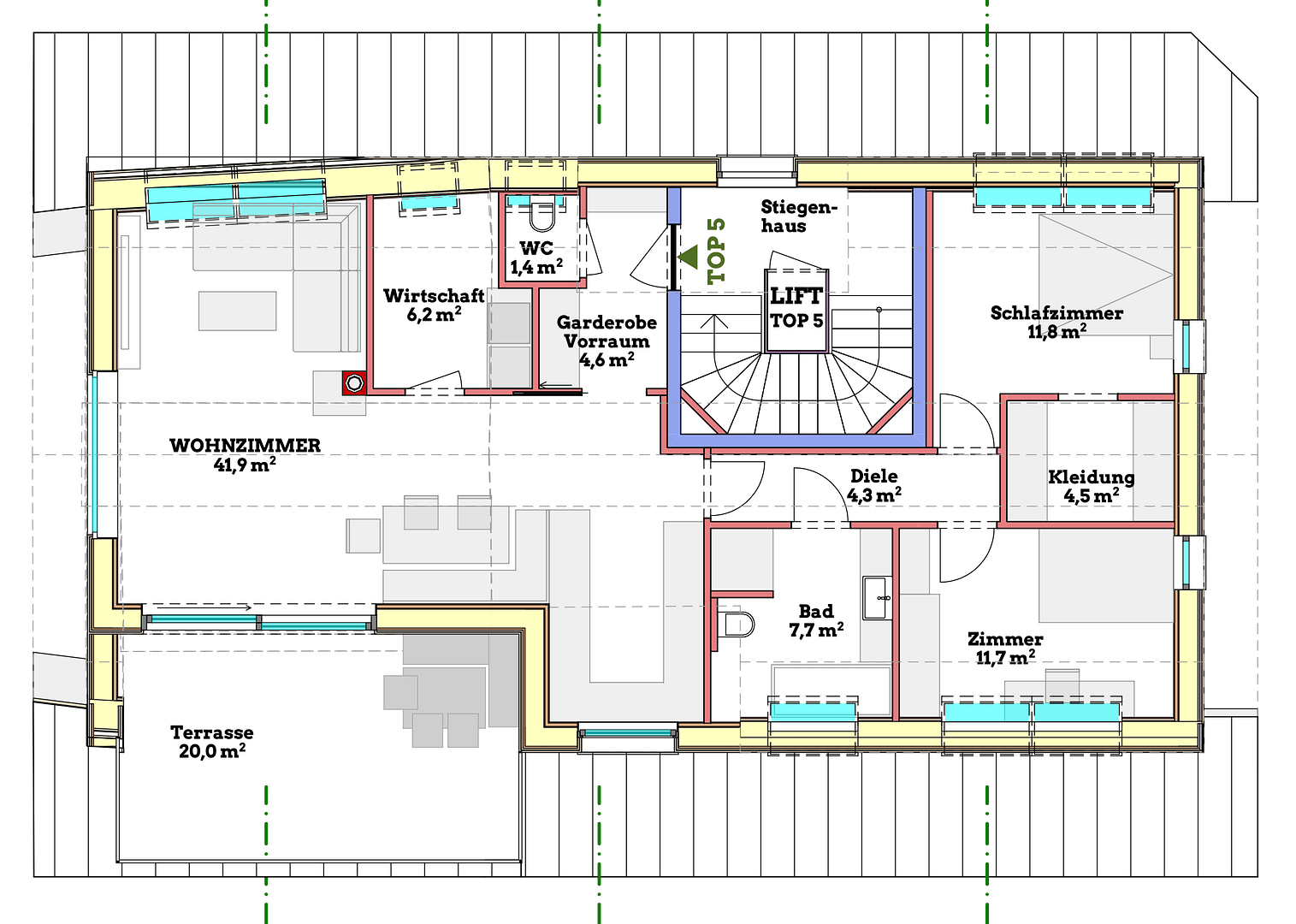
Salzburg Gnigl Salzburg 5020MHD do minuty pěškyPenthouse se rozkládá po celém podkrovním patře a kombinuje vysoké místnosti s prostornými okenními plochami. Střešní terasa je dokonale orientována na jihozápad a zaručuje uvolněné večerní hodiny s nádhernými západy slunce.
• Klidná poloha na severním okraji města
• Optimální dopravní spojení a blízkost centra
• Centrálně umístěno – všechny denní záležitosti lze vyřídit pěšky
• Vysoce kvalitní vybavení, např. podlahy z dubového dřeva značky Landausdiele
• Nejnižší náklady na vytápění díky modernímu topnému systému
Vítejte v Mayrwies – kouzelném předměstí na severním okraji Salzburgu.
• Centrální, ale klidná a slunná poloha
• Krátké vzdálenosti – všechny denní záležitosti lze vyřídit pěšky
• Zastávka autobusu OBus – 150 m
• Čerpací stanice – 120 m
• Řeznictví – 150 m
Více informací naleznete na naší webové stránce:
www.COCCON.at
Pro telefonické informace:
Christoph Stangl 0676 5867373
Více informací na www.coccon.at
Včetně animovaného virtuálního okruhového letu.
COCCON GMBH
Mayrwiesstraße 27
5300 Hallwang/Mayrwies
UID-Číslo: ATU 67841259
V okolí nemovitosti najdete
Stále hledáte to pravé?
Nastavte si hlídacího psa. Nabídky vybrané na míru dostanete souhrnně 1× denně e-mailem. S Premium profilem máte k ruce hlídačů rovnou 5 a když se něco objeví, informují vás obratem.








