Pronájem bytu 4+1 • 94 m² bez realitkyObing Pfaffing Bayern 83119
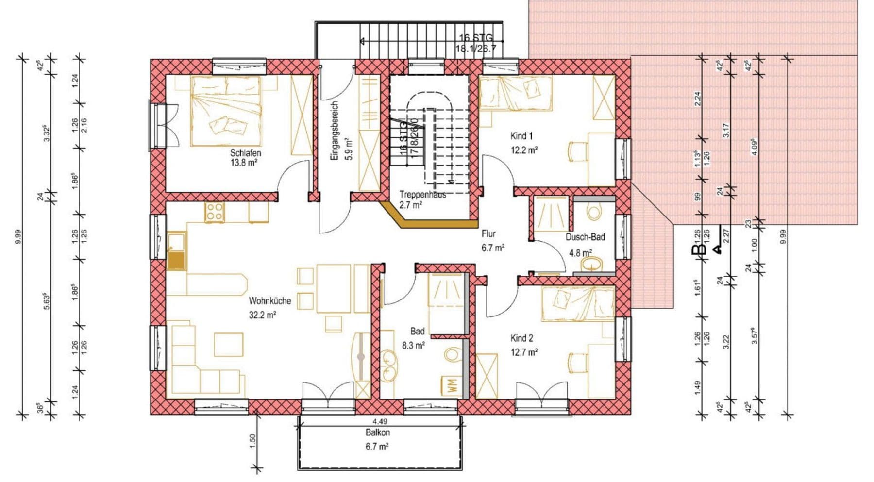
Obing Pfaffing Bayern 83119MHD do minuty pěšky • Parkování • GarážNabízí se pronájem kvalitního, moderního bytu se 4 pokoji v 1. patře novostavby (rok výstavby 2024) v klidné, venkovské lokalitě Obing / Pfaffing.
Byt zaujme svou energeticky efektivní konstrukcí (A+), prvotřídním vybavením, smart-home technologií, podlahovým topením a promyšleným uspořádáním místností.
Díky dvěma světlým koupelnám, každé se sprchou, je byt ideální pro flexibilní koncept bydlení.
Prostorný balkon láká k odpočinku, doplněný malou zahrádkou (cca 10 m², severní strana) – ideální pro rostliny, posezení nebo jako soukromý úkryt.
K dispozici je nájem garáže s dalším úložným prostorem na požádání. Další bezplatné parkovací místo v exteriéru je rovněž k dispozici.
⸻
Vybavení
• Vestavěná kuchyň již k dispozici
• Vinylová podlaha ve všech obytných místnostech
• 2 koupelny s oknem a sprchou
• Podlahové topení ve všech místnostech
• Smart-home systém
• Elektrická žaluzie v obývacím pokoji
• Elektrické rolety v ložnicích
• Úsporné geotermální tepelné čerpadlo
• Dostupný optický internet
• Balkon plus malá zahrádkav část
• Možnost uskladnění v garáži (pokud je pronajata)
⸻
Další informace
• Domácí zvířata: nejsou povolena
⸻
Energetický průkaz
• Druh: Průkaz energetické náročnosti
• Konečná energetická potřeba: 19,6 kWh/(m²·rok)
• Energetická účinnost: třída A+
• Zdroj energie: směs elektřiny (tepelná čerpadla)
• Rok výstavby dle průkazu: 2025
⸻
Nájemní podmínky
• Nájemné bez služeb: 1 220 € (13 €/m²)
• Provozní náklady: 250 € (včetně nákladů na topení)
• Kompletní nájemné: 1 470 €
• Kauce: 3 čisté nájmy
• Garáž s úložným prostorem (volitelně): 60 €/měsíc
(Možnost dodatečné instalace wallboxu)
K dispozici od: 01.02.2026
Byt se nachází v klidné části Pfaffing (obec Obing).
Venkovská, uvolněná lokalita s dobrou infrastrukturou:
• Nákupní možnosti a mateřská škola
• Dobrá autobusová dostupnost
• Bohaté přírodní prostředí, klidné obytné okolí
Vestavěná kuchyň
Lampy již instalovány
V okolí nemovitosti najdete
Stále hledáte to pravé?
Nastavte si hlídacího psa. Nabídky vybrané na míru dostanete souhrnně 1× denně e-mailem. S Premium profilem máte k ruce hlídačů rovnou 5 a když se něco objeví, informují vás obratem.

































