
Pronájem bytu • 57 m² bez realitkyKomunardů, Praha - Holešovice
Nájemné i poplatky platí pro pronájem na 10 měsíců. Tuto nabídku je však možné si pronajmout přes Flatio již od 1 měsíce. Administrativní poplatek je pro kratší pronájmy nižší. Pronájmy kratší než 6 měsíců jsou vždy bez kauce.
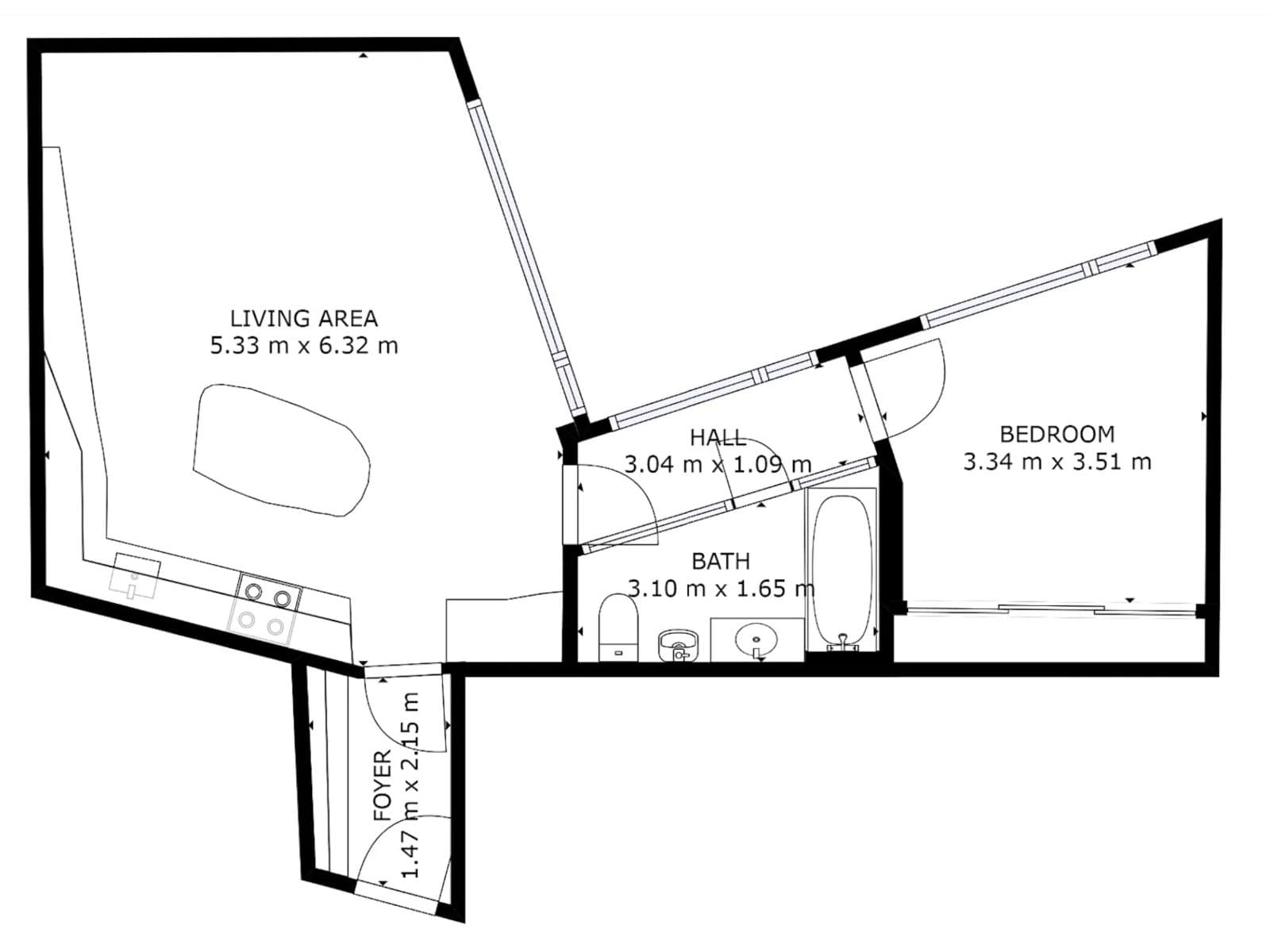
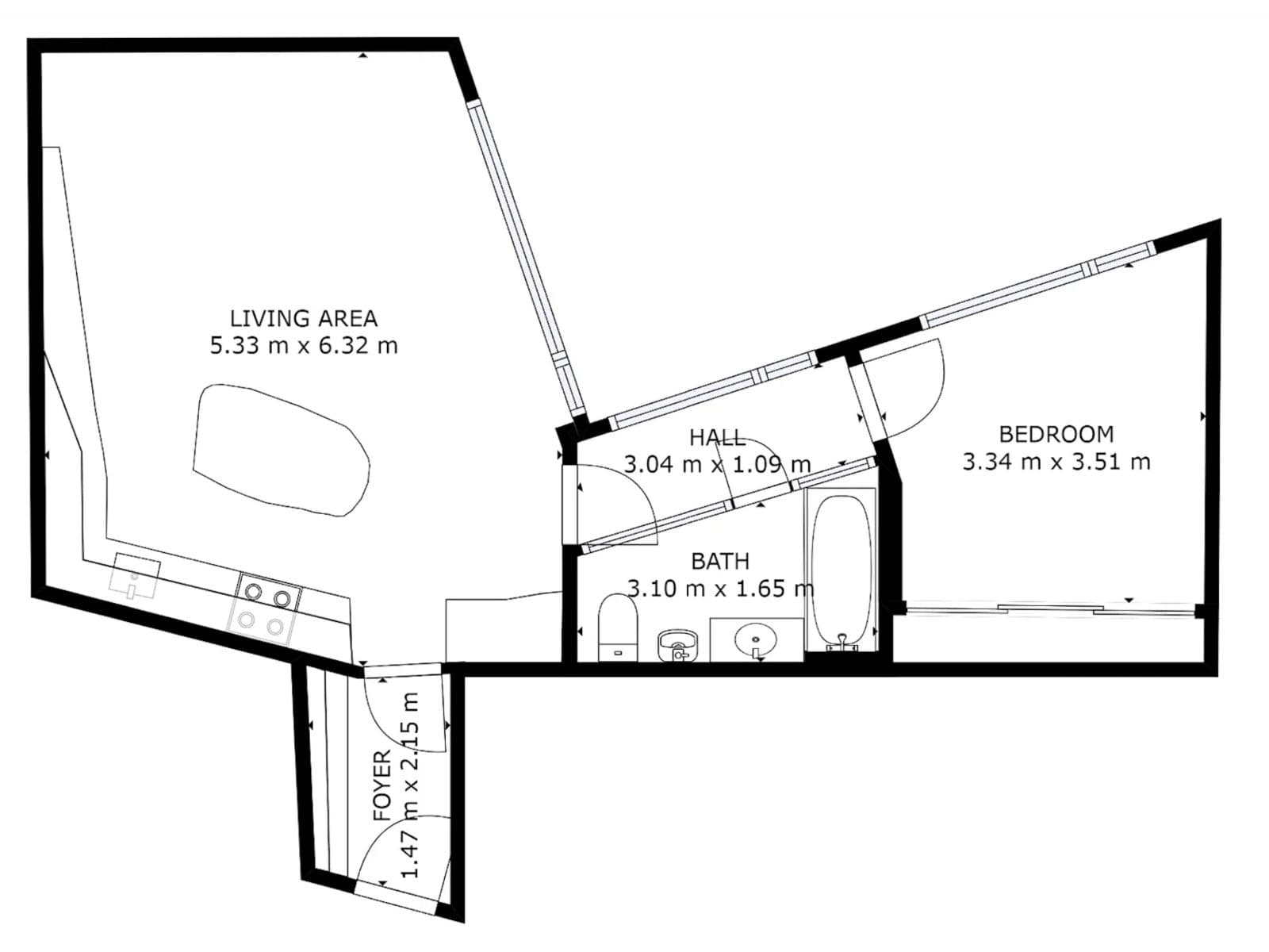
Trendy 1BR in Holešovice Prague 7, 57 m2. Modern and comfortable 1BR apartment located in one of the most vibrant parts of Prague - Holešovice. The spacious living area includes a fully equipped kitchen with a dishwasher, oven and microwave. The entry features a washer & dryer. The bedroom offers plenty of space for rest.
A parking spot in the building is available.
The neighborhood is one of Prague’s trendiest — full of great restaurants, cafés, galleries and weekend spots. The riverfront, Prague Market and Letná Park are all within walking distance.
Parametry nemovitosti
| Dostupné od | 28. 11. 2025 |
|---|---|
| Podlaží | 3. podlaží |
| Užitná plocha | 57 m² |
| Vybaveno | Vybaveno |
|---|---|
| Číslo inzerátu | 968805 |
| Cena za jednotku | 751 Kč / m2 |
Co tato nemovitost nabízí?
| Garáž | |
| Výtah |
| MHD 1 minuta pěšky |
V okolí nemovitosti najdete
Nájemné i poplatky platí pro pronájem na 10 měsíců. Tuto nabídku je však možné si pronajmout přes Flatio již od 1 měsíce. Administrativní poplatek je pro kratší pronájmy nižší. Pronájmy kratší než 6 měsíců jsou vždy bez kauce.
Stále hledáte to pravé?
Nastavte si hlídacího psa. Nabídky vybrané na míru dostanete souhrnně 1× denně e-mailem. S Premium profilem máte k ruce hlídačů rovnou 5 a když se něco objeví, informují vás obratem.






















