
Pronájem bytu 2+1 • 70 m² bez realitkyFürkhofstr. 18 München-Bogenhausen Johanneskirchen Bayern 81927
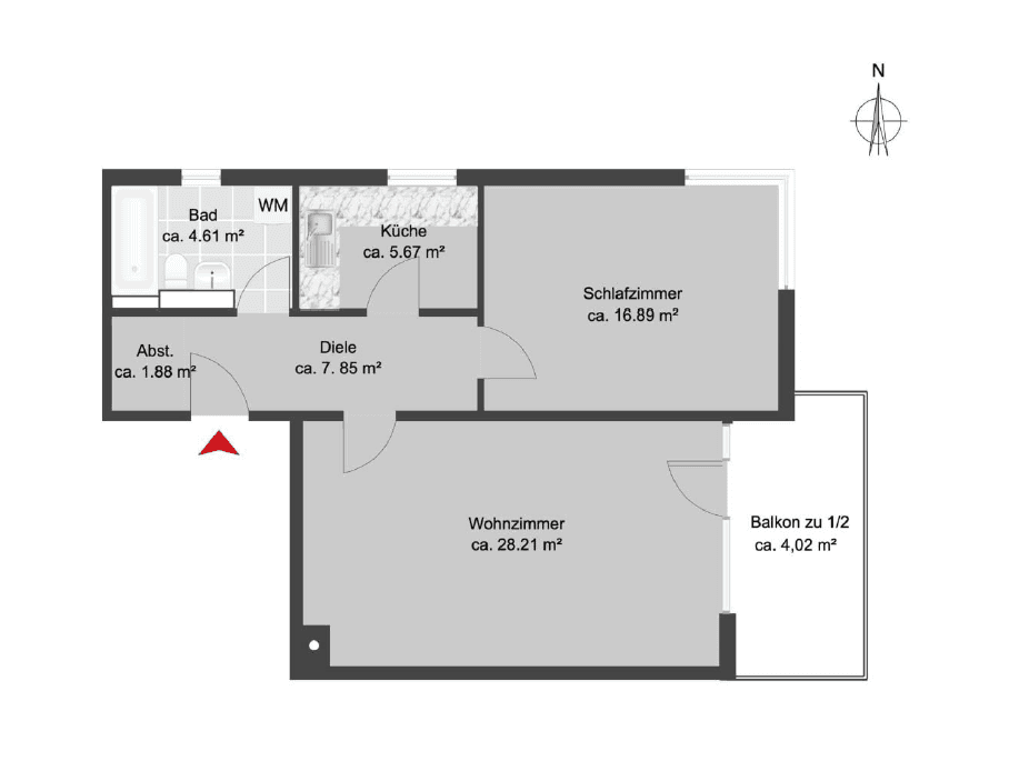
Fürkhofstr. 18 München-Bogenhausen Johanneskirchen Bayern 81927MHD 4 minuty pěšky • Výtah • GarážČerstvě zmodernizovaný 2+kk byt se nachází ve 2. patře a je pohodlně dostupný výtahem (rekonstruován v roce 2024). S přibližně 70 m² obytné plochy nabízí tento prostorný dvoupokojový byt hodně prostoru pro sebevyjádření a tím i vysokou kvalitu bydlení. Oba pokoje mají velkorysé dispozice a zajišťují vyšší komfort. Nabízejí řadu možností, jak umístit nábytek a místnosti si tak individuálně zařídit. Dlouhá předsíň spojuje všechny místnosti dohromady. Obývací pokoj o rozloze 28 m² se dá velmi dobře rozdělit na obytnou a jídelní část. Následující balkon o rozloze přibližně 8 m² je zastřešený a zvou vás k posezení nejen v létě. Ložnice o rozloze téměř 17 m² se dá výborně zařídit nábytkem a nabízí také dostatek místa pro velký psací stůl (pro práci z domova). Díky dvěma oknům s žaluziemi pro zatemnění je v místnosti velmi dostatek denního světla. Kuchyně má okno a je vybavena vestavěnou kuchyňskou linkou včetně elektrospotřebičů, které jsou součástí nájmu. Koupelna je rovněž opatřena oknem a nabízí vanu, WC a umyvadlo. Je zde také připojení pro pračku. V celém bytě je položen parket, kuchyně a koupelna jsou obloženy dlažbou. K bytu náleží také praktická sklepní kóje. Pomocí výtahu se pohodlně dostanete do sklepa i do vlastního podzemního parkoviště. K dispozici je také jedno samostatné parkovací místo v garáži (nejde o duplex) a lze si jej pronajmout navíc.
Topení a ohřev teplé vody jsou zajišťovány prostřednictvím dálkového vytápění městských podniků Mnichova.
Byt se nachází v oblíbené rezidenční lokalitě v Bogenhausenu. Pouze asi 150 m od bytu (dvě minuty chůze) se nachází obchod EDEKA. Jen asi 200 m dále se nachází supermarket ALDI. Přibližně 350 m od bytu mají zastávku autobus (linka 50) i tramvaj (linky 17 a 37). Oběma tramvajovými linkami se během pěti minut dostanete k metrostanicí Arabellapark (linka U4). Stanice S-Bahn Johanneskirchen (linka S8 – na letiště nebo do centra) je vzdálena přibližně 900 m. Pro řidiče je výborné spojení na Mittleren Ring, díky němuž se rychle dostanete do centra. Také letiště a oblíbené rekreační oblasti kolem Mnichova jsou pohodlně dostupné veřejnou dopravou. Jako i v ostatních čtvrtích Bogenhausenu zde naleznete rozsáhlé parkové a zelené plochy, které zvou k procházkám, jízdě na kole a běhání. Také nedaleký Englischer Garten je vyhledávaným výletním místem. Zvláštní zábavu nabízí v létě i v zimě nedaleké Cosimabad s jediným vlnovým bazénem v Mnichově. Zejména v horkých dnech lákají okolní koupaliště, jako je Feringasee nebo Poschinger Weiher (Unterföhringer See), početné koupající se. Rozsáhlé trávníky lemují břehy a vyhrazené grilovací prostory a sportovní zařízení doplňují letní volnočasové vyžití. Kdo hledá klidnější zážitek, určitě najde stinný koutek v některé z příjemných pivních zahrad. Mnoho obchodů pro každodenní potřeby, lékařů a dalších služeb je v bezprostřední blízkosti a je snadné je dosáhnout pěšky. Také školy a zařízení péče o děti jsou dosažitelná za pár minut chůze. Autem do centra potřebujete obvykle přibližně 15 minut, letiště v Mnichově se dá autem dojet za pouhých 20 minut nebo pohodlně S-Bahn.
V okolí nemovitosti najdete

Pronájem bytuGeorg-Huber-Str. 14 Zorneding, Ortsteil Pöring Berg am Laim Bayern 85604- 3+1
- 88 m²
1 950 € + 260 €



Stále hledáte to pravé?
Nastavte si hlídacího psa. Nabídky vybrané na míru dostanete souhrnně 1× denně e-mailem. S Premium profilem máte k ruce hlídačů rovnou 5 a když se něco objeví, informují vás obratem.













