
Prodej domu 4+1 • 98 m² bez realitky, Dolní Sasko
, Dolní SaskoMHD 5 minut pěšky • ParkováníTato nemovitost je velmi moderní rodinný dům ve stylu městské vily, postavený v roce 2017. S podlahovou plochou 150 m² nabízí dostatek prostoru pro bydlení přes více než dvě úrovně a plnohodnotný suterén.
V přízemí se nachází velká, otevřená kuchyně, jídelna a obývací pokoj s přístupem do zahrady a na terasu.
V horním patře jsou celkem tři místnosti, které lze využít jako ložnice, pracovnu nebo dětský pokoj. Horní patro dále disponuje nádhernou koupelnou s volně stojící vanou a bezprahovým sprchovým koutem.
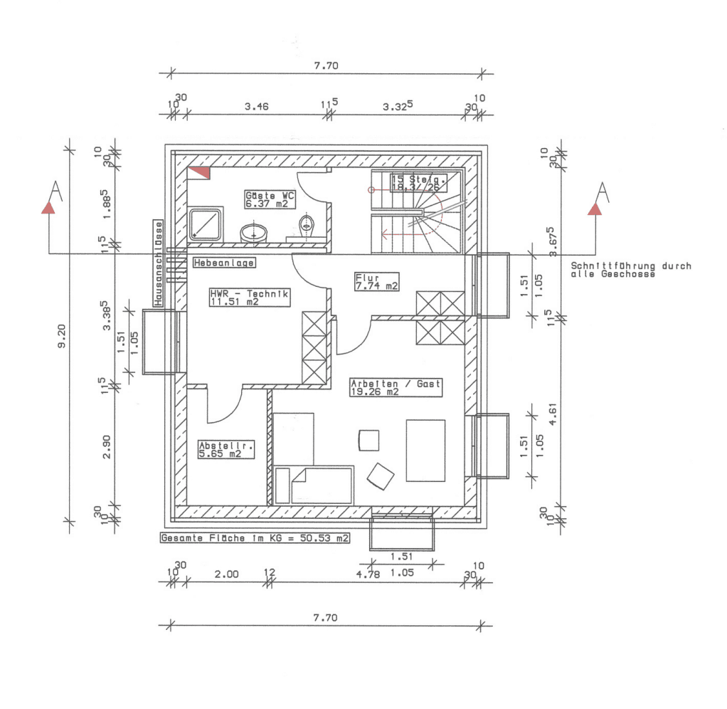
Suterén je samostatné patro s prostorným pokojem pro hosty, chodbou, vlastní sprchovou koupelnou a technickou místností s dostatkem úložného prostoru.
Dále je zde podkroví, které slouží k dalšímu uskladnění.
Pozemek o rozloze 300 m² je ohraničen a nabízí klid a soukromí. K domu patří velká jihozápadní terasa, dlažební příjezdová cesta s 2 parkovacími místy, velká zámecká zahrada a vlastní studna.
Nemovitost se nachází v srdci Stuhr-Varrel, velmi vyhledávané a klidné obytné čtvrti v bezprostřední blízkosti bremského okraje města. Všechna školní zařízení, mateřská škola i jesle, banka, lékárny a veškeré občanské vybavení jsou dosažitelné pěšky. Stuhr-Varrel je velmi oblíbené bydliště s dobrou dopravní dostupností do Bremenu a Delmenhorstu.
• Přízemí s jídelnou, obývacím pokojem a velkou, otevřenou kuchyní s přístupem na jihozápadní terasu
• V přízemí je připraven komínový přípoj
• Moderní koupelna v horním patře s volně stojící vanou a prostorným bezprahovým sprchovým koutem
• Plnohodnotná sprchová koupelna v suterénu
• Kvalitní plastová okna s trojsklem
• LAN porty ve všech místnostech
• Chytrá domácnost (říditelné a programovatelné žaluzie ovládané přes aplikaci Somfy a dálkové ovládání, stejně jako ovládání osvětlení přes Philips Hue)
• Plisé na téměř všech oknech, rovněž v suterénu
• Podlahové topení v celém domě
• Kvalitný laminát v přízemí a horním patře, dlažba a laminát v suterénu
• Připojení pomocí optického internetu
• Plynový ohřívač vody značky Vaillant (technická místnost)
• Solární termální systém (technická místnost)
• Vestavěná kuchyň
• Buková dřevěná schodiště spojující sklep s horním patrem
• Velká zahradní bouda
• Dlažební příjezdová cesta se dvěma parkovacími místy
• Udržovaná a zavlažovaná zahrada obehnaná cypřišovými živými ploty s vlastní studnou
V okolí nemovitosti najdete
Stále hledáte to pravé?
Nastavte si hlídacího psa. Nabídky vybrané na míru dostanete souhrnně 1× denně e-mailem. S Premium profilem máte k ruce hlídačů rovnou 5 a když se něco objeví, informují vás obratem.




























