
Pronájem bytu 1+1 • 31 m² bez realitkyRudower Chaussee 34 Berlin Adlershof Berlin 12489
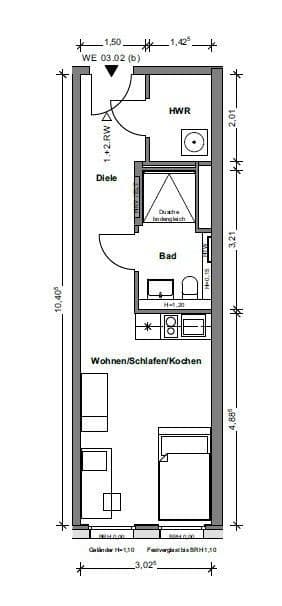
Novostavba. Nastěhujte se s kufrem a cíťte se jako doma. Žádné starosti. Všechno už je v ceně. Rádi zde mohou bydlet i dvě osoby. Byt má 31 m² a nabízí vše, co potřebujete – kvalitní kuchyň s kombinací lednice a mrazáku, varnou desku a troubu – nádobí, hrnce, příbory – všechno je k dispozici – pračka a sušák na prádlo – žaluzie – robotický vysavač – jídelní stůl se dvěma židlemi – postel 1,20 m x 2,00 m – skříň.
Internet a elektřina jsou zahrnuty v ceně. Není třeba uzavírat vlastní smlouvu, protože vše je již zřízeno na pronajímatele.
Nemovitost se nachází v pulzující lokalitě uprostřed technologického a vědeckého parku Adlershof v Berlíně. V bezprostředním okolí objektu najdete několik autobusových a tramvajových linek. Pěšky se dostanete do několika restaurací, kaváren, k lékařům, pekáren a nákupního centra. Různé zelené plochy a parky, dvě fitness centra, dvě čistírny, obchod s módou a knihovna jsou rovněž přímo v okolí.
Kvalitní vybavení novostavby. Moderní a komfortní.
Parkování je možné na ulici.
V ceně nájmu jsou zahrnuty všechny náklady, včetně elektřiny a internetu.
V okolí nemovitosti najdete
Stále hledáte to pravé?
Nastavte si hlídacího psa. Nabídky vybrané na míru dostanete souhrnně 1× denně e-mailem. S Premium profilem máte k ruce hlídačů rovnou 5 a když se něco objeví, informují vás obratem.










