
Pronájem bytu 4+1 • 130 m² bez realitky, Severní Porýní-Vestfálsko
, Severní Porýní-VestfálskoMHD 1 minuta pěšky • ParkováníMěsíční nájemné1 300 €
+ Poplatky za služby200 €
+ Vratná kauce3 600 €
Přeloženo pomocí AI
Velmi krásný, světlý byt v Sondern k prodeji. Bydlení přímo u Bigge, kde ostatní tráví dovolenou. Autobusové a vlakové spojení.
Bydlení v krásném Sauerlandu u Bigge. V rekreačním středisku Sondern.
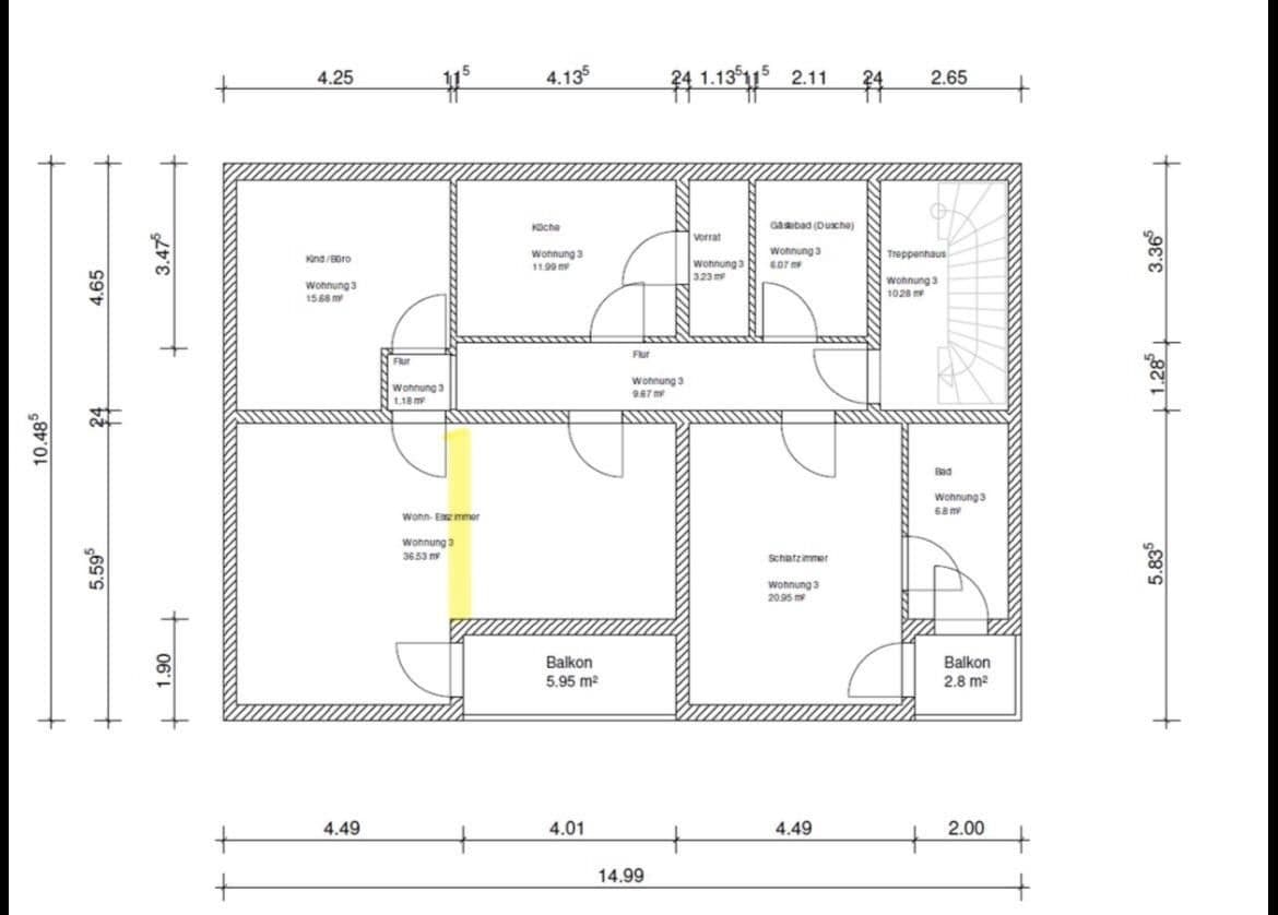
Na přání nájemce může být postavena žlutě zakreslená zeď, aby vznikla další místnost.
V okolí nemovitosti najdete
MHDOlpe Krankenhaus
🚶 44 m (1 min)
PoštaDeutsche Post Olpe
🚶 830 m (10 min)
ObchodBäckerei Hesse Paul
🚶 78 m (1 min)
BankaDeutsche Bank
🚶 140 m (2 min)
RestauracePizzeria Etna
🚶 136 m (2 min)
LékárnaBiggekosmetik
🚶 30 m (0 min)
ŠkolaTurnhalle Hohensteinschule
🚶 262 m (3 min)
Mateřská školaOberlin-Kindergarten
🚶 336 m (4 min)
Sportoviště
🚶 402 m (5 min)
Hřiště
🚶 160 m (2 min)
Vzdálenost k:
Měsíční nájemné1 300 €
+ Poplatky za služby200 €
+ Vratná kauce3 600 €
Stále hledáte to pravé?
Nastavte si hlídacího psa. Nabídky vybrané na míru dostanete souhrnně 1× denně e-mailem. S Premium profilem máte k ruce hlídačů rovnou 5 a když se něco objeví, informují vás obratem.






