
Prodej bytu 2+kk • 65 m² bez realitkyHamburg Hausbruch Hamburg 21147
Světlý a příjemný 2,5-pokojový přízemní byt se nachází v obytném domě. Bydlová plocha o rozloze 65 m² je rozmístěna na dvou podlažích. Budova byla postavena v roce 1997 a má fasádu z červených cihel. Dům je vybaven plynovým centrálním topením ve velmi dobrém stavu. Celý obytný komplex se skládá z 8 bytů. Dům dále disponuje společnou zahradou, sklepem na kola a parkovacími místy přímo před budovou.
Měsíční poplatek za bydlení činí v současnosti 330,00 €. Ta částka zahrnuje všechny provozní náklady, jako jsou pojištění, správa, rezervační fond na údržbu a náklady na topení a ohřev vody – s výjimkou nákladů za elektřinu, telefon/internet a televizi. Jedná se o vlastní pozemek o přibližné ploše 885 m², ne o pozemek na bázi věcného břemene (nikoliv Erbbaurecht)! Účet s fondem na údržbu je dobře naplněn.
Byt je momentálně trvale pronajatý. Aktuální čisté nájemné činí měsíčně 820,00 €.
Bydlení se nachází v klidné ulici určené pro místní obyvatele, jen několik minut od supermarketů a přírodní rezervace a zároveň v bezprostřední blízkosti přístupu ke stanici S-Bahn Neuwiedenthal.
Hausbruch díky své krátké vzdálenosti k dálnici A7 a spojení se S-Bahn nabízí velmi dobré dopravní spojení jižně od Labe a zároveň vysokou kvalitu bydlení uprostřed pečlivě udržovaného a neporušeného obytného prostředí. Pro děti je vše dokonale zajištěno – od mateřské školy až po základní školu, vše je dosažitelné v příjemně krátké době.
Pro běh, chůzi, jízdu na kole a procházky nabízí zelené okolí téměř nekonečné možnosti.
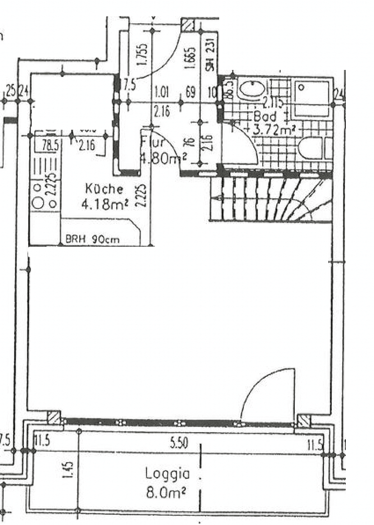
Přízemní suterénový duplex byt o rozloze přibližně 65 m² zaujme svou přehlednou a promyšlenou dispozicí. Po vstupu do bytu se po levé straně ocitnete v bezokenové koupelně se sprchou a hostovským WC o rozloze cca 4 m². Stěny koupelny jsou obloženy bílými dlaždicemi.
Po průchodu chodbou vstoupíte do obývacího a jídelního prostoru o rozloze přibližně 21 m², který je spojen s vysoce kvalitní vestavěnou kuchyní z roku 2012, jež nabízí veškeré vybavení, po kterém si můžete přát. Podlaha v přízemí byla také v roce 2012 obnovena moderními dlaždicemi. Přes celou délku místnosti se nachází okenní stěna směřující na západ, která zajišťuje dostatek přirozeného denního světla.
Dveřmi vedoucími na terasu se dostanete ven na terasu/loggiu o rozloze 8 m² a do vaší soukromé zahrady.
Do suterénu se dostanete po prostorném schodišti, které vás přivede do průchozí místnosti o rozloze přibližně 20 m², jež se skvěle hodí jako domácí kancelář nebo šatna. Odtud vstoupíte do ložnice o rozloze 11 m², která je vybavena velkou a promyšlenou vestavěnou skříní. Další koupelna typu en suite o rozloze asi 4 m², modernizovaná až v roce 2010, kromě umyvadla a WC nabízí také prostornou vanu.
Plastová okna s rozpěry v bytě jsou bílá. Vchodové a vnitřní dveře jsou vyrobeny z dřevovláknité desky v bílé barvě. Místnosti v suterénu, s výjimkou koupelny, jsou vybaveny laminátovou podlahou.
V koupelně v suterénu je rovněž připraveno připojení pro pračku.
K bytu náleží soukromý sklep o rozloze 6 m², sloužící jako úložný prostor, a také sklep na kola, který patří do společných prostor domu.
K bytu přísluší také parkovací místo pro osobní automobil přímo před domem.
V okolí nemovitosti najdete
Stále hledáte to pravé?
Nastavte si hlídacího psa. Nabídky vybrané na míru dostanete souhrnně 1× denně e-mailem. S Premium profilem máte k ruce hlídačů rovnou 5 a když se něco objeví, informují vás obratem.



















