
Prodej domu 6+kk • 191 m² bez realitky, Bádensko-Württembersko
, Bádensko-WürttemberskoMHD 1 minuta pěšky • ParkováníVaše nové bydlení
V oblíbené rodinné čtvrti v Leingartenu vám můžeme nabídnout tuto krásnou polodům s nadprůměrně prostorným dispozicemi a velkým počtem pokojů.
Polodům a samostatný byt byl v roce 2017 zrekonstruován. V roce 2022 byla znovu natřena fasáda.
Místo k pohodlnému bydlení
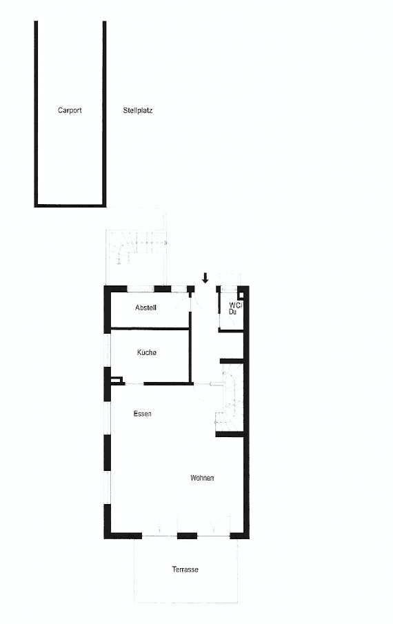
Dům byl postaven v letech 1999/2000 s celkovou obytnou plochou cca 190,52 m² a nachází se v klidné obytné ulici.
Až do podkroví máte k dispozici až 5 ložnic, koupelnu, kuchyni, prostornou skladovací místnost, hostinskou toaletu a velký světlý obývací/jídelní prostor, rozložené do tří pater.
V případě potřeby je možno v suterénu samostatně pronajmout malý byt o velikosti 1,5 místnosti.
Jižní zahrada se sluneční terasou vás nadchne a zve k odpočinku v zeleném prostředí.
Leingarten je oblíbené a atraktivní město s přibližně 12 500 obyvateli. Blízkost k Heilbronnu se spojnicí městské dráhy a velmi dobrá infrastruktura zajišťují vysokou kvalitu bydlení.
Za malebným okolím u Heuchelbergu, kde se pěstuje víno, a s množstvím sportovních a rekreačních zařízení a aktivním klubovým životem, nabízí Leingarten vysokou volnočasovou hodnotu.
V Leingartenu sídlí četní lékaři, lékárny, zdravotní a pečovatelská zařízení. Navíc zde najdete několik pekaří, řeznictví, supermarketů a diskontních obchodů, které zajišťují vynikající dostupnost.
Rodiny mají k dispozici 10 mateřských škol, dvě základní školy a také celostátní školu.
Vybavení
- Vestavěná kuchyň
- Zařízení pro změkčování vody (2018)
- 1 krytý garážový stání s přístavbou
- 2 parkovací místa
- Příprava pro solární termii
Samostatný byt cca 31 m²
- samostatný vstup
- kuchyňská linka
- skladovací místnost s prostorem pro regál, pračku a sušičku
- obytná/spací část
- koupelna
Samostatný byt je v současné době pronajat.
Pro prohlídku žádáme předem o finanční potvrzení a děkujeme za pochopení.
Máte-li jakékoliv další dotazy, neváhejte nás kontaktovat.
V okolí nemovitosti najdete
Stále hledáte to pravé?
Nastavte si hlídacího psa. Nabídky vybrané na míru dostanete souhrnně 1× denně e-mailem. S Premium profilem máte k ruce hlídačů rovnou 5 a když se něco objeví, informují vás obratem.





