
Prodej domu • 232 m² bez realitkySchmittstr. 51 Bonn Duisdorf Nordrhein-Westfalen 53123
Za moment se jedná o dvou kompletních obytných domů. Velcourčitý, neokoukavý, romanticky útulný dvůr nabízí spoustu místa pro komunitu a setkávání.
Na prostorném trávníku a zahradní ploše si každý zahrádkář může realizovat své představy.
Velké stáje a hospodářské místnosti se hodí pro koníčky, sbírky, ateliéry, dílny i skladové prostory.
Dům 1: 113 m² – obytný dům, který byl vnitřně renovován počátkem 80. let.
Dům 2: Bývalé stáje.
Dům 3: 119 m² – bývalá stodola, do které byl v roce 2000 postaven obytný dům.
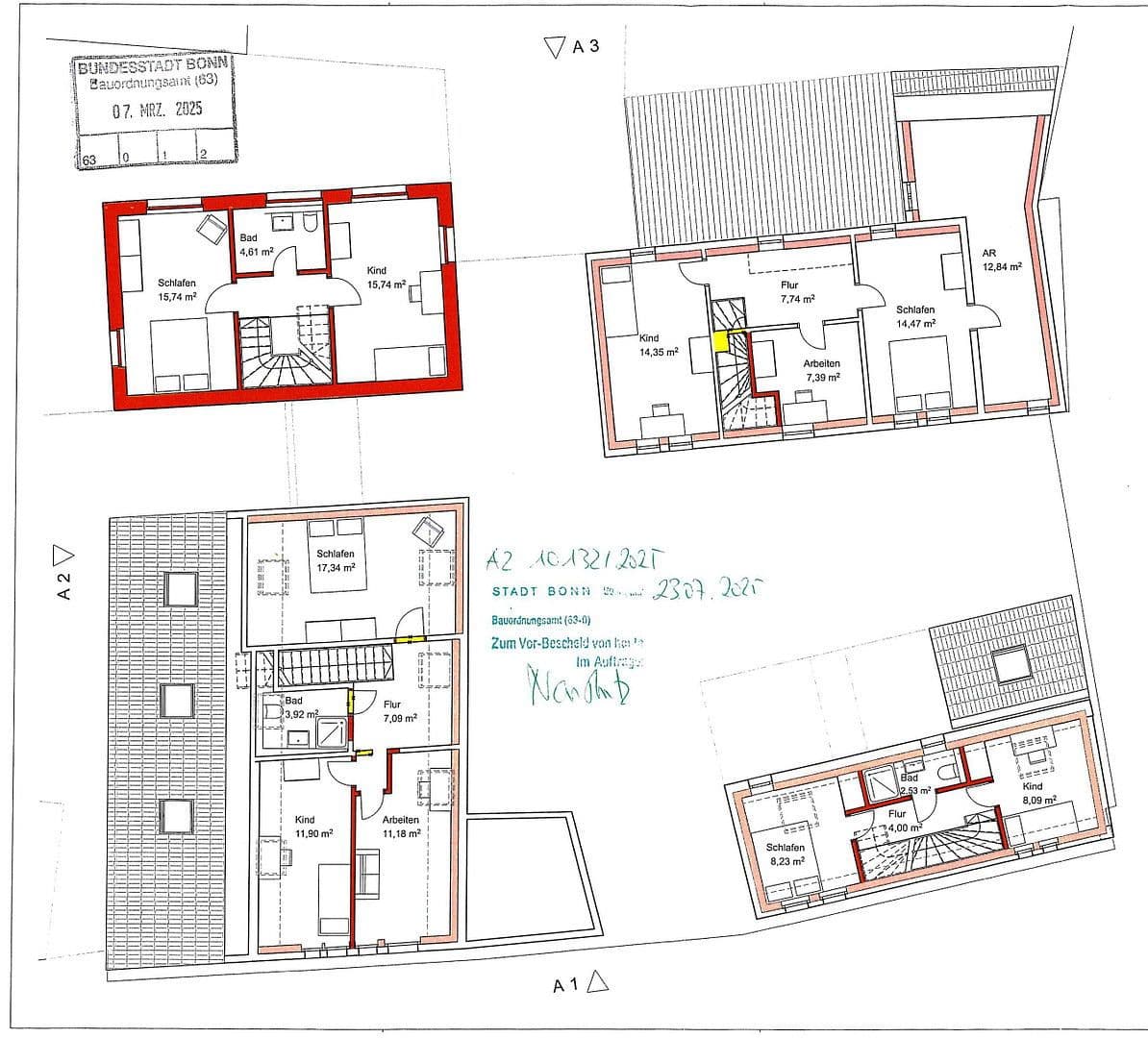
Dům 4: Schválená novostavba.
Dům 1: Energetický štítek – 258,7 kWh/m²/rok – třída H.
Dům 3: Energetický štítek – 154,5 kWh/m²/rok – třída E.
Od května 2023 je areál chráněn jako památková rezervace, přičemž se ochrana v podstatě vztahuje na vnější zdi zdobeného rámového stavění. Hodnocení je dále k dispozici jako soubor PDF.
V současné době není nutné platit žádné příspěvky za přípojku.
Na pozemku nejsou zapsána žádná omezení týkající se staveb.
Ve spolupráci s architektem panem Jürgenem von Kietzellem byl vyvinut koncept současného bydlení, který byl v červenci 2025 schválen. Pan von Kietzell má dlouholeté zkušenosti ve zpracovávání projektů památkově chráněných budov.
Areál se nachází na adrese Schmittstr. 51 v Duisdorfer Oberdorf.
Obchody, lékaři a školy, stejně jako restaurace a kavárny, jsou dosažitelné během několika minut chůze.
Dopravní spojení MHD je velmi dobré.
Příjezd na dálnici je dosažitelný za 5 minut.
Oba domy jsou plně funkční a ihned k užívání.
Parametry nemovitosti
| Stáří | Nad 50 let |
|---|---|
| Stav | Dobrý |
| PENB | E - Nehospodárná |
| Plocha pozemku | 1 554 m² |
| Cena za jednotku | 5 388 € / m2 |
| Dostupné od | 10. 12. 2025 |
|---|---|
| Číslo inzerátu | 972108 |
| Užitná plocha | 232 m² |
| Celkem podlaží | 2 |
Co tato nemovitost nabízí?
| Garáž | |
| Parkování | |
| Terasa |
| MHD 4 minuty pěšky |
V okolí nemovitosti najdete
Stále hledáte to pravé?
Nastavte si hlídacího psa. Nabídky vybrané na míru dostanete souhrnně 1× denně e-mailem. S Premium profilem máte k ruce hlídačů rovnou 5 a když se něco objeví, informují vás obratem.















































