
Pronájem bytu 3+1 • 88 m² bez realitkyMelanchthonstr 116, , Bádensko-Württembersko
Melanchthonstr 116, , Bádensko-WürttemberskoMHD 4 minuty pěšky • Výtah • ParkováníModerní 3-pokojový byt s terasou – čerstvě zrenovovaný, bezbariérový a centrálně situovaný v Bretten – k dispozici od 1. ledna
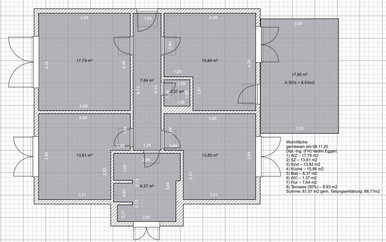
K pronájmu je nabízena čerstvě zrenovovaná, světlá 3-pokojová bytová jednotka o přibližně 88 m² obytné plochy na adrese Melanchthonstraße 116 v Bretten. Byt se nachází v přízemí. Vnitřní prostory bytu jsou bez schodů – terasa je mírně snížená se vstupní prahou. Ideální pro seniory, osoby s omezenou pohyblivostí nebo pro kohokoli, kdo preferuje komfort bydlení na jedné úrovni.
K dispozici od: 1. ledna
Měsíční náklady:
• Základní nájemné: 1 100 €
• Provozní náklady: 150 €
• Parkovací stání: 50 €
• Kvalitní vestavěná kuchyň: měsíční poplatek za používání 200 €
Celkové měsíční nájmy: 1 500 €
Kauce činí dvě teplé nájmy, tedy přibližně 3 000 €
Vybavení & Zvýrazněné vlastnosti:
• Prostorný obývací pokoj
• Dvě světlé ložnice
• Moderní vestavěná kuchyň s jídelním koutem a přístupem na slunnou terasu
• Světlá koupelna s vanou a oddělenou sprchou
• Další samostatné hostinské WC
• Parkovací stání přímo u domu
• Praktická dispozice, ideální pro páry, jednotlivce nebo malé rodiny
Lokalita:
Byt zaujme svou vynikající infrastrukturou:
• Pouze 3 minuty chůze k nejbližšímu obchodům s potravinami
• Asi 5 minut chůze k nádraží Bretten – ideální pro dojíždějící
• Klidná a upravená obytná čtvrť
• Dobré spojení s veřejnou dopravou a rychlá dostupnost centra města
Tento byt nabízí vzácnou kombinaci komfortu, moderního životního stylu a centrální polohy.
Kontaktujte nás prosím pro domluvení prohlídky!
Stay in Style GmbH
Robert-Koch-Straße 2
75015 Bretten
Obchodní rejstřík: HRB 746470
Okresní soud: Amtsgericht Mannheim
Zastoupeno:
Vadim Eggert
V okolí nemovitosti najdete



Pronájem bytuOberer Wingertweg 8 Pforzheim Pforzheim Baden-Württemberg 75177- 3+1
- 100 m²
1 190 € + 230 €

Stále hledáte to pravé?
Nastavte si hlídacího psa. Nabídky vybrané na míru dostanete souhrnně 1× denně e-mailem. S Premium profilem máte k ruce hlídačů rovnou 5 a když se něco objeví, informují vás obratem.













