
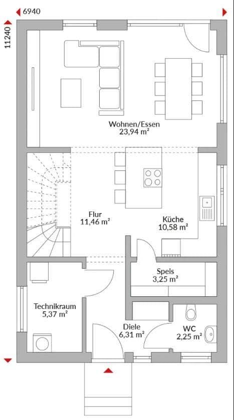
Prodej domu 4+1 • 124 m² bez realitkyGRUNDSTÜCK EXKLUSIV NUR FÜR DANWOOD-HAUSBAU ORTSRAND STAINZ St Stefan ob Stainz Steiermark 8511
GRUNDSTÜCK EXKLUSIV NUR FÜR DANWOOD-HAUSBAU ORTSRAND STAINZ St Stefan ob Stainz Steiermark 8511MHD do minuty pěšky • GarážTento dům navzdory malé zastavěné ploše splňuje všechna kritéria moderního bydlení. Tento prostorový zázrak naplňuje veškeré požadavky na moderní bydlení – a to s maximální funkčností. Je ideální pro ty, kdo plánují vědomě a nechtějí si nic odepřít. Promyšlený dům, který překvapuje: s prosvětleným obytným prostorem, chytrým uspořádáním místností a se vším, co moderní bydlení vyžaduje. Pro lidi, kteří mají rádi to podstatné – a cení si komfortu.
Funkční, efektivní, pohodlný: Tento dům ukazuje, kolik kvality života se vejde do kompaktní architektury. Určen je pro všechny, kdo plánují s předstihem – a inteligentně využívají prostor.
Na vašem pozemku nebo v...
Güssing: přibližně 2 600 m², lokalita je zcela rovinná. Velikosti a polohy stavebních pozemků jsou volně vybíratelné – od 500 m² do 1500 m².
Zde se nacházejí stavební pozemky třídy „Extra“! V nejlepší lokalitě s dechberoucím výhledem na nádherný hrad Güssing!
Güssing nabízí budoucnost zajišťující, dostupný a energeticky nezávislý život v přírodě, což činí investici do nemovitosti zde strategicky hodnotovou investicí.
Proč Güssing
Energetický průkopník a udržitelnost:
• Město je energeticky soběstačné a mezinárodně uznávané.
• Vysoké pokrytí (přes 85 %) regionálními systémy dálkového vytápění z biomasy zajišťuje stabilní a příznivé náklady na vytápění.
Dostupné ceny nemovitostí:
• Ceny jsou stále výrazně nižší než rakouský průměr, což umožňuje splnit sen o vlastním domově se štědrými pozemky.
Silná infrastruktura a kvalita života:
• Jako okresní předměstí Güssing zaručuje krátké vzdálenosti a vynikající občanskou vybavenost.
• Plánované velké investice: nový vzdělávací kampus a moderní centrum lékařské péče (od roku 2026).
Kulturní centrum (hrad Güssing) a blízkost termálních lázní.
Plná otevření dálnice S7 přinese Güssingu a jeho obyvatelům řadu výhod:
• Rychlejší spojení s metropolitními oblastmi: Rychlostní silnice výrazně zkracuje dobu jízdy na dálnici A2 Süd, což významně sníží časy cest do Grazu i Vídně.
• Odlehčení regionu: Dálniční trasa přesměruje průjezdovou dopravu, která dříve zatěžovala obce jako Fürstenfeld a Rudersdorf.
• Ekonomické impulzy: Nové spojení, mimo jiné prostřednictvím přípojky u Rudersdorf/Dobersdorf a blízkosti k připojení u Königsdorf, posiluje Güssing jako okresní předměstí a podnikatelskou lokalitu díky lepší dostupnosti a podpoře nových průmyslových parků.
Hodnotová stabilita a potenciál rozvoje:
• Cílené obecní investice do infrastruktury, oživení centra města a technologického centra zajišťují dlouhodobou hodnotovou stabilitu nemovitostí.
• Obecní strategie se zaměřuje na zvládnutí demografických výzev a transformaci Güssingu na atraktivní místo pro bydlení i podnikání.
Cílová skupina:
• Rodiny, které hledají budoucnost, bezpečí a přírodu, a rovněž všichni, kdo si cení nízkých nákladů na energii a ekologické odpovědnosti.
Další pozemky v:
Pozemek, 8323 Kohldorf:
• Stavební pozemek s bohatým slunečním světlem v středovýchodních svazích východoaustrijské Štýrské krajiny, 15 km od Grazu!
• Velikost: 758 m², prodejní cena: € 66 000,–
Pozemek, 8323 Kohldorf:
• Slunný stavební pozemek v Kohldorfu, 15 km východně od Grazu!
• Velikost: 787 m², prodejní cena: € 69 000,–
Pozemek, 8311 Markt Hartmannsdorf:
• Plně inženýrsky připravený, slunný stavební pozemek v Markt Hartmannsdorfu
• Velikost: 920 m², prodejní cena: € 53 000,–
Pozemek, 9335 Lölling Graben:
• Stavební pozemek s úchvatným výhledem do dalekého okolí v malebném Kärntner pohoří
• Velikost: 1001 m², prodejní cena: € 50 000,–
Pozemek, 8075 Hart u Grazu:
• Slunný pozemek před branami Grazu
• Velikost: 1980 m², prodejní cena: € 475 000,–
Pozemek ke koupi v Stainz:
• Slunný pozemek na okraji obce Stainz
• Velikost: 825 m², prodejní cena: € 149 000,
Mezi vlastníkem pozemku a stavitelem domu neexistuje žádné ekonomické propojení.
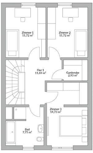
Rodinný dům se 4 pokoji – exkluzivní vybavení!
• Dům je dokončený na klíč, včetně dodávky a montáže od úrovně horní části základů.
• Sníhově zatížený krov
• Vzduch-voda tepelné čerpadlo a podlahové topení
• Větrání obytných prostor s rekuperací tepla (včetně letního chladicího režimu)
• Elektrické rolety po celém domě
• Volba podlahových krytin a sanitárního vybavení dle vlastního vkusu
• Příprava pro fotovoltaiku
• Komplexní „all inclusive“ balíček
Možnost vlastních úprav dle vašich představ.
Poradenství a prodej:
Paní Tatjana Wyss
Telefon: +43 676 553 77 47
E-mail: tatjana.wyss@danwood.at
Zajistěte si nyní konzultaci!
Požádejte o stavební popis a katalogy!
K tomu je nutné uvést Vaši telefonní číslo, e-mailovou adresu a adresu.
Děkujeme!
FINANČNÍ VÝPOČETNÍK
https://www.finaustria.at/finanzierungsrechner
DALŠÍ NABÍDKY!
https://qr.scan.page/uploads/pdf/1752348182250_686ba1debcb60.pdf
V okolí nemovitosti najdete
Stále hledáte to pravé?
Nastavte si hlídacího psa. Nabídky vybrané na míru dostanete souhrnně 1× denně e-mailem. S Premium profilem máte k ruce hlídačů rovnou 5 a když se něco objeví, informují vás obratem.





















