
Prodej bytu 1+1 • 44 m² bez realitkyJenullgasse 10 Wien 14. Bezirk Wien 1140
Byt v blízkosti stanice U4 Braunschweiggasse
pro investory nebo jako první bydlení
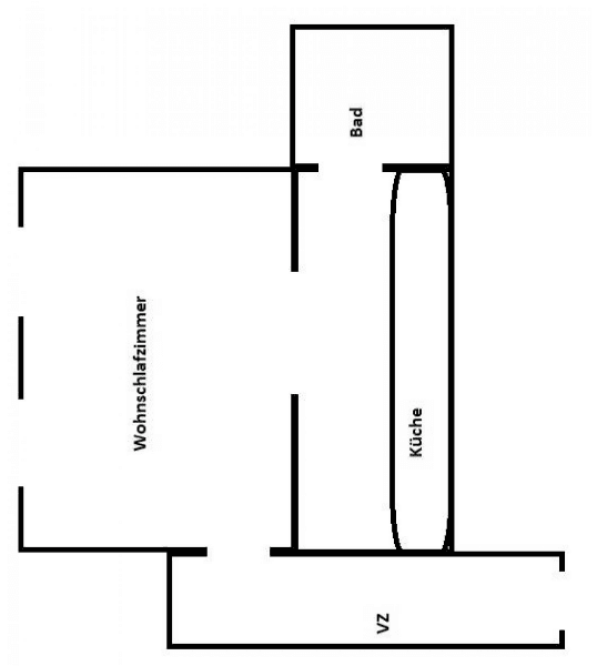
Tento vlastnický byt se nachází v prvním patře s výtahem malé bytové budovy.
Byt disponuje:
– prostornou vstupní halou
– plně vybavenou kuchyní se všemi spotřebiči
– koupelnou s toaletou
– obytnou ložnicí
V domě je rovněž k dispozici vnitřní dvůr – zahrada
Tento byt má ideální dopravní dostupnost k U4 Braunschweiggasse, resp. k S45 Penzing, jakož i k Západní dálnici.
Byt je momentálně pronajat do 31. 3. 2026 za cca 10 € za m².
Nájemce má zájem o prodloužení.
Topení je zajištěno plynem a teplá voda se ohřívá elektricky.
Podle protokolu WE není pronájem na platformách jako Airbnb povolen.
Dopravní spojení s veřejnou dopravou v docházkové vzdálenosti, konkrétně k U4 Braunschweiggasse a k S45 Penzing, je vynikající.
Infrastruktura je dobrá. Pro volnočasové aktivity nabízí nedaleký zámek Schönbrunn či cyklostezku podél řeky Vídeň.
ZÁKLADNÍ ÚDAJE
Adresa: 1140 Vídeň, Jenullgasse 10/5
Rok výstavby: 1969, rekonstrukce
Stav bytu: obyvatelný, ale potřebuje renovaci
Užitná plocha: 44 m²
Patro: 1. patro s výtahem
Dopravní spojení: U4 Braunschweiggasse, S45 Penzing, Západní dálnice
Měsíční provozní náklady: 223,05 € včetně rezervy a DPH
Rozložení místností: vstupní hala, obytná ložnice, kuchyň, koupelna s toaletou
Provozní náklady: 160,71 € (+10 % DPH)
Celkové náklady: 223,05 € včetně DPH
Rezerva na opravy: 46,27 € Celková rezerva: cca 100.000 €
V okolí nemovitosti najdete
Stále hledáte to pravé?
Nastavte si hlídacího psa. Nabídky vybrané na míru dostanete souhrnně 1× denně e-mailem. S Premium profilem máte k ruce hlídačů rovnou 5 a když se něco objeví, informují vás obratem.









