
Prodej domu 5+1 • 223 m² bez realitky, Bavorsko
S podporou místních řemeslníků jsme v roce 2016 dokončili náš sen o dokonalém domě.
Vznikl promyšlený architektonický dům, navržený s řadou detailů a speciálních vybavení. Od otevřených, extrémně vysokých prostor, masivních dveří s odpovídajícím zateplením a zabudovanými podlahovými lištami, přes designové armatury a vanu od Phillipe Starcka, vířivku od Villeroy & Boch, kuchyň od Zeyko Manufaktur, koncepty osvětlení a mnohem více…
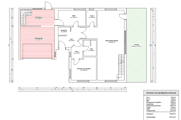
Dům o obytné ploše 223 m² a pěti pokojích se nachází na pozemku o rozloze 699 m². Díky svahovitému terénu vznikají posunuté úrovně, které nabízejí jedinečný design, dostatek soukromí a dechberoucí výhled.
Ponořte se do křišťálově modré vody vyhřívaného bazénu, nebo nechte svou duši odpočinout ve vířivce, sauně či na střešní terase s úchvatným výhledem na kanál Main-Donau a komplex Falkenhof u zámku Rosenburg.
Nyní hledáme člověka, který ocení náš dům se všemi jeho vybaveními. Pokud jsme ve vás vzbudili zájem, srdečně vás zveme, abyste s námi objevili a prožili tuto nemovitost.
My, vlastníci.
Léčebné lázně Riedenburg se nacházejí v srdci údolí řeky Altmühl. Obchody pro denní potřeby, jako jsou Lidl, Netto nebo Rewe, stejně jako pekárny, řeznictví, lékárny a zdravotnická zařízení, jsou přímo v místě. Riedenburg dále disponuje dvěma mateřskými školami/jeslami, základní a střední školou, reálnou školou i dívčí reálnou školou. Nejbližší gymnázium se nachází v Kelheimu nebo Beilngries; dopravní spojení včetně autobusů jsou zajištěna.
Pro volný čas nabízí Riedenburg řadu aktivit pro velké i malé – plavbu lodí, letní sáňkování, turistické stezky, jezery, muzea, restaurace, pivní zahrady a četné akce, jako jsou trhy, koncerty, slavnosti či letní slunovratové oslavy s ohňostroji a mnoho dalšího.
V Riedenburgu se v současnosti buduje nová čtvrť s lékařským centrem, distribučním centrem DHL a řadou dalších obchodů – což svědčí o pokračujícím prosperujícím rozvoji města. Města jako Kelheim, Regensburg či Ingolstadt jsou snadno dostupná, což je ideální pro dojíždějící pracovníky.
Exkluzivní a vysoce kvalitní stavební řešení, exkluzivní interiér se stěnami z odkrytého betonu a detailní strukturou, prostory naplněné světlem… Dům dále nabízí bazén, saunu, vířivku a je připraven pro instalaci fotovoltaiky.
V okolí nemovitosti najdete
Stále hledáte to pravé?
Nastavte si hlídacího psa. Nabídky vybrané na míru dostanete souhrnně 1× denně e-mailem. S Premium profilem máte k ruce hlídačů rovnou 5 a když se něco objeví, informují vás obratem.




















