
Pronájem bytu 3+1 • 105 m² bez realitkyRegattastr 51e Berlin Grünau Berlin 12527
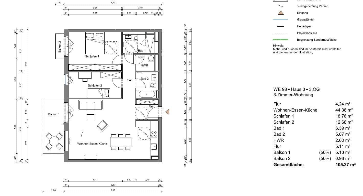
Zažijte komfort bydlení na nejvyšší úrovni v tomto takřka jako novém 3-pokojovém bytě ve 3. nadzemním podlaží moderního bytového domu v berlínské části Grünau. Luxusně vybavený byt s přibližně 105 m² obytné plochy byl postaven v roce 2023. Disponuje dvěma koupelnami, vysoce kvalitní vestavěnou kuchyní (možnost za příplatek) a balkonem, který zve k odpočinku. Výtah usnadňuje přístup do všech pater a sklep poskytuje další úložiště. Vlastní garážové místo doplňuje celou nabídku. Byt bude uvolněn od 01.05.2026. Domácí mazlíčci bohužel nejsou povoleni.
Obytný komplex 52° Grad Nord se od roku 2016 postupně nově buduje a vzniklo zde řada nových obytných budov. Okouzluje svou výjimečnou polohou přímo u řeky Dahme a díky vlastní soukromé vodní ploše přiléhající k budově. Čeká na vás dechberoucí architektura spojená s vysokou kvalitou bydlení a láskou k detailům. Budete si moci plně vychutnat vodní lokaci a výhled na Dahme. Obytný komplex 52° Grad přímo na břehu Dahme nabízí řadu míst, kde si můžete odpočinout – vychutnejte si cappuccino v čtvrtní kavárně nebo se posaďte přímo u Dahme.
Nabízený byt se nachází v berlínské části Grünau (Treptow-Köpenick). Grünau se vyznačuje mírnou hustotou obyvatel a dobrou směsí mladých rodin a starších obyvatel. Veřejná dopravní dostupnost je vynikající – linka S-Bahn S8 a autobusové linky 160 a 164 zajišťují rychlý přístup do centra města i okolních oblastí. Čtvrť je považována za bezpečnou a nabízí příjemnou, klidnou atmosféru, která je atraktivní zejména pro mladé rodiny a pracující.
- 2 balkony
- Výška stropů 2,80 m
- Designová truhlářská varianta/vybavení kuchyně (možnost)
- Různé vestavěné skříně instalované truhlářem (možnost)
- Vestavěné skříně lze převzít za příplatek
- Parketová podlaha
- Podlahové vytápění
- Úložná komora
- Toaleta pro hosty/sprcha
- Koupelna s vanou a sprchou
- Sklep
- Okna sahající až ke podlaze
Všechny údaje byly pečlivě ověřeny, avšak vycházejí z informací třetích stran.
Potřebné dokumenty:
- Kopie PA
- Výplatní pásky nebo BWA
- Aktuální Schufa výpis
- Potvrzení o bezdlužnosti nájemného od předchozího pronajímatele
Vzbudili jsme váš zájem?
Odpovědnost za obsah:
ImmoNova Berlin
Teichmummelring 33
12527 Berlín
zastoupeno:
panem Ronny Stropahl
Kontakt:
E-mail: info@immonovaberlin.de
Daňové identifikační číslo: 18/550/01788
Provozní povolení dle §34c GewO:
Příslušný dozorový orgán podle §34c GewO je Okresní úřad Tempelhof-Schöneberg v Berlíně, Tempelhofer Damm 165, 12099 Berlín
Poznámka:
Evropská komise nabízí možnost online řešení spotřebitelských sporů prostřednictvím platformy, kterou provozuje. Tuto platformu naleznete na externím odkazu http://ec.europa.eu/consumers/odr/. Účast na mimosoudním řešení sporu nejsme povinni a bohužel vám tuto možnost nabídnout nemůžeme.
V okolí nemovitosti najdete
Stále hledáte to pravé?
Nastavte si hlídacího psa. Nabídky vybrané na míru dostanete souhrnně 1× denně e-mailem. S Premium profilem máte k ruce hlídačů rovnou 5 a když se něco objeví, informují vás obratem.













