
Prodej domu • 325 m² bez realitkyFriedhofstr. 2, , Hessen
Už při vstupu do nádvoří je nápadně patrná jedinečnost této nemovitosti. Udržované nádvoří, láskyplně upravené, s terasou a krásnými zelenými plochami nabízí idylické místo k odpočinku.
Hlavní dům byl postaven v roce 1784 a kolem roku 1900 byl doplněn o stáj a depa. V letech 1981–1983 byly stáje kompletně přestavěny, zrenovovány a s velkým úsilím přeměněny na obytný dům. V roce 2017 proběhly další obnovy a renovace.
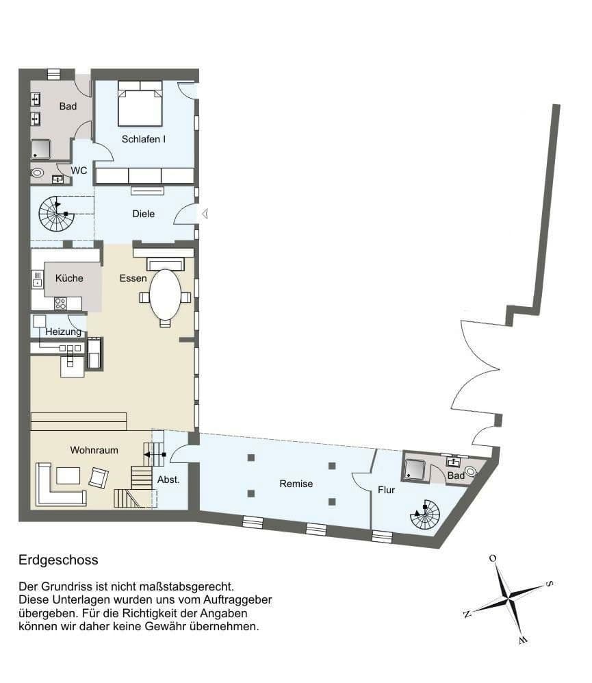
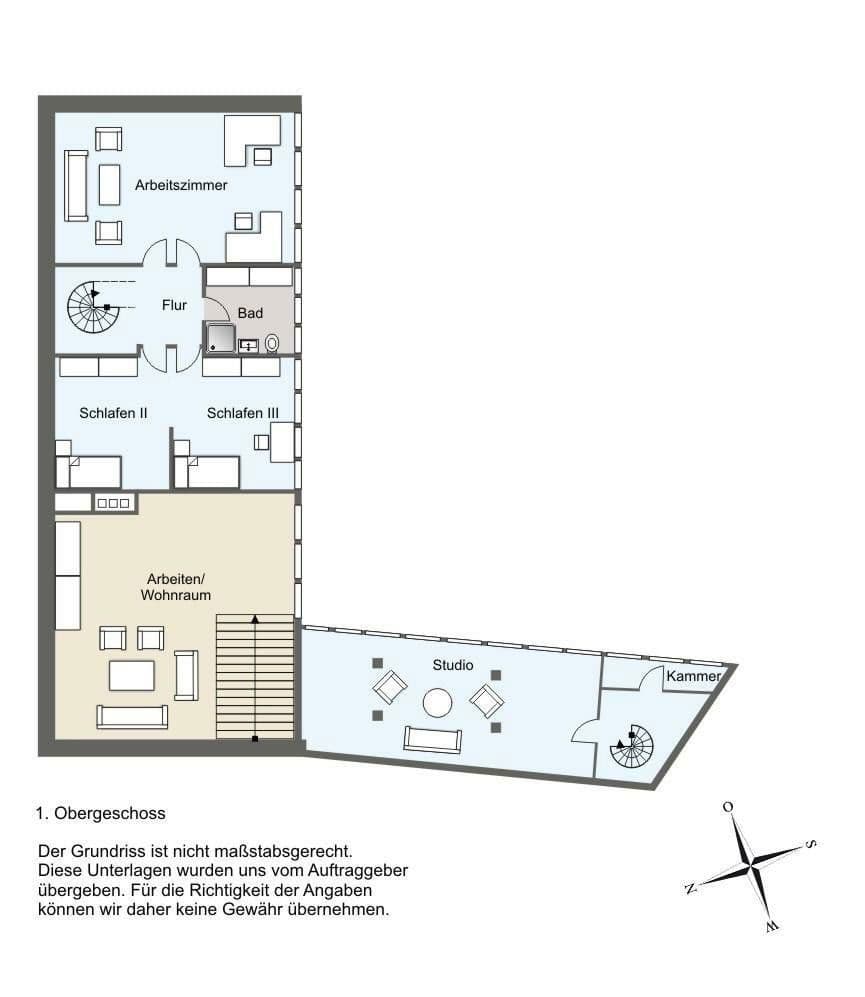
Ve dvou podlažích se rozprostírají obytné, spací i pracovní prostory. Otevřená kuchyně s přilehlou jídelnou a útulným kerámickým kamny se stává setkávacím místem domu. Přiléhající obývací pokoj ohromuje impozantní skleněnou fasádou a výhledem do nádvoří, stejně jako otevřeným krbem. Otevřené dřevěné schodiště vede přes mezzaninu do zrekonstruovaného půdního patra, kde se otevírá další světlý, prostorný obývací pokoj a/nebo kancelářský prostor.
Dům zaujme půvabnými výhledovými osami a mimořádně krásnou atmosférou. Na této úrovni se rovněž nachází ložnice s přístupem na nádvoří, koupelna a samostatná toaleta. Taková dispozice je ideální i pro seniory či osoby se zdravotním postižením.
Dalším závitným schodištěm se dostanete do horního patra. Tento prostor dokončuje hlavní dům dvěma velkými přívětivými pokoji, které lze flexibilně rozdělit na čtyři místnosti se samostatným vchodem, a koupelnou se sprchou.
Depa bylo v roce 2024 přestavěno na kompletní světlý dvoupokojový byt a může být využito jako samostatný byt nebo malý komerční prostor. Díky vlastnímu vstupu je možná i jeho rekreační využitelnost.
Na pozemku se dále nachází tradiční dřevostavba, která je chráněná jako kulturní památka a byla v roce 2022 zrenovována zvenčí. Uvnitř by mohla být vybudována další obytná plocha o přibližně 180 m². Aktuálně ji lze úspěšně využít jako dílnu nebo sklad. Budova má samostatný vstup do nádvoří či přímý přístup ze silnice.
Obec Lautertal se nachází uprostřed UNESCO Geoparku Bergstraße-Odenwald a má přibližně 7 100 obyvatel.
Reichenbach se rozkládá na proslulé Nibelungenově cestě v malebném údolí přírodního parku Bergstraße/Odenwald. Reichenbach je centrální částí velké obce Lautertal a sídlo správy se nachází v bývalé i nové radnici. Místo má přibližně 2 700 obyvatel a vynikající infrastrukturu. Mateřské školy, základní školy v Reichenbachu a Elmshausenu i střední školy v Gadernheim a Bensheim činí tento region atraktivním zejména pro rodiny. Místní spolky, volnočasové a sportovní aktivity nabízejí vysokou hodnotu pro volný čas a zábavu.
Bezprostřední blízkost přírody zajišťuje velký odpočinkový potenciál. Toto slunné a všestranně využitelné uskupení se nachází v centrální části Reichenbachu s velmi dobrou dopravní dostupností. Oficiálně patří Reichenbach k obci Lautertal, avšak běžně je považován za „část“ Bensheimu. Všechny zařízení každodenní potřeby, jako jsou pekárny, řeznictví a supermarkety, jsou dostupné během několika minut autobusem nebo autem, ať už v Reichenbachu či Bensheimu. Reichenbach je napojen na autobusovou síť města Bensheim či VRN; nejbližší autobusová zastávka je velmi dobře dostupná. Základní škola a nejbližší mateřská škola jsou dosažitelné pěšky během několika minut. Díky dobře vybudované silniční síti je Bensheim dosažitelný autem za přibližně 10 minut. Odtud je k dispozici vynikající a přímé spojení na dálnice vedoucí do měst Frankfurt, Heidelbergu a Mannheim – tato města jsou dosažitelná autem přibližně za 20 až 30 minut.
Díky své poloze, velikosti a dispozici nabízí objekt rozmanité možnosti využití a čeká na nové majitele. Moderní kuchyně byla obnovena před čtyřmi lety a dřevěný kamna v obývacím pokoji, sloužící jako dodatečné topení, odpovídají po jejich obnově v roce 2025 aktuálním předpisům. Dům je vybaven plynovým podlahovým vytápěním.
Objekt je napojen na optickou síť.
Parametry nemovitosti
| Stáří | Nad 50 let |
|---|---|
| Číslo inzerátu | 974726 |
| Plocha pozemku | 757 m² |
| Cena za jednotku | 2 431 € / m2 |
| Stav | Dobrý |
|---|---|
| Užitná plocha | 325 m² |
| Celkem podlaží | 2 |
Co tato nemovitost nabízí?
| Bezbariérový přístup | |
| Parkování |
| MHD 1 minuta pěšky |
V okolí nemovitosti najdete
Stále hledáte to pravé?
Nastavte si hlídacího psa. Nabídky vybrané na míru dostanete souhrnně 1× denně e-mailem. S Premium profilem máte k ruce hlídačů rovnou 5 a když se něco objeví, informují vás obratem.







































