
Pronájem bytu 2+1 • 57 m² bez realitkyBerlin Halensee Berlin 10711
Berlin Halensee Berlin 10711MHD 1 minuta pěškyTato upravená 2-pokojová bytová jednotka v přízemí klidného zahradního domu nabízí příjemné obytné prostředí a je ideální pro jednotlivce nebo páry, kteří chtějí bydlet v centru a přitom si užívat klidu.
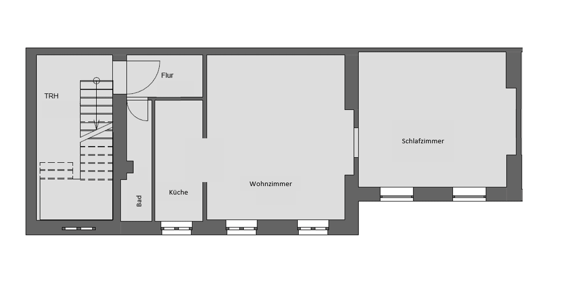
Byt zaujme promyšleným dispozicí se dvěma prostornými místnostmi, které lze flexibilně využít jako obývací, ložnicovou nebo pracovnu. Je zde již vestavěná kuchyň, která poskytuje praktický základ pro každodenní život. Koupelna doplňuje celkový harmonický koncept prostoru.
Byt se nachází v žádané rezidenční oblasti nedaleko Kurfürstendammu a spojuje centrální, městský život s příjemným klidem. Díky umístění v zahradním domě si můžete užívat tiché obytné prostředí, zatímco nákupní možnosti, kavárny, restaurace a kulturní zařízení na Ku’dammu jsou dosažitelné pěšky.
Doprava veřejnou dopravou je vynikající a také dostupnost obchodů se základními potřebami. Zelené plochy v okolí poskytují další možnosti pro odpočinek.
2 pokoje
Přízemí v klidném zahradním domě
Vestavěná kuchyň je k dispozici
Praktická dispozice
Centrální poloha se skvělou infrastrukturou
Máme váš zájem?
Těšíme se na váš dotaz a rádi vám poskytneme další informace nebo zajistíme prohlídku.
V okolí nemovitosti najdete
Stále hledáte to pravé?
Nastavte si hlídacího psa. Nabídky vybrané na míru dostanete souhrnně 1× denně e-mailem. S Premium profilem máte k ruce hlídačů rovnou 5 a když se něco objeví, informují vás obratem.













