
Pronájem bytu 2+1 • 82 m² bez realitkyHauptstraße 2, , Severní Porýní-Vestfálsko
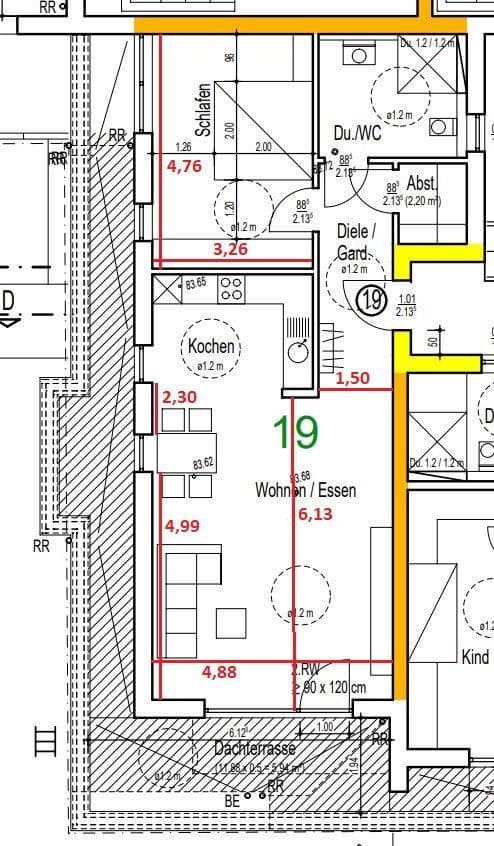
Hauptstraße 2, , Severní Porýní-VestfálskoMHD 3 minuty pěšky • Výtah • ParkováníTato exkluzivní dvoupokojová bytová jednotka o přibližně 76 m² obytné plochy se nachází ve druhém podlaží moderního novostavby rodinného domu podle standardu KfW 55 v Siegburgu-Kaldauen. Byt disponuje přibližně 12 m² velkým balkonem s výhledem na Siebengebirge a les.
Mezi vysoce kvalitní vybavení patří parkety v obývacím pokoji a ložnici a velké dlaždice ve zbývajících místnostech. Všechny místnosti jsou vybaveny podlahovým vytápěním.
Sprchová koupelna se nachází v přízemí, má okno a topení s držákem na ručníky. Parkovací stání je z bytu přímo viditelné.
Výtah usnadňuje přístup do bytu, který je navíc bezbariérový. K dispozici je také vysoce kvalitní vestavěná kuchyň s Bosch zařízeními a vytápění zajišťuje centrální topení, jehož náklady jsou zahrnuty v provozních poplatcích. Vlastní sklepní kóje o rozloze 6,5 m² nabízí další úložný prostor. Byt je k dispozici od 1. 1. 2026. Domácí mazlíčci nejsou povoleni.
Siegburg-Kaldauen, nacházející se v srdci okresu Rhein-Sieg, nabízí vynikající infrastrukturu. Řada obchodů, ordinace lékařů a restaurace je dosažitelná pěšky. Veřejná doprava je výborně dostupná se rychlými spojeními do Kolína nad Rýnem a Bonna. Nedaleké zelené plochy a možnosti volnočasových aktivit lákají k odpočinku.
Byt je velmi kvalitně vybaven. Kromě výtahu a vysoce kvalitních podlah je také koupelna zařízena nábytkem – je vybavena zrcadlem, spodní skříňkou a topením s držákem na ručníky.
V okolí nemovitosti najdete
Stále hledáte to pravé?
Nastavte si hlídacího psa. Nabídky vybrané na míru dostanete souhrnně 1× denně e-mailem. S Premium profilem máte k ruce hlídačů rovnou 5 a když se něco objeví, informují vás obratem.






























