
Prodej domu 6+1 • 194 m² bez realitky, Bádensko-Württembersko
Představte si, že se nastěhujete do moderního, samostatně stojícího rodinného domu, který vás nejen architektonicky oslní, ale zároveň dlouhodobě nadchne svou energetickou účinností, kvalitou a hodnotou. Přesně to může být váš sen v jedné z nejlepších lokalit Nürtingenu – již schválený a s pevnou smluvní cenou.
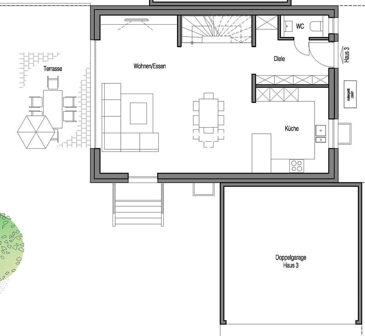
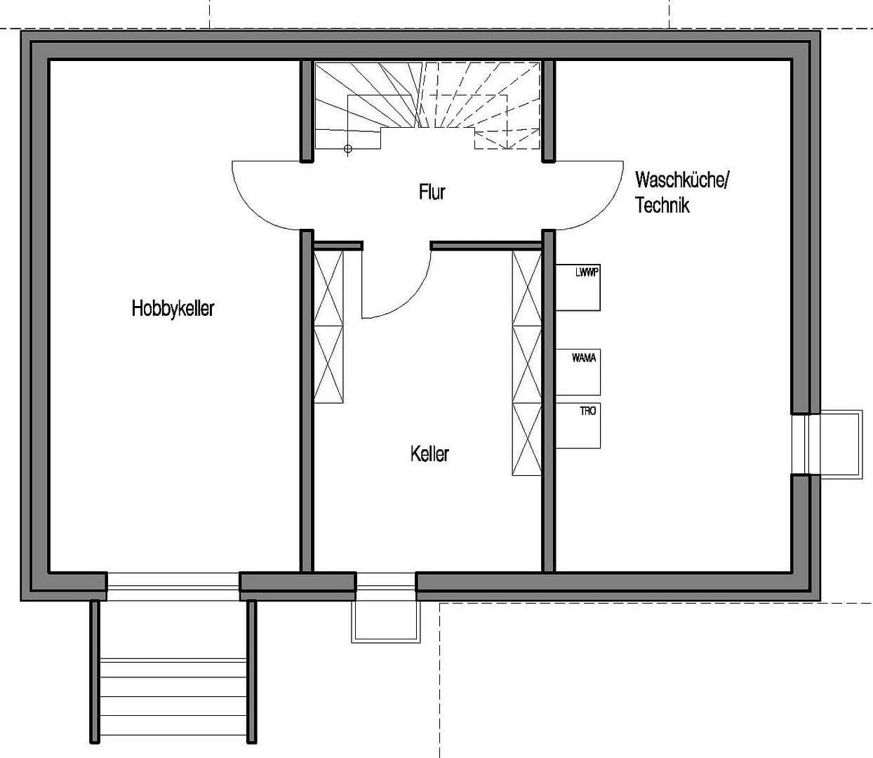
Na přibližně 194 m² obytné plochy a na pozemku o rozloze cca 346 m² zažijete současné bydlení s prostornými místnostmi, jasnými liniemi a otevřenou architekturou, která dokonale kombinuje světlo, komfort a funkčnost. Otevřený obývací a jídelní prostor tvoří srdce domu – ideální pro rodinný život, hosty a pohodové večery.
Velká okna přivádějí do domu denní světlo, zatímco kvalitní materiály a propracované řešení dispozice vytvářejí pocit bydlení, který je hmatatelný – moderní, prvotřídní a udržitelný.
Slunečná zahrada s jižní orientací a prostorná terasa vás zve, abyste nechali za sebou každodenní shon a plně si užívali svůj domov.
Vaše výhody na jednom místě:
• Samostatně stojící rodinný dům z masivní konstrukce
• Již schválený projekt novostavby
• Stavba podle platného předpisu GEG 2024
• Přibližně 194 m² obytné plochy se 6 prostornými místnostmi
• Otevřená, moderní dispozice
• Podlahové vytápění ve všech místnostech
• Energeticky účinné tepelné čerpadlo a fotovoltaická elektrárna
• Vysoce kvalitní vybavení a materiály
• Terasa a zahrada s jižní orientací
• Dvě parkovací místa (garáž nebo carport jako volitelné)
• Regionální stavební partner s garancí pevné ceny
• Kalkulovatelné dodatečné stavební náklady cca €40.000,-
Domov pro ty, kteří nehledají jen jakoukoli novostavbu, ale svůj domov na celý život.
Tato lokalita patří k nejoblíbenějším adresám Nürtingenu – klidná, rodinně orientovaná a zároveň s dobrou dostupností do centra. Zde máte krátké cesty ke školám, mateřským školám, obchodům a volnočasovým zařízením, aniž byste se museli vzdát klidu a soukromí.
Okolí je charakterizováno upravenými rodinnými domy a bohatou zelení – prostředí, kde děti bezpečně vyrůstají a dospělí žijí v pohodě. Dobré spojení s centrem města i s regionální dopravní sítí činí toto místo zvláště atraktivním – dnes i v budoucnu.
Lokalita, kterou nemusíte hledat – ta vás jednoduše oslní.
Na celkovém pozemku o rozloze cca 1.022 m² vzniknou tři kvalitní, samostatně stojící rodinné domy v jednotné, moderní architektuře.
Dům 1 je již prodán a dokončen – jasné vyjádření důvěry v koncept a kvalitu.
Dům 3 je aktuálně na prodej:
Pozemek cca 346 m²
Kupní cena €989.000,- – k okamžitému nastěhování!
Realizaci zajišťuje regionální, zkušený stavební partner, který je zárukou kvality, spolehlivosti a transparentního stavebního procesu – včetně garance pevné ceny.
Uvedené ceny zahrnují:
- Náklady na pozemek
- Náklady na výstavbu domu dle stavebního popisu včetně architektonických služeb
- Stavební kontrolu
Zobrazené vnitřní vizualizace nejsou součástí nabídky, slouží pouze jako ukázka možné interiérové úpravy.
ODPOVĚDNOST: I přes pravidelnou kontrolu dat, obrázků a informací nepřebíráme žádnou odpovědnost za správnost uvedených údajů. Stejně tak za dostupnost nabídky při pronájmu nebo prodeji. Platí naše Obchodní podmínky. Všechny ilustrace a dispozice jsou nezávazné. Mohou zobrazovat vybavení a prvky, které nemusí být součástí nabídky. Případné chyby a změny vyhrazujeme. Všechny rozměrové údaje jsou přibližné a bez záruky.
Těšíme se na Vaši zprávu.
V okolí nemovitosti najdete
Stále hledáte to pravé?
Nastavte si hlídacího psa. Nabídky vybrané na míru dostanete souhrnně 1× denně e-mailem. S Premium profilem máte k ruce hlídačů rovnou 5 a když se něco objeví, informují vás obratem.






