
Prodej domu 5+1 • 137 m² bez realitkyHamburg Ochsenwerder Hamburg 21037
Hamburg Ochsenwerder Hamburg 21037MHD do minuty pěšky • ParkováníVítejte ve vašem novém útulném domově!
Tento moderní a pečlivě udržovaný řadový dům z roku 2019 spojuje současný komfort bydlení s venkovským klidem v přátelském prostředí pro rodiny. S celkovou obytnou plochou 137 m² na soukromém pozemku o rozloze 318 m² nabízí vše, po čem si může srdce přát – a to v klidné oblasti v konci slepé ulice s omezeným provozem.
Rozložení místností a komfort
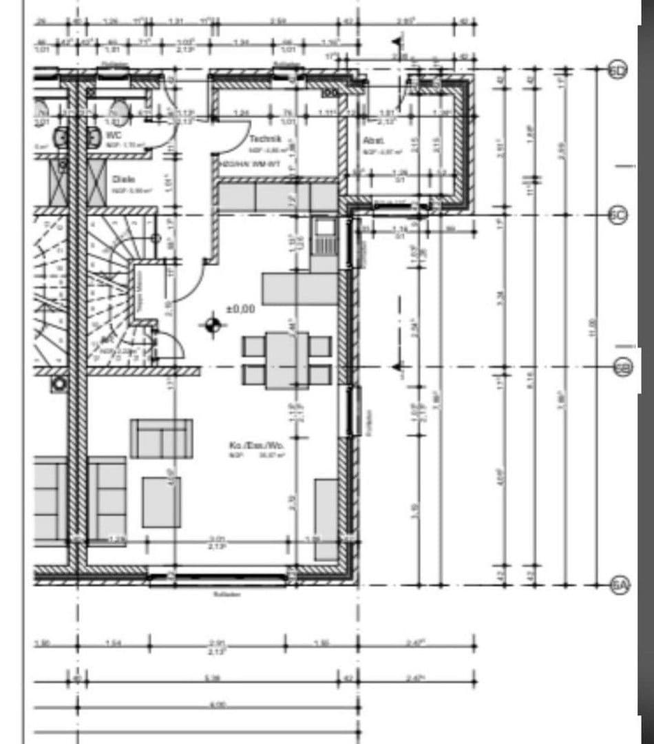
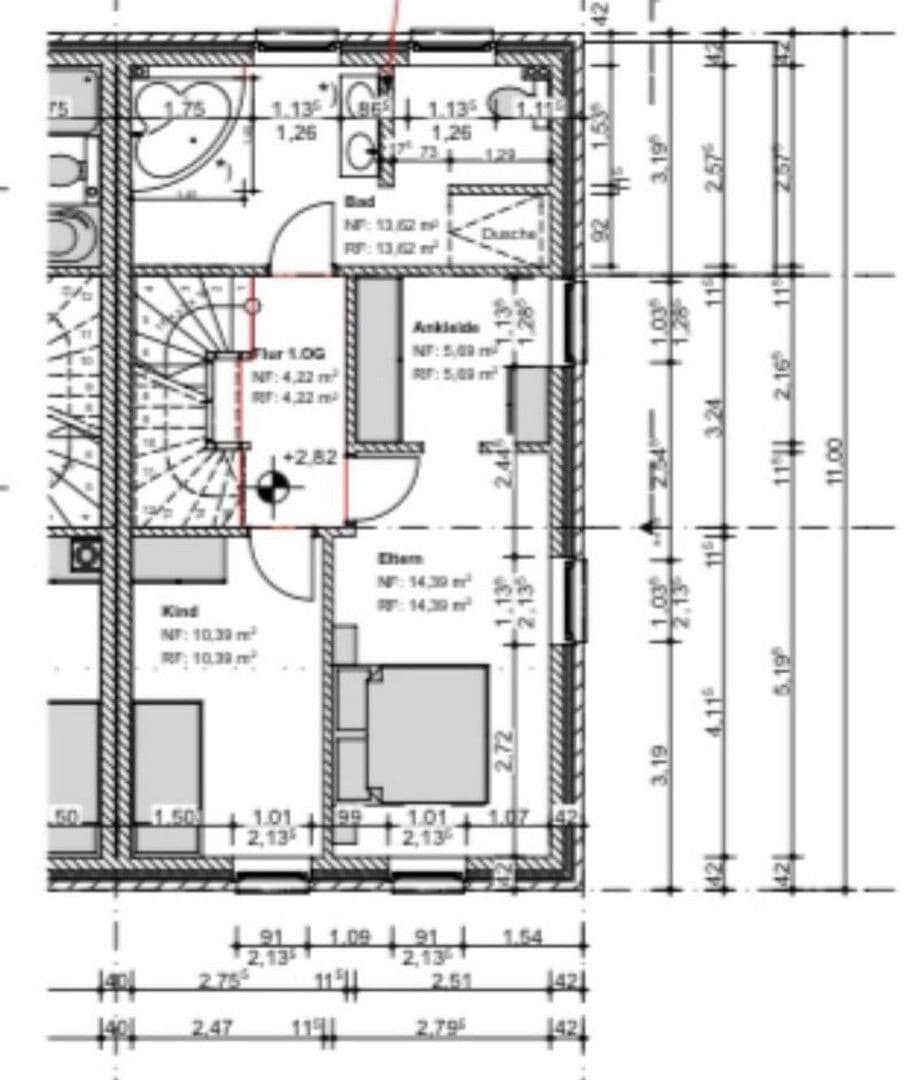
Vstoupíte do příjemného vstupního prostoru s kličkou, který nabízí dostatek místa pro vaši šatnu. Otevřený a přívětivý obývací a jídelní kout je ideálním místem pro klidné rodinné chvíle a příjemné společenské večery. Otevřená kuchyně v moderním venkovském stylu s pracovní deskou z žuly „Nerro assoluto“ je snem každého milovníka vaření a poskytuje dostatek prostoru pro kulinářské výtvory. Moderní vestavěné spotřebiče značky Siemens a indukční varná deska Miele s integrovaným odsáváním vám v tom pomohou. Díky četným oknům od podlahy ke stropu proudí do místností spousta denního světla a vytváří světlou a přívětivou atmosféru. Skutečná parketová podlaha dodává příjemný pocit při chůzi. V přízemí se dále nachází hostinské WC, prádelna a malý sklad/prostor pro uskladnění pod schodištěm. Všechna okna v přízemí jsou vybavena automatickými rolety, které lze pohodlně ovládat pomocí dálkového ovladače. Přes elegantní betonové schody s bílými bočními stranami a schody z ořechového dřeva se dostanete do prvního z dvou patra. Zde na vás čekají dvě ložnice, které vám a vaší rodině poskytnou dostatek prostoru pro útočiště a odpočinek. Chodba a obě místnosti jsou vybaveny světlou vinylovou podlahou s imitací dřeva. Jedna z místností je navíc vybavena šatnou, která je oddělena posuvnými skleněnými dveřmi. Kompletní vybavení doplňuje koupelna s šedohnědo-bežohnědými dlaždicemi v multicolor provedení, rohová vana, samostatná bezbariérová sprcha s efektem deště, dvě umyvadla, WC a bidet. Ve druhém patře na vás čekají další dvě místnosti, které lze ideálně využít jako dětské pokoje, a další koupelna se sprchou s dešťovým efektem, WC a umyvadlem. Přes přízemní schodiště se dostanete na půdu, která je využitelná pro různé účely a nabízí dodatečný úložný prostor.
Venkovní prostory a zahrada
Zahrada s prostornou terasou, terasovým zastřešením s bezpečnostním sklem 8 mm a elektronickou markýzou na podstavci, uzamykatelnou zahradní skříní a herním domkem se dvěma houpačkami, skluzavkou a pískovištěm je malým rájem pro malé i velké. Přiléhající k domu naleznete místnost sloužící jako náhrada sklepa, kde najdou dostatek místa kola apod. Přímo před domem se nacházejí dvě parkovací místa pro automobily.
Energie a technika
- Podlahové topení v celém domě
- Plynové centrální topení (rok výstavby 2019)
- Dvě solární články pro ohřev vody
- Energetická účinnost: standard KfW-70, konečná energetická spotřeba dle energetického průkazu: 47,7 kWh/(m²·rok), energetický průkaz je k nahlédnutí při prohlídce.
Tento moderní řadový dům spojuje reprezentativní styl s moderním komfortem. Vysoce kvalitní vybavení, promyšlené rozložení místností a rodinně přívětivá lokalita dokonale doplňují tuto nabídku. Ať už se jedná o útulné večery na terase nebo aktivní dny na zahradě – zde budete bydlet v klidu, v zeleném prostředí a zároveň s vynikající dostupností k nádhernému městu Hansestadt.
Lokalita a infrastruktura
Ochsenwerder se nachází bezprostředně u Labe/Dove Elbe, přírodně orientovaný, a přitom centrální s dobrou dostupností. Dvě jesle a základní škola „GBS Ochsenwerder“ se nachází v okruhu jednoho kilometru, dále pak střední školy v přilehlých čtvrtích Kirchwerder, Allermöhe, Bergedorf apod. Dvě autobusové zastávky jsou dosažitelné pěšky během několika minut. Odtud jezdí několik autobusových linek, mimo jiné i do S-Bahn Moorfleet a S-Bahn Tiefstack, přičemž cesta trvá cca 10-15 minut.
Kontakt
Pokud jste se do tohoto domova zamilovali, těšíme se na vaši zprávu. Prohlídky jsou možné po předchozí domluvě.
V okolí nemovitosti najdete
Stále hledáte to pravé?
Nastavte si hlídacího psa. Nabídky vybrané na míru dostanete souhrnně 1× denně e-mailem. S Premium profilem máte k ruce hlídačů rovnou 5 a když se něco objeví, informují vás obratem.

























