
Prodej domu • 326 m² bez realitkyNellinger Straße 47 Stuttgart Heumaden Baden-Württemberg 70619
Samostatně stojící vila se 12 pokoji (rok výstavby 1957 / přístavba 1993) s celkem 326 m² vytápěné obytné plochy resp. 405 m² podle WoFlV (viz obrázek) + 64 m² užitné plochy.
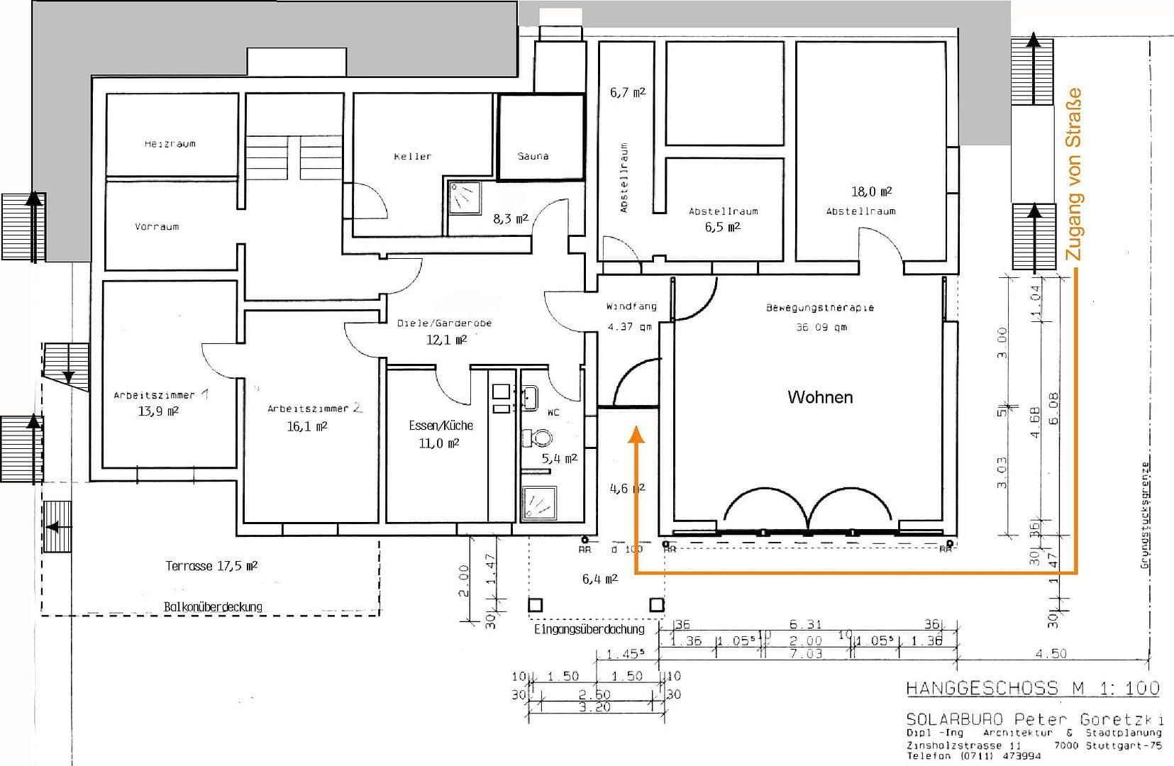
Podlaží zahrady (115 m²) je možné využívat samostatně s vlastním vstupem, nachází se zde sauna.
Hlavní byt (přízemí + 1. patro + 2. patro) není vhodný pro rozdělení na více oddělených bytových jednotek (viz půdorysy).
Velikost pozemku: 1366 m², z toho
- 711 m² stavebního pozemku (využití: cca 1,2-1,4, tj. cena půdy alespoň 1,1 mil. €) plus
- 655 m² přilehlé zahradní půdy s květinovou loukou, ovocnými stromy a keři s bobulemi. Zahradní bouda. Dešťová nádrž s 3 m³ určená k zavlažování.
- plus 140 m² bezplatného městského "bonusového pozemku"
Proto výhodné oznámení o pozemkové dani pro rok 2025 pouze 1274 €/rok + 147 €/rok pro dešťovou vodu.
Územní plánování podle §34 BauGB
Východní svah v klidné, nezastavitelně chráněné okrajové a vyhlídkové poloze.
Metro, autobus, škola, lékaři a obchody jsou dosažitelné pěšky za pár minut.
Centrum Stuttgartu a hlavní nádraží jsou dostupné metrem za přibližně 20 minut. Autobusem je letiště dosažitelné za přibližně půl hodiny, Esslingen asi 25 minut. Dálniční příjezd trvá přibližně 10-15 minut.
I přesto se nemovitost nachází v klidné předměstské lokalitě s výhledem na Katharinenlinde a les Schurwald.
Les naproti východně od nemovitosti a pole a sadové louky sousedící na východě a jihu, s výhledem na Švábskou Albu, lákají k relaxačním procházkám po celý rok.
Šikmé letecké snímky jsou k nahlédnutí:
https://www.bing.com/maps?FORM=Z9LH2&cp=48.742518%7E9.235655&lvl=20.0&style=g&dir=-60
Prostorná, světlá jídelna a obývací pokoj (47 m²) s světlým stropem cca 2,8 m a přilehlou knihovnou či pracovnou v přízemí mají parketové podlahy, ložnice v 1. a 2. patře jsou s koberci. V podlaží zahrady se nachází korkové či laminátové podlahy a dlaždice.
Celkový stav je udržovaný.
Okna v přízemí a 1. patře byla převážně v roce 2009 vyměněna (Ug = 1,1 W/m²K).
Střecha: izolace mezi krovy Ud = 0,235 W/m²K
=> nedochází k povinné dodatečné rekonstrukci dle GEG.
Vnější stěny:
- přízemí + patro: bloky Bimshohl 24 cm U = 1,14 W/m²K;
- sklep: bloky Bimshohl 30 cm U = 0,95 W/m²K;
- přístavba: cihly Poren U = 0,21 W/m²K
= Energetická účinnost třída "E"
Plynové nízkoteplotní vytápění bylo v roce 2009 modernizováno (aktuálně lze provozovat neomezeně).
Spotřeba energie na vytápění a ohřev teplé vody je přibližně 55 000 kWh ročně
= Energetická účinnost třída "D" podle spotřeby.
Přehled ploch
Podlaží zahrady:
Pokoj 1:..........13,9 m²
Pokoj 2:..........16,1 m²
Jídelna a kuchyň:.......11,0 m²
Zahradní pokoj:.. 36,1 m²
Předsíň:...............12,1 m²
WC/Sprcha:.......5,4 m²
Sauna/Sprcha:..8,3 m²
Vstupní hala:..........4,2 m²
Sklad:...............18,8 m²
Terasy:...............49,5 m²
Sklep 1:..............6,5 m²
Sklep 2:..............6,7 m²
Sklep 3:..............9,1 m²
Předprostor:..........6,1 m²
Technická místnost:..........5,7 m²
Schodiště:..............11,4 m²
Přízemí:
Jídelna:..........19,5 m²
Obývací pokoj:......27,4 m²
Pokoj 3:............13,7 m²
Kuchyň:............12,6 m²
Technická místnost (prádelna):..........7,5 m²
Chodba:....................9,8 m²
Schodiště:..........6,6 m²
Vstupní hala:.........4,5 m²
Sprcha:............5,2 m²
WC:....................3,2 m²
Balkón:............24,0 m²
1. patro:
Pokoj 4:..........21,1 m²
Pokoj 5:..........10,3 m²
Pokoj 6:..........14,5 m²
Pokoj 7:..........14,2 m²
Chodba:...................16,1 m²
Schodiště:..........6,6 m²
Koupelna/Sprcha:......9,9 m²
WC:.....................3,1 m²
Balkón:...............5,9 m²
2. patro (plně dokončeno):
Pokoj 8:..........18,4 m²
Pokoj 9:..........11,2 m²
Chodba:..................6,0 m²
Termíny pro prohlídku jsou možné dohodnout krátkodobě.
Prodej probíhá mezi soukromými osobami bez provize – nejedná se o realitní kancelář.
Exponát s půdorysy, energetickým průkazem, termografií a virtuální prohlídkou v cloudu je k dispozici na vyžádání.
Při zájmu uveďte prosím své jméno, adresu a pevnou telefonní linku!
Kúpní cena dle dohody 1.650.000 €
Parametry nemovitosti
| Stáří | Nad 50 let |
|---|---|
| Číslo inzerátu | 976506 |
| Užitná plocha | 326 m² |
| Celkem podlaží | 4 |
| Stav | Dobrý |
|---|---|
| PENB | E - Nehospodárná |
| Plocha pozemku | 1 366 m² |
| Cena za jednotku | 5 061 € / m2 |
Co tato nemovitost nabízí?
| Balkón | |
| Garáž | |
| Parkování | |
| Terasa |
| Sklep | |
| MHD 6 minut pěšky |
V okolí nemovitosti najdete
Stále hledáte to pravé?
Nastavte si hlídacího psa. Nabídky vybrané na míru dostanete souhrnně 1× denně e-mailem. S Premium profilem máte k ruce hlídačů rovnou 5 a když se něco objeví, informují vás obratem.

























